LOWER CHURCH - 3 ZINA STREET, Orangeville, Ontario, L9W1E2
MLS: W12993894 | Retail
$3,000 / monthly




Property Description
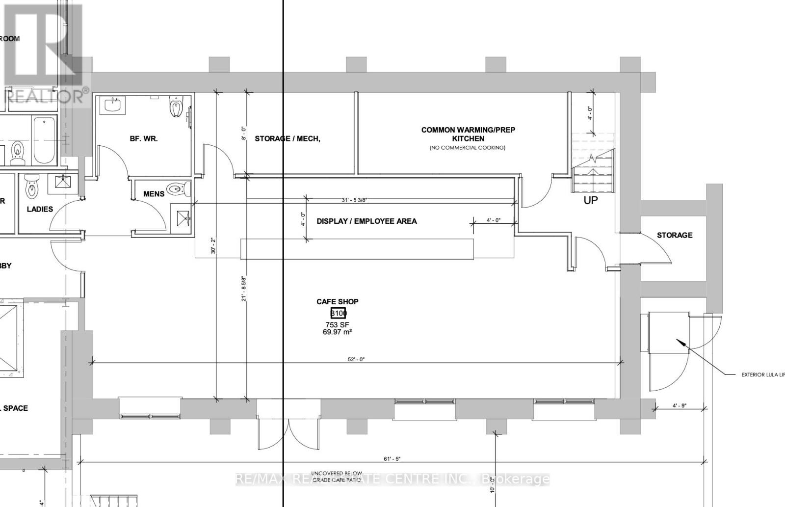
This is a great opportunity to make a historic space into a new great commercial offering. The basement particularly has a perfect setting for a nice cafe with 7 residences attached to it. Also an opportunity to make this work and live space, with the Church main floor area able to be converted into an epic residence with an access to below work area. This building has all the zoning approvals within C5 OR special permissions for Cafe, Assembly hall, Club House, or Theatre. The building is being repositioned as a mixed use development. Work with the builder to customize the space. Just steps from Broadway, great location with great visibility. Tons of public and street parking in the area. Two floors available together or rent out the top or bottom separately ...over 4,000 sqft together or over 2,000 per level. (id:64974)
Quick Facts
- Property Type: Retail
- Bedrooms: None
- Bathrooms: None
- Living Area: 2,000 sq ft (185.8 m²)
- Parking: 1.0 space
- Frontage: 50 ft (15.2 m)
Costs
- Annual Taxes: $5.50
Listing Provided by: RE/MAX REAL ESTATE CENTRE INC.
Board: Toronto Regional Real Estate Board
Data provided via CREA DDF®.
Detailed Features
Interior & Systems
- Heating: Forced air, Natural gas
- Cooling: Fully air conditioned
Exterior & Construction
- Water: Municipal water
Lot & Land
- Frontage: 50 ft (15.2 m)
- Features: Elevator
- Zoning: C5 + Cafe + Club House + Event Space + Theatre
Community & Neighbourhood
- Neighbourhood: Orangeville
Listing Information
Listing History
MLS listing activity for LOWER CHURCH - 3 ZINA STREET, Orangeville, Ontario, L9W1E2 — dates reflect when changes were recorded in the DDF
🚗 Travel times
Neighborhood Walkability
Mortgage & Cost Calculators
Nearby Homes ?Nearby Homes — Search CriteriaSearch Radius1 kmPrice Range±5%Match BedroomsYesMatch BathroomsYes

UPPER CHURCH - 3 ZINA STREET, Orangeville
Retail$3,900/mo
$6/yr taxListing Courtesy of RE/MAX REAL ESTATE CENTRE INC.

16 CHURCH STREET, Orangeville
Retail$820,000
$8,787/yr taxListing Courtesy of ROYAL LEPAGE RCR REALTY

10 - 75 FIRST STREET, Orangeville
Retail$2,000/mo
Listing Courtesy of CENTURY 21 MILLENNIUM INC.
Similar Homes ?Similar Homes — Search CriteriaSearch Radius5 kmPrice Range±5%Match Home TypeYesMatch BedroomsYes

B - 56 MAIN STREET, Hawkesbury
Retail$3,000/mo
Listing Courtesy of ROYAL LEPAGE PERFORMANCE REALTY

UPPER 3 - 34 CAMBRIDGE STREET S, Kawartha Lakes (Lindsay)
Retail$3,000/mo
Listing Courtesy of REVEL REALTY INC.

1 - 18 KING STREET W, Brockville
Retail$3,000/mo
$13,272/yr taxListing Courtesy of THE AGENCY OTTAWA

140 CAROLINE STREET S, Hamilton (Durand)
Retail$3,000/mo
$7/yr taxListing Courtesy of RE/MAX NIAGARA REALTY LTD, BROKERAGE

MAIN - 2336 DANFORTH AVENUE, Toronto (East End-Danforth)
Retail$3,000/mo
$8,313/yr taxListing Courtesy of KELLER WILLIAMS ADVANTAGE REALTY

2892 DUFFERIN STREET, Toronto (Yorkdale-Glen Park)
Retail$2,999/mo
Listing Courtesy of RE/MAX PREMIER INC.

1443 MAIN Street E, Hamilton
Retail$2,995/mo
Listing Courtesy of Royal LePage Macro Realty

98 BARTON Street E, Hamilton
Retail$2,995/mo
Listing Courtesy of Corcoran Horizon Realty

98 BARTON STREET E, Hamilton (Beasley)
Retail$2,995/mo
$745/yr taxListing Courtesy of Corcoran Horizon Realty

318 QUEENSTON Road Unit# G, Hamilton
Retail$2,990/mo
Listing Courtesy of RE/MAX Escarpment LEADEX Realty

MAIN FLR - 1060 OLD DERRY ROAD, Mississauga (Meadowvale)
Retail$2,950/mo
$8,663/yr taxListing Courtesy of Century 21 Signature Service

533 DUNDAS STREET, Woodstock (Woodstock - North)
Retail$2,900/mo
$4,727/yr taxListing Courtesy of Gale Group Realty Brokerage Ltd

1 - 15 KARACHI DRIVE, Markham (Cedarwood)
Retail$2,899/mo
$4,156/yr taxListing Courtesy of RE/MAX COMMUNITY REALTY INC.

200A - 2425 EGLINTON AVENUE, Toronto (Kennedy Park)
Retail$2,898/mo
Listing Courtesy of RE/MAX EXCEL REALTY LTD.

107 - 33 VILLIERS STREET, Toronto (South Riverdale)
Retail$2,850/mo
Listing Courtesy of RE/MAX ESCARPMENT REALTY INC.
Similar Properties ?Active Comparables — Search CriteriaSearch Radius2 kmPrice Range±5%Match Home TypeYesMatch BedroomsYes

B - 56 MAIN STREET, Hawkesbury
Retail$3,000/mo
Listing Courtesy of ROYAL LEPAGE PERFORMANCE REALTY

UPPER 3 - 34 CAMBRIDGE STREET S, Kawartha Lakes (Lindsay)
Retail$3,000/mo
Listing Courtesy of REVEL REALTY INC.

1 - 18 KING STREET W, Brockville
Retail$3,000/mo
$13,272/yr taxListing Courtesy of THE AGENCY OTTAWA

140 CAROLINE STREET S, Hamilton (Durand)
Retail$3,000/mo
$7/yr taxListing Courtesy of RE/MAX NIAGARA REALTY LTD, BROKERAGE

MAIN - 2336 DANFORTH AVENUE, Toronto (East End-Danforth)
Retail$3,000/mo
$8,313/yr taxListing Courtesy of KELLER WILLIAMS ADVANTAGE REALTY

2892 DUFFERIN STREET, Toronto (Yorkdale-Glen Park)
Retail$2,999/mo
Listing Courtesy of RE/MAX PREMIER INC.

1443 MAIN Street E, Hamilton
Retail$2,995/mo
Listing Courtesy of Royal LePage Macro Realty

98 BARTON Street E, Hamilton
Retail$2,995/mo
Listing Courtesy of Corcoran Horizon Realty

98 BARTON STREET E, Hamilton (Beasley)
Retail$2,995/mo
$745/yr taxListing Courtesy of Corcoran Horizon Realty

318 QUEENSTON Road Unit# G, Hamilton
Retail$2,990/mo
Listing Courtesy of RE/MAX Escarpment LEADEX Realty

MAIN FLR - 1060 OLD DERRY ROAD, Mississauga (Meadowvale)
Retail$2,950/mo
$8,663/yr taxListing Courtesy of Century 21 Signature Service

533 DUNDAS STREET, Woodstock (Woodstock - North)
Retail$2,900/mo
$4,727/yr taxListing Courtesy of Gale Group Realty Brokerage Ltd

1 - 15 KARACHI DRIVE, Markham (Cedarwood)
Retail$2,899/mo
$4,156/yr taxListing Courtesy of RE/MAX COMMUNITY REALTY INC.

200A - 2425 EGLINTON AVENUE, Toronto (Kennedy Park)
Retail$2,898/mo
Listing Courtesy of RE/MAX EXCEL REALTY LTD.

107 - 33 VILLIERS STREET, Toronto (South Riverdale)
Retail$2,850/mo
Listing Courtesy of RE/MAX ESCARPMENT REALTY INC.
No rental comparables found in this area.
Sold Comparables
Access to sold property data requires a registered and verified account with TRREB DDF integration.
Coming SoonRented Comparables
Access to rented property data requires a registered and verified account with TRREB DDF integration.
Coming SoonBook a Viewing
LOWER CHURCH - 3 ZINA STREET, Orangeville, Ontario, L9W1E2
