1 - 18 KING STREET W, Brockville, Ontario, K6V3P6
MLS: X12737744 | Retail
$3,000.00 / monthly

















Property Description
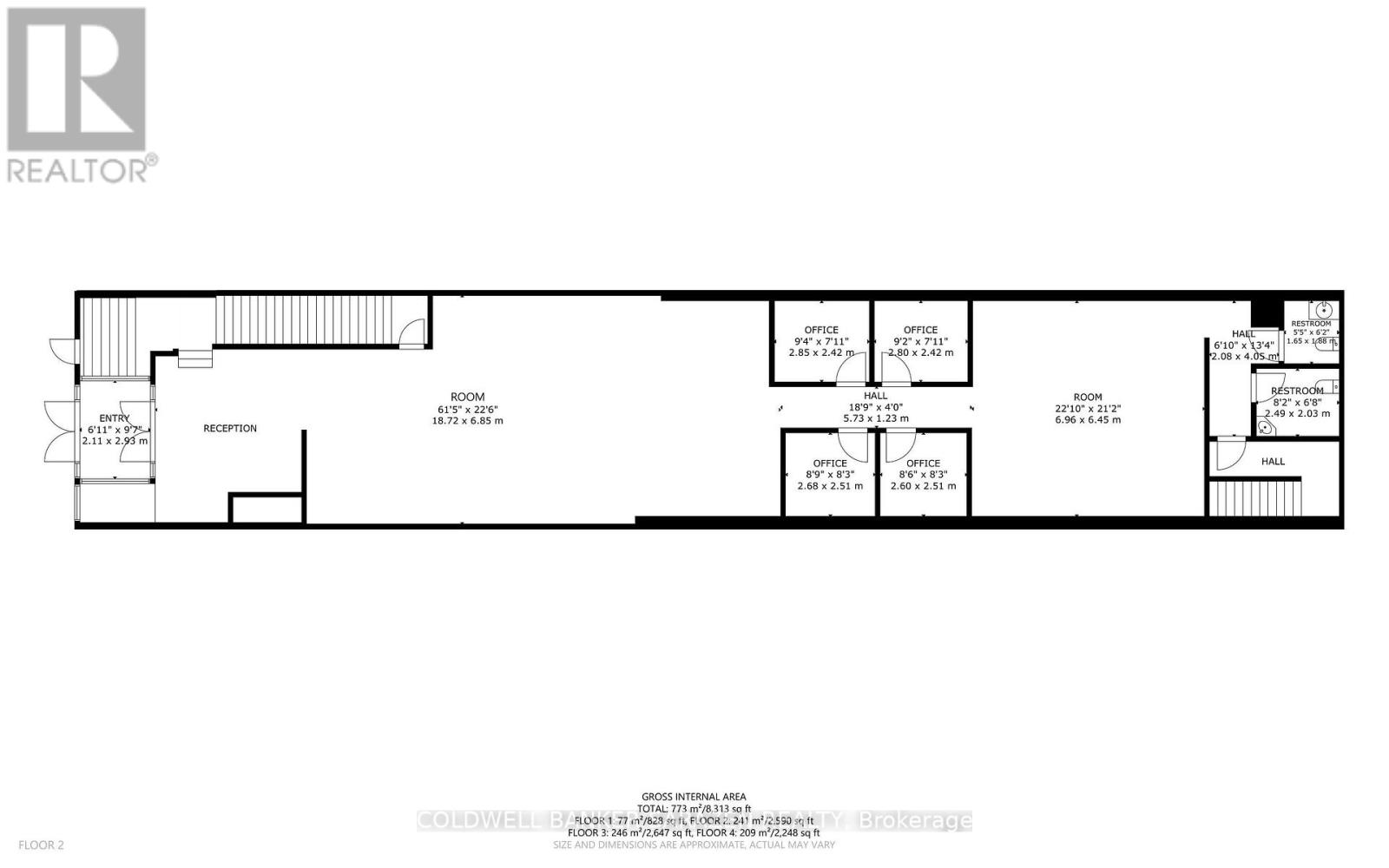
Welcome to 18 King Street West - Main Level, a bright and versatile approx. 2,500 sq. ft. commercial unit located in the heart of downtown Brockville.This open, well-maintained space offers excellent street exposure, high foot traffic, and flexible layout options - making it ideal for a wide range of uses such as professional offices, retail, wellness clinics, studios, or boutique services. Prominent storefront visibility along King Street West. Private entrance and large display windows. On-site parking (shared, up to 6 spaces for the building). Located just steps from the waterfront, restaurants, shops, and VIA Rail. C2 X2-1 zoning allows for a variety of commercial and service uses. Whether you're an established business or an entrepreneur ready to open your doors, this space combines prime location, charm, and functionality in one of Brockville's most vibrant areas. (id:64974)
Quick Facts
- Property Type: Retail
- Bedrooms: None
- Bathrooms: None
- Living Area: 2,500 sq ft (232.3 m²)
- Parking: 2 spaces
- Frontage: 25 ft (7.6 m)
Costs
- Annual Taxes: $13,271.71
Listing Provided by: COLDWELL BANKER SARAZEN REALTY
Board: Ottawa Real Estate Board
Data provided via CREA DDF®.
Detailed Features
Interior & Systems
- Heating: Forced air, Natural gas
- Cooling: Fully air conditioned
Exterior & Construction
- Water: Municipal water
Lot & Land
- Frontage: 25 ft (7.6 m)
- Zoning: C2 X2 1
Community & Neighbourhood
- Neighbourhood: 810 - Brockville
Listing Information
Listing History
Buy/Sell/Terminated/Expired listing history for 1 - 18 KING STREET W, Brockville, Ontario, K6V3P6
Location & Neighborhood
🚗 Travel times
Neighborhood Walkability
Mortgage & Cost Calculators
Nearby Homes (Within 2km)
Similar Homes
Similar Properties
Sold Comparables
Access to sold property data requires a registered and verified account with TRREB DDF integration.
Coming SoonRented Comparables
Access to rented property data requires a registered and verified account with TRREB DDF integration.
Coming Soon
































