LOT 7 (14) DARROW DRIVE, Tillsonburg, Ontario, N4G0L3
MLS: X12764126 | House (Freehold)
$849,900



Property Description
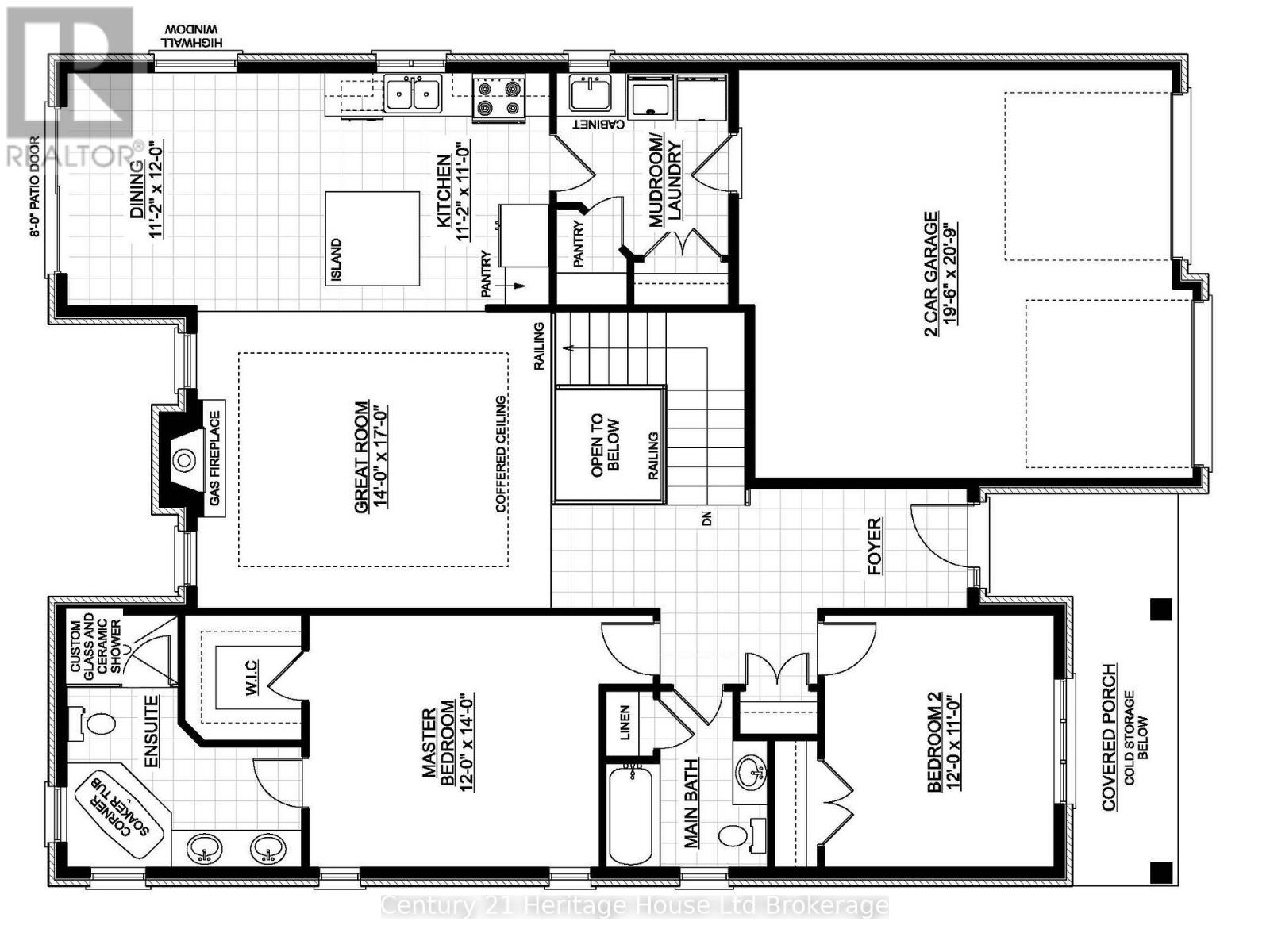
To be built by Trevalli Homes Limited, the Oxford model offers 1,552 sq. ft. of beautifully designed one-level living in the highly sought-after Westwinds community in the city's desirable north end-just minutes from schools, the hospital, and shopping.This exceptional bungalow is designed to impress, featuring a dramatic, spacious foyer that opens into a bright open-concept great room with a seamless kitchen and dining combination-perfect for both everyday living and entertaining. The chef-inspired kitchen boasts granite countertops, abundant cabinetry, and a large centre island.The primary bedroom retreat includes a walk-in closet and a luxurious ensuite with a large tiled shower and deep corner soaker tub. A second bedroom at the front of the home is ideal for guests or a home office and is conveniently located near a four-piece bath.Thoughtfully laid out with quality finishes throughout, this home offers elegant, low-maintenance living in a premier neighbourhood.Model home located at 4 Thompson Court, Tillsonburg, Ontario. (id:64974)
Quick Facts
- Property Type: House (Freehold)
- Style: Bungalow
- Bedrooms: 2 (2 above)
- Bathrooms: 2
- Ownership: Freehold
- Attached: No
- Parking: 4 spaces (Attached Garage, Garage)
- Frontage: 52 ft (15.8 m)
Listing Provided by: Century 21 Heritage House Ltd Brokerage
Board: Woodstock Ingersoll Tillsonburg and Area Association of REALTORS® (WITAAR)
Data provided via CREA DDF®.
Detailed Features
Interior & Systems
- Heating: Forced air, Natural gas
- Cooling: Central air conditioning, Air exchanger
- Basement: Unfinished, N/A
Exterior & Construction
- Style: Bungalow
- Exterior: Brick, Stucco
- Foundation: Poured Concrete
- Sewer: Sanitary sewer
- Water: Municipal water
Lot & Land
- Frontage: 52 ft (15.8 m)
- Zoning: R1
Community & Neighbourhood
- Neighbourhood: Tillsonburg
Room Details (5 rooms)
Listing Information
Listing History
Buy/Sell/Terminated/Expired listing history for LOT 7 (14) DARROW DRIVE, Tillsonburg, Ontario, N4G0L3
Location & Neighborhood
🚗 Travel times
Neighborhood Walkability
Mortgage & Cost Calculators
Nearby Homes (Within 2km)
Similar Homes
Similar Properties
No rental comparables found in this area.
Sold Comparables
Access to sold property data requires a registered and verified account with TRREB DDF integration.
Coming SoonRented Comparables
Access to rented property data requires a registered and verified account with TRREB DDF integration.
Coming Soon























