12 DARROW DRIVE E, Tillsonburg, Ontario, N4G1C4
MLS: X12763492 | House (Freehold)
$1,049,900



Property Description
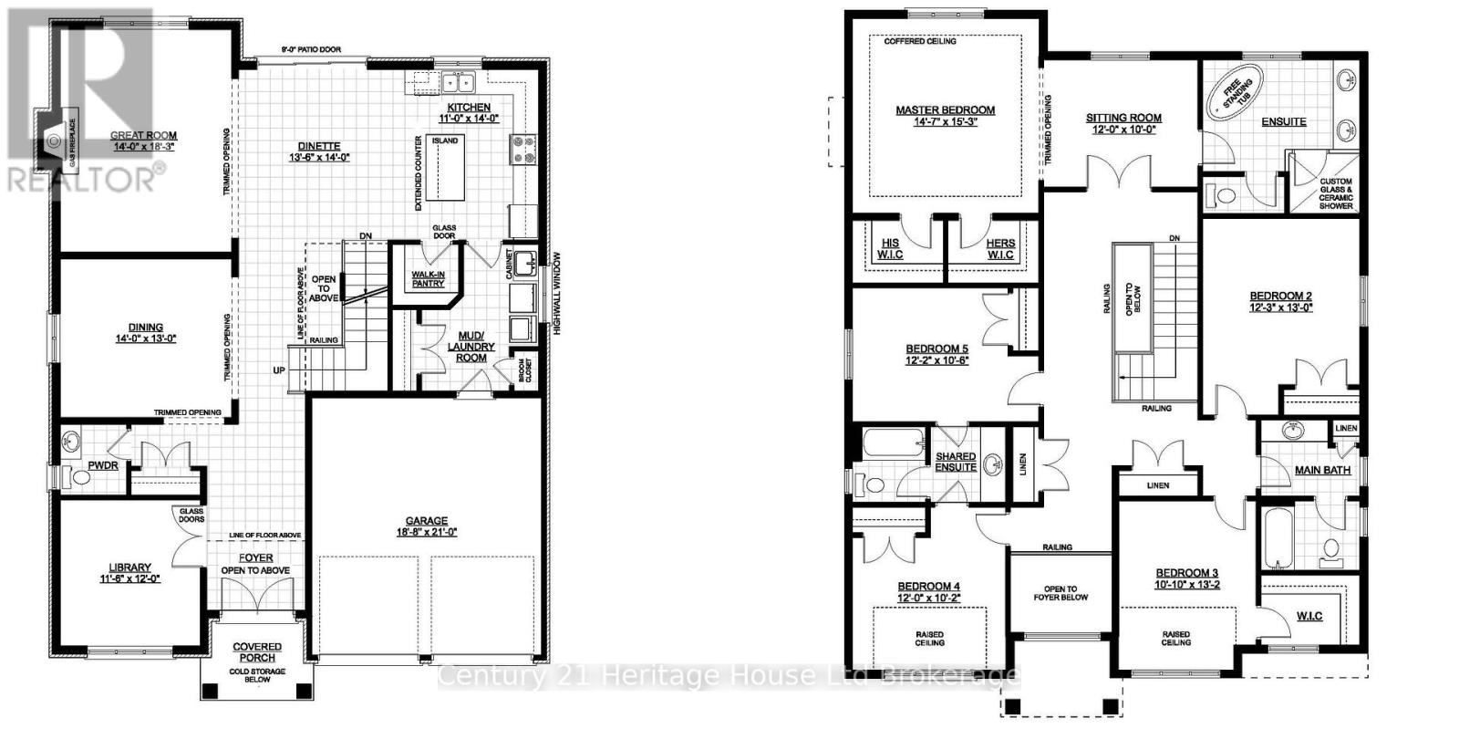
Introducing the to-be-built Magnolia Model by Trevalli Homes, located in the desirable Westwinds community in Tillsonburg Ont. This stunning 3,405 sq. ft. two-storey home is thoughtfully designed for modern and multi-generational living, offering generous shared spaces alongside private retreats.A large foyer creates an impressive first impression, leading into a beautifully balanced main floor featuring a private den/study, formal dining room, and a spacious great room ideal for everyday living. The chef-inspired kitchen showcases abundant cabinetry, extensive storage, and a large island, making it perfect for entertaining.The upper level offers five bedrooms, including a luxurious primary bedroom designed as a true adult retreat. This impressive suite features a dedicated sitting area, his-and-hers walk-in closets, a coffered ceiling, and a spa-inspired en-suite bathroom, creating a serene private escape. Four additional well-sized bedrooms provide excellent functionality, with a Jack-and-Jill bathroom servicing two bedrooms and a main bath serving the remaining two.Built by Trevalli Homes, a trusted builder known for quality craftsmanship and attention to detail. Additional bungalow and two-storey floor plans are available, along with flexible deposit structures and closing dates, offering a rare opportunity to build a home tailored to today's lifestyles.Open House Location: 4 Thompson Court , Tillsonburg, Ont (id:64974)
Quick Facts
- Property Type: House (Freehold)
- Bedrooms: 5 (5 above)
- Bathrooms: 4 (1 half)
- Ownership: Freehold
- Attached: No
- Parking: 4 spaces (Attached Garage, Garage)
- Frontage: 52 ft (15.8 m)
Listing Provided by: Century 21 Heritage House Ltd Brokerage
Board: Woodstock Ingersoll Tillsonburg and Area Association of REALTORS® (WITAAR)
Data provided via CREA DDF®.
Detailed Features
Interior & Systems
- Heating: Forced air, Natural gas
- Cooling: Central air conditioning, Air exchanger
- Basement: Full
Exterior & Construction
- Exterior: Brick, Stucco
- Foundation: Poured Concrete
- Sewer: Sanitary sewer
- Water: Municipal water
Lot & Land
- Frontage: 52 ft (15.8 m)
- Zoning: R1
Community & Neighbourhood
- Neighbourhood: Tillsonburg
Room Details (11 rooms)
Listing Information
Listing History
Buy/Sell/Terminated/Expired listing history for 12 DARROW DRIVE E, Tillsonburg, Ontario, N4G1C4
Location & Neighborhood
🚗 Travel times
Neighborhood Walkability
Mortgage & Cost Calculators
Nearby Homes (Within 2km)
Similar Homes
Similar Properties
No rental comparables found in this area.
Sold Comparables
Access to sold property data requires a registered and verified account with TRREB DDF integration.
Coming SoonRented Comparables
Access to rented property data requires a registered and verified account with TRREB DDF integration.
Coming Soon
























