LOT 38 FALLINGBROOK ROAD, London South (South V), Ontario, N6P1H5
MLS: X12972278 | House (Freehold)
$1,217,150


























Property Description
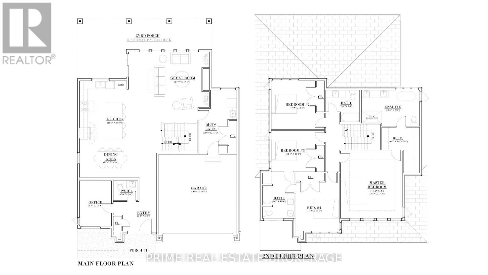
What if you could walk through your home before it's built, and change anything you want? That's how Halcyon Homes works.At 4232 Fallingbrook Road in The Heathwoods, Lambeth, this to-be-built 4-bedroom, 3.5-bathroom custom home sits on one of the community's most coveted lots: a premium 50' x 152' parcel backing onto mature trees. Privacy like this doesn't come along often.Every Halcyon home starts with a model concept, in this case the Arvada at approximately 2,800 sq ft, but nothing is locked in. You choose the layout, the finishes, and the flow of every room. Their design-build process is unlike anything you've experienced: transparent pricing, real-time plan modifications in their design studio, and a dedicated team that walks you through every decision without pressure or hidden costs.Pricing shown reflects the Arvada model. These are starting concepts to give you a real sense of what's possible. Reach out for a no-pressure discovery call and you'll learn more about new home construction than you thought possible.The Heathwoods puts you minutes from Lambeth Village's cafés and local shops, with quick access to Hwy 401/402 when you need it. Walk through The Myra Model Home at 4100 Fallingbrook Road to experience Halcyon's quality firsthand. Pricing includes HST rebate. A lot premium of $60,000 plus HST , not included in the price. Ask us about the $100,000 builder incentive. Only a few lots remain. (id:64974)
Quick Facts
- Property Type: House (Freehold)
- Bedrooms: 4 (4 above)
- Bathrooms: 4 (1 half)
- Ownership: Freehold
- Attached: No
- Fireplaces: 1
- Parking: 4.0 spaces (Attached Garage, Garage)
- Frontage: 50 ft (15.2 m)
Listing Provided by: PRIME REAL ESTATE BROKERAGE
Board: London and St. Thomas Association of REALTORS®
Data provided via CREA DDF®.
Detailed Features
Interior & Systems
- Heating: Forced air, Electric
- Cooling: Central air conditioning, Air exchanger
- Basement: Unfinished, N/A
- Appliances: Water meter, Garage door opener remote(s)
- Utilities: Sewer, Electricity, Cable
Exterior & Construction
- Exterior: Brick, Aluminum siding
- Foundation: Poured Concrete
- Sewer: Sanitary sewer
- Water: Municipal water
Lot & Land
- Frontage: 50 ft (15.2 m)
- Features: Flat site
- Zoning: H, R1-4
Community & Neighbourhood
- Building: Fireplace(s)
- Neighbourhood: South V
Room Details (12 rooms)
Listing Information
Listing History
MLS listing activity for LOT 38 FALLINGBROOK ROAD, London South (South V), Ontario, N6P1H5 — dates reflect when changes were recorded in the DDF
🚗 Travel times
Neighborhood Walkability
Mortgage & Cost Calculators
Nearby Homes ?Nearby Homes — Search CriteriaSearch Radius1 kmPrice Range±5%Match BedroomsYesMatch BathroomsYes

LOT 70 FALLINGBROOK ROAD, London South (South V)
House$898,500
Listing Courtesy of ROYAL LEPAGE TRILAND REALTY

LOT 68 FALLINGBROOK ROAD, London South (South V)
House$1,052,000
Listing Courtesy of PRIME REAL ESTATE BROKERAGE

6763 HEATHWOODS AVENUE, London South (South V)
House$779,900
Listing Courtesy of ROYAL LEPAGE TRILAND REALTY

6769 HEATHWOODS AVENUE, London South (South V)
House$865,000
Listing Courtesy of ROYAL LEPAGE TRILAND REALTY

4146 FALLINGBROOK ROAD, London South (South V)
House$1,399,900
Listing Courtesy of NU-VISTA PINNACLE REALTY BROKERAGE INC

6747 HEATHWOODS AVENUE, London South (South V)
House$749,800
Listing Courtesy of ROYAL LEPAGE TRILAND REALTY

6803 HEATHWOODS AVENUE, London South (South V)
House$969,500
Listing Courtesy of ROYAL LEPAGE TRILAND REALTY

6790 HEATHWOODS AVENUE, London South (South V)
House$799,800
Listing Courtesy of ROYAL LEPAGE TRILAND REALTY

4100 FALLINGBROOK ROAD, London South (South V)
House$1,689,000
Listing Courtesy of PRIME REAL ESTATE BROKERAGE

4275 SAGEBRUSH CRESCENT, London South (South V)
House$917,900
Listing Courtesy of THRIVE REALTY GROUP INC.

4228 FALLINGBROOK ROAD, London South (South V)
House$1,349,000
Listing Courtesy of THE AGENCY REAL ESTATE

4260 SAGEBRUSH CRESCENT, London South (South V)
House$849,900
Listing Courtesy of THRIVE REALTY GROUP INC.

4368 SAGEBRUSH CRESCENT, London South (South V)
House$819,900
Listing Courtesy of ROYAL LEPAGE TRILAND PREMIER BROKERAGE

4038 AYRSHIRE AVENUE, London South (South V)
House$1,787,500
Listing Courtesy of ROYAL LEPAGE TRILAND REALTY

4354 SAGEBRUSH CRESCENT, London South (South V)
House$749,900
Listing Courtesy of ROYAL LEPAGE TRILAND PREMIER BROKERAGE
Similar Homes ?Similar Homes — Search CriteriaSearch Radius5 kmPrice Range±5%Match Home TypeYesMatch BedroomsYes

2285 LILAC AVENUE, London South (South K)
House$1,225,000
$6,796/yr taxListing Courtesy of ROYAL LEPAGE TRILAND REALTY

6968 CLAYTON WALK, London South (South V)
House$1,229,000
$9,187/yr taxListing Courtesy of ROYAL LEPAGE TRILAND ROBERT DILORETO REALTY

7251 SILVER CREEK CIRCLE, London South (South V)
House$1,229,888
$9,470/yr taxListing Courtesy of CENTURY 21 FIRST CANADIAN CORP. DEAN SOUFAN INC.

2048 WICKERSON ROAD, London South (South K)
House$1,235,000
Listing Courtesy of EXP REALTY

6320 BRASH DRIVE, London South (South V)
House$1,199,000
$8,231/yr taxListing Courtesy of BLUE FOREST REALTY INC.

4398 GREEN BEND ROAD, London South (South V)
House$1,249,000
Listing Courtesy of CENTURY 21 FIRST CANADIAN CORP

7071 CLAYTON WALK, London South (South V)
House$1,249,999
$8,566/yr taxListing Courtesy of CENTURY 21 FIRST CANADIAN CORP
Similar Properties ?Active Comparables — Search CriteriaSearch Radius2 kmPrice Range±5%Match Home TypeYesMatch BedroomsYes

6968 CLAYTON WALK, London South (South V)
House$1,229,000
$9,187/yr taxListing Courtesy of ROYAL LEPAGE TRILAND ROBERT DILORETO REALTY

7251 SILVER CREEK CIRCLE, London South (South V)
House$1,229,888
$9,470/yr taxListing Courtesy of CENTURY 21 FIRST CANADIAN CORP. DEAN SOUFAN INC.

6320 BRASH DRIVE, London South (South V)
House$1,199,000
$8,231/yr taxListing Courtesy of BLUE FOREST REALTY INC.

4398 GREEN BEND ROAD, London South (South V)
House$1,249,000
Listing Courtesy of CENTURY 21 FIRST CANADIAN CORP

7071 CLAYTON WALK, London South (South V)
House$1,249,999
$8,566/yr taxListing Courtesy of CENTURY 21 FIRST CANADIAN CORP
No rental comparables found in this area.
Sold Comparables
Access to sold property data requires a registered and verified account with TRREB DDF integration.
Coming SoonRented Comparables
Access to rented property data requires a registered and verified account with TRREB DDF integration.
Coming SoonBook a Viewing
LOT 38 FALLINGBROOK ROAD, London South (South V), Ontario, N6P1H5
