4228 FALLINGBROOK ROAD, London South (South V), Ontario, N6P0H8
MLS: X12991614 | House (Freehold)
$1,349,000



















































Property Description
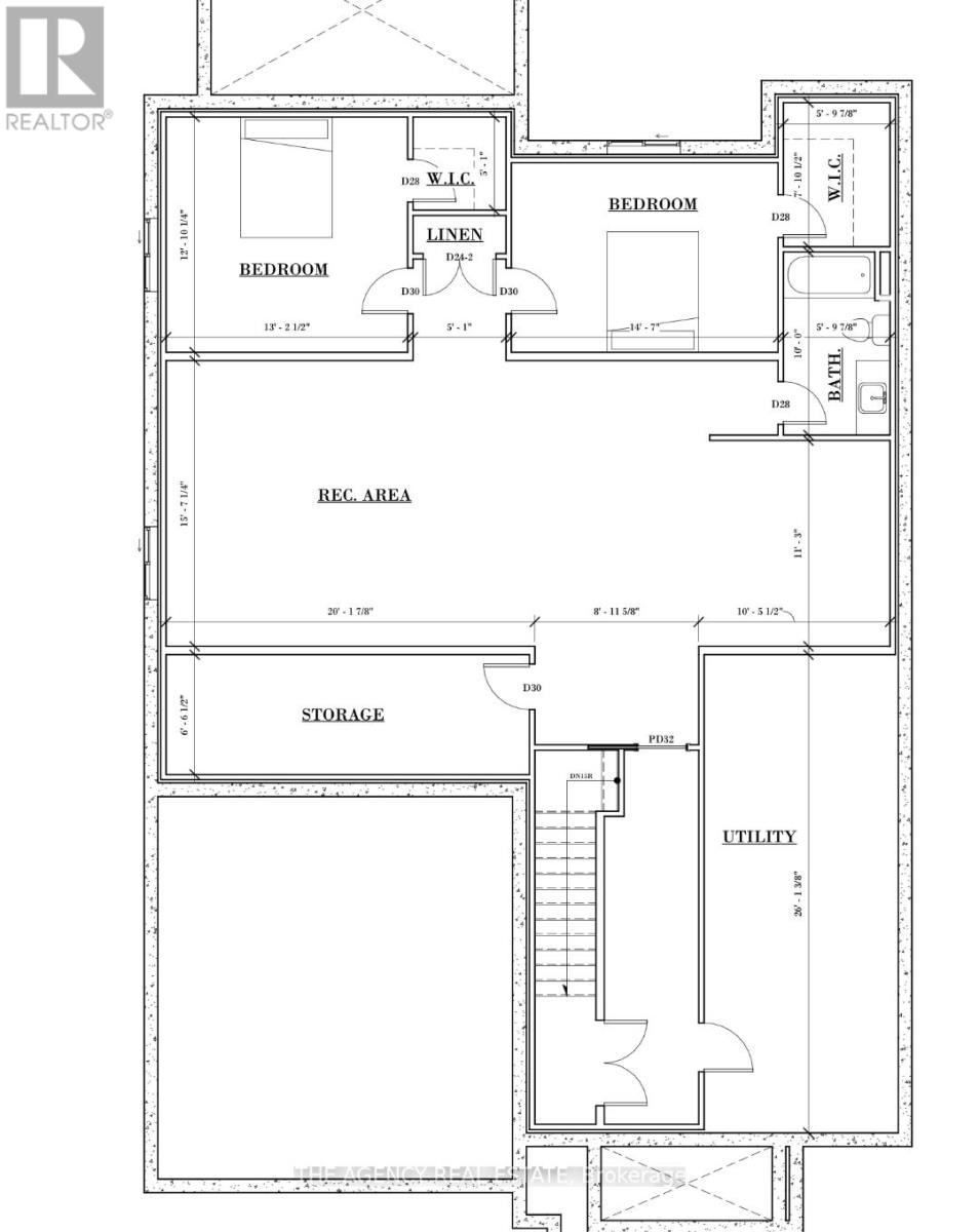
Tucked into the prestigious enclave of Heathwoods in Lambeth. This exceptional bungalow sitson a premium 50 x 152 ft lot, bordered by a green space entrance and backing onto protectedtrees offering rare privacy and a peaceful natural backdrop just minutes to the 401, shopping,schools and dining.Thoughtfully designed with nearly 2,000 sq ft on the main level, this 2 bedroom, 2.5 bath homealso features an unfinished lower level with over 1,100 sq ft, a finished hallway and bathroomrough-in ideal for future bedrooms, living space or a custom layout tailored to your needs.This home is defined by two standout themes. First, a refined Scandinavian-inspired aesthetic with a focus on simplicity, warmth and upscale finishes. Clean lines, natural textures, custom millwork, statement ceiling beams and expansive windows create a calm, elevated living experience that feels both modern and timeless.Second, a commitment to eco-conscious, high-efficiency living. Designed for long-term sustainability and low maintenance, the home features a durable metal roof, solar panel system, high-performance heat pump, multi-zone HVAC, enhanced insulation, and energy-efficient systems throughout delivering comfort, cost savings and peace of mind for years to come.The result is a rare offering that seamlessly blends design-forward living with smart, future-focused performance all in one of Lambeth's most sought-after communities. (id:64974)
Quick Facts
- Property Type: House (Freehold)
- Style: Bungalow
- Bedrooms: 2 (2 above)
- Bathrooms: 3 (1 half)
- Ownership: Freehold
- Attached: No
- Fireplaces: Yes
- Parking: 6.0 spaces (Attached Garage, Garage)
- Frontage: 50 ft (15.2 m)
Listing Provided by: THE AGENCY REAL ESTATE
Board: London and St. Thomas Association of REALTORS®
Data provided via CREA DDF®.
Detailed Features
Interior & Systems
- Heating: Heat Pump, Electric
- Cooling: Central air conditioning, Air exchanger
- Basement: Unfinished, Full
- Appliances: Range, Alarm System, Oven - Built-In, Garage door opener remote(s), Water Heater - Tankless, Water Heater
- Utilities: Sewer, Electricity, Cable
- Electrical: Generator
- Security: Alarm system, Monitored Alarm
Exterior & Construction
- Style: Bungalow
- Exterior: Brick, Stucco
- Foundation: Concrete
- Sewer: Sanitary sewer
- Water: Municipal water
Lot & Land
- Frontage: 50 ft (15.2 m)
- Features: Wooded area, Flat site, Carpet Free, Sump Pump, Solar Equipment
Community & Neighbourhood
- Community: School Bus
- Building: Separate Heating Controls, Fireplace(s)
- Neighbourhood: South V
Room Details (8 rooms)
Listing Information
Listing History
MLS listing activity for 4228 FALLINGBROOK ROAD, London South (South V), Ontario, N6P0H8 — dates reflect when changes were recorded in the DDF
🚗 Travel times
Neighborhood Walkability
Mortgage & Cost Calculators
Nearby Homes ?Nearby Homes — Search CriteriaSearch Radius1 kmPrice Range±5%Match BedroomsYesMatch BathroomsYes

4260 SAGEBRUSH CRESCENT, London South (South V)
House$849,900
Listing Courtesy of THRIVE REALTY GROUP INC.

6803 HEATHWOODS AVENUE, London South (South V)
House$969,500
Listing Courtesy of ROYAL LEPAGE TRILAND REALTY

4368 SAGEBRUSH CRESCENT, London South (South V)
House$819,900
Listing Courtesy of ROYAL LEPAGE TRILAND PREMIER BROKERAGE

4354 SAGEBRUSH CRESCENT, London South (South V)
House$749,900
Listing Courtesy of ROYAL LEPAGE TRILAND PREMIER BROKERAGE

4275 SAGEBRUSH CRESCENT, London South (South V)
House$917,900
Listing Courtesy of THRIVE REALTY GROUP INC.

6790 HEATHWOODS AVENUE, London South (South V)
House$799,800
Listing Courtesy of ROYAL LEPAGE TRILAND REALTY

LOT 68 FALLINGBROOK ROAD, London South (South V)
House$1,052,000
Listing Courtesy of PRIME REAL ESTATE BROKERAGE

LOT 38 FALLINGBROOK ROAD, London South (South V)
House$1,217,150
Listing Courtesy of PRIME REAL ESTATE BROKERAGE

LOT 70 FALLINGBROOK ROAD, London South (South V)
House$898,500
Listing Courtesy of ROYAL LEPAGE TRILAND REALTY

6875 HEATHWOODS AVENUE, London South (South V)
House$1,043,900
Listing Courtesy of EXP REALTY

6769 HEATHWOODS AVENUE, London South (South V)
House$865,000
Listing Courtesy of ROYAL LEPAGE TRILAND REALTY

6763 HEATHWOODS AVENUE, London South (South V)
House$779,900
Listing Courtesy of ROYAL LEPAGE TRILAND REALTY

4197 FALLINGBROOK ROAD, London South (South V)
House$1,149,900
Listing Courtesy of ROYAL LEPAGE TRILAND PREMIER BROKERAGE

4146 FALLINGBROOK ROAD, London South (South V)
House$1,399,900
Listing Courtesy of NU-VISTA PINNACLE REALTY BROKERAGE INC

6747 HEATHWOODS AVENUE, London South (South V)
House$749,800
Listing Courtesy of ROYAL LEPAGE TRILAND REALTY
Similar Homes ?Similar Homes — Search CriteriaSearch Radius5 kmPrice Range±5%Match Home TypeYesMatch BedroomsYes

1920 37 LINE, Wilmot
House$1,349,000
$4,309/yr taxListing Courtesy of SOTHEBY'S INTERNATIONAL REALTY CANADA

5600 CEDAR SPRINGS ROAD, Burlington
House$1,349,000
$5,641/yr taxListing Courtesy of KELLER WILLIAMS EDGE REALTY

683 GLENGROVE AVENUE, Toronto (Yorkdale-Glen Park)
Single Family$1,349,000
$7,274/yr taxListing Courtesy of SUTTON GROUP-ASSOCIATES REALTY INC.

215 YARMOUTH ROAD, Toronto (Dovercourt-Wallace Emerson-Junction)
House$1,349,000
$2,866/yr taxListing Courtesy of ROYAL LEPAGE SIGNATURE REALTY

907 - 55 STEWART STREET S, Toronto (Waterfront Communities)
Condo - Apartment$1,349,000
$5,920/yr taxListing Courtesy of SUTTON GROUP-ADMIRAL REALTY INC.

417 LADY NADIA DRIVE, Vaughan (Patterson)
House$1,349,000
$5,854/yr taxListing Courtesy of TESA REAL ESTATE INC.

320 ASHBURY ROAD, Oakville (WO West)
House$1,349,000
$4,775/yr taxListing Courtesy of BEST SELLERS REAL ESTATE LTD.

190 POYNTZ AVENUE, Toronto (Lansing-Westgate)
House$1,349,000
$6,789/yr taxListing Courtesy of HOMELIFE/MIRACLE REALTY LTD

5600 CEDAR SPRINGS Road, Burlington
House$1,349,000
$5,641/yr taxListing Courtesy of Keller Williams Edge Realty

284 CRICHTON STREET, Ottawa
House$1,349,000
$7,718/yr taxListing Courtesy of ROYAL LEPAGE TEAM REALTY

11 EDGEWATER DRIVE, Selwyn
House$1,349,000
$5,186/yr taxListing Courtesy of ROYAL LEPAGE FRANK REAL ESTATE

119 TEMPERANCE STREET, Aurora (Aurora Village)
House$1,349,000
$4,859/yr taxListing Courtesy of RE/MAX HALLMARK YORK GROUP REALTY LTD.

111 PATRICIA DRIVE, Blue Mountains
House$1,349,000
$7,737/yr taxListing Courtesy of Sotheby's International Realty Canada

1004C PUBLIC BEACH ROAD, Frontenac (Frontenac Centre)
House$1,349,000
$5,709/yr taxListing Courtesy of ROYAL LEPAGE PROALLIANCE REALTY, BROKERAGE

2470 MEADOWOOD CRESCENT, Oakville (BR Bronte)
House$1,349,000
$4,991/yr taxListing Courtesy of SAM MCDADI REAL ESTATE INC.
Similar Properties ?Active Comparables — Search CriteriaSearch Radius2 kmPrice Range±5%Match Home TypeYesMatch BedroomsYes
No active comparables found in this area.

29 - 3900 SAVOY STREET, London South (South V)
Condo - Row / Townhouse$2,400/mo
Listing Courtesy of OLIVER & ASSOCIATES SARAH OLIVER REAL ESTATE BROKERAGE

151 - 3900 SAVOY STREET, London South (South V)
Single Family$2,100/mo
Listing Courtesy of ZOLO REALTY
Sold Comparables
Access to sold property data requires a registered and verified account with TRREB DDF integration.
Coming SoonRented Comparables
Access to rented property data requires a registered and verified account with TRREB DDF integration.
Coming SoonBook a Viewing
4228 FALLINGBROOK ROAD, London South (South V), Ontario, N6P0H8
