LOT 3 GEORGE STREET, Guelph/Eramosa (Rockwood), Ontario, N0B2K0
MLS: X12432306 | House (Freehold)
$1,299,000




Property Description
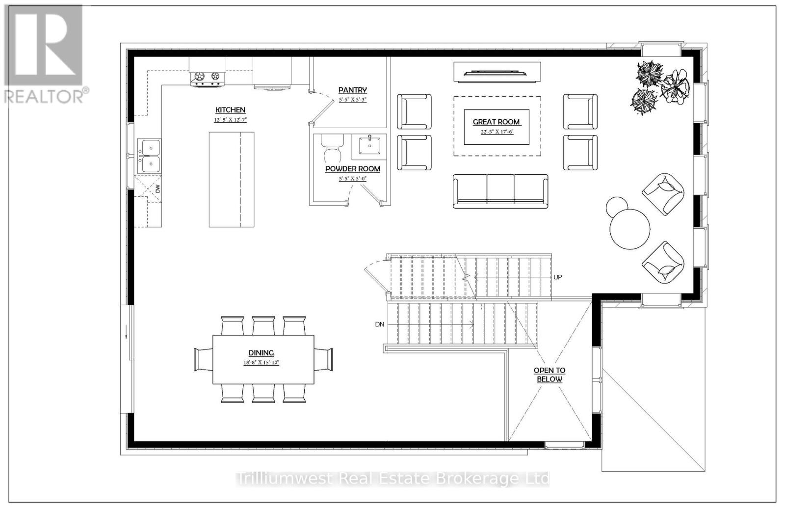
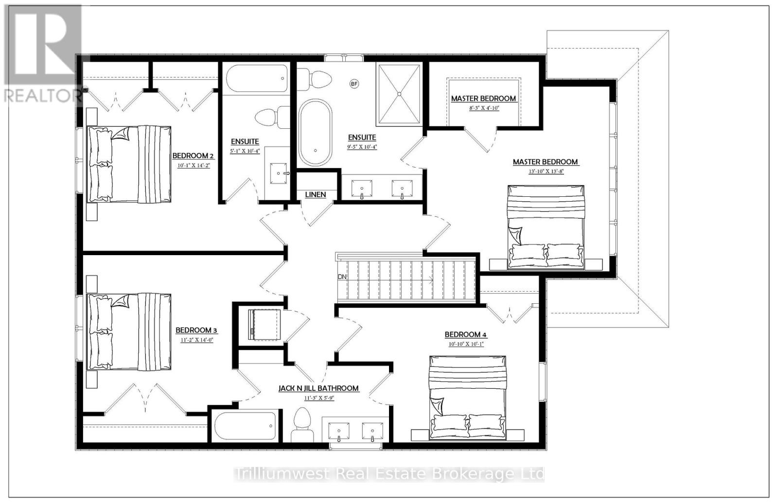
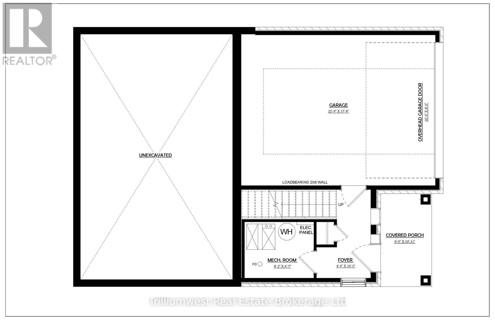
Don't miss out on the chance to create your dream home with Crescent Homes in the charming Village of Rockwood! We currently have three stunning lots available, along with the option to choose from two thoughtfully designed floor plans that cater to your family's needs.Our homes boast impressive 9-foot ceilings and a carpet-free main floor, featuring a gourmet kitchen, four spacious bedrooms, three full bathrooms, and an additional powder room. Plus, the convenience of an upstairs laundry makes everyday living a breeze. There's ample space for everyone to enjoy!Reach out to us today to discover more about building your new home in Rockwood. Your dream home awaits! (id:64974)
Quick Facts
- Property Type: House (Freehold)
- Bedrooms: 4 (4 above)
- Bathrooms: 4 (1 half)
- Ownership: Freehold
- Attached: No
- Parking: 4 spaces (Attached Garage, Garage)
- Frontage: 46 ft (13.9 m)
Listing Provided by: Trilliumwest Real Estate Brokerage
Board: OnePoint Association of REALTORS®
Data provided via CREA DDF®.
Detailed Features
Interior & Systems
- Heating: Forced air, Natural gas
- Cooling: None
- Basement: Partial
Exterior & Construction
- Exterior: Brick, Vinyl siding
- Foundation: Poured Concrete
- Sewer: Sanitary sewer
- Water: Municipal water
Lot & Land
- Frontage: 46 ft (13.9 m)
Community & Neighbourhood
- Neighbourhood: Rockwood
Room Details (11 rooms)
Listing Information
Listing History
Buy/Sell/Terminated/Expired listing history for LOT 3 GEORGE STREET, Guelph/Eramosa (Rockwood), Ontario, N0B2K0
Location & Neighborhood
🚗 Travel times
Neighborhood Walkability
Mortgage & Cost Calculators
Nearby Homes (Within 2km)
Similar Homes
Similar Properties
No rental comparables found in this area.
Sold Comparables
Access to sold property data requires a registered and verified account with TRREB DDF integration.
Coming SoonRented Comparables
Access to rented property data requires a registered and verified account with TRREB DDF integration.
Coming Soon



















