LOT 0225 DOMINIQUE Street, Kitchener, Ontario, N2E0J9
MLS: 40800235 | House (Freehold)
$1,109,900




Property Description
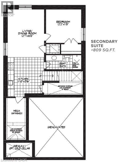
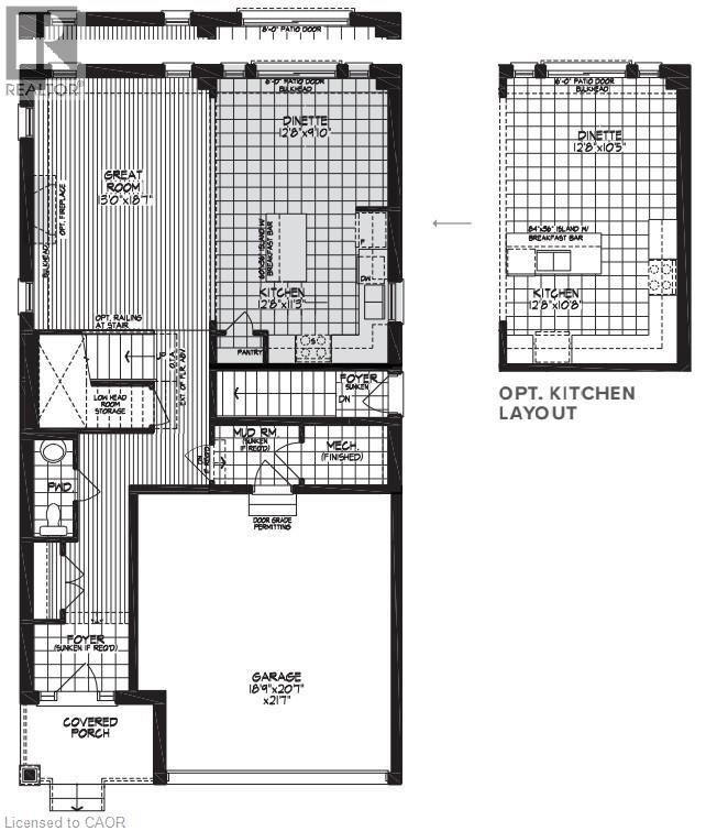
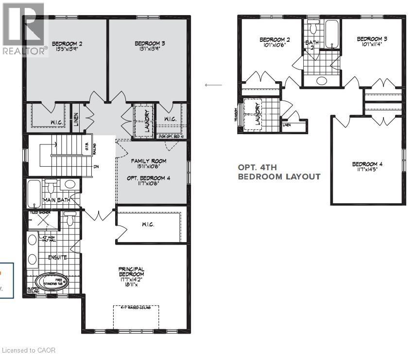
Located in the desirable Trussler West community, the Miles 2 Summit Suites is not only a fantastic floor plan but also features a PRIVATE SECONDARY SUITE! Perfect for either a rental suite or for extended family! The main floor of this home features a spacious great room, a dining room, and a kitchen complete with a dinette and pantry. It also includes a mudroom, and a powder room, with convenient access to the covered porch and garage. On the second floor, you’ll find a principal bedroom with an ensuite and walk-in closet, along with two additional bedrooms, a family room (which can be upgraded into a fourth bedroom), and a main bathroom. The Secondary suite complete with its own side entrance, kitchen, bathroom, living room and separate mechanical room for added comfort, privacy and flexibility. Trussler West features scenic walking trails, parks as well as easy access to the expressway and numerous amenities close by! Stop by the sales centre located at 62 Nathalie Street Monday-Wednesday from 4-7pm and Saturday and Sunday from 1-5pm to learn more about the secondary suite options available. (id:64974)
Quick Facts
- Property Type: House (Freehold)
- Style: 2 Level
- Bedrooms: 4 (3 above, 1 below)
- Bathrooms: 4 (1 half)
- Living Area: 3,245 sq ft (301.5 m²)
- Above Grade: 2,436 sq ft (226.3 m²)
- Below Grade: 809 sq ft (75.2 m²)
- Ownership: Freehold
- Attached: No
- Parking: 2 spaces (Attached Garage)
- Frontage: 36 ft (11 m)
Listing Provided by: Royal LePage Wolle Realty
Board: Cornerstone Association of REALTORS®
Data provided via CREA DDF®.
Detailed Features
Interior & Systems
- Heating: Forced air, Natural gas
- Cooling: Central air conditioning
- Basement: Finished, Full
Exterior & Construction
- Style: 2 Level
- Exterior: Vinyl siding, Brick Veneer
- Sewer: Municipal sewage system
- Water: Municipal water
Lot & Land
- Frontage: 36 ft (11 m)
- Zoning: R-4
Community & Neighbourhood
- Subdivision: 336 - Trussler
Room Details (17 rooms)
Listing Information
Listing History
Buy/Sell/Terminated/Expired listing history for LOT 0225 DOMINIQUE Street, Kitchener, Ontario, N2E0J9
Location & Neighborhood
🚗 Travel times
Neighborhood Walkability
Mortgage & Cost Calculators
Nearby Homes (Within 2km)
Similar Homes
Similar Properties
No rental comparables found in this area.
Sold Comparables
Access to sold property data requires a registered and verified account with TRREB DDF integration.
Coming SoonRented Comparables
Access to rented property data requires a registered and verified account with TRREB DDF integration.
Coming Soon


















