230 KITCHENER Road, Cambridge, Ontario, N3H1A6
MLS: 40792236 | House (Freehold)
$1,099,900


















































Property Description
Welcome to 230 Kitchener Rd, a spacious 3+2 bedroom, 2-bathroom side split offering over 2500 sqft on a rare half-acre plus city lot. This unique property is an entrepreneur's dream, boasting parking for up to 10 vehicles, a 20x20 detached workshop with full hydro, and a double-car garage featuring a fully functional service pit – perfect for an RV or home-based business. Inside, enjoy maple hardwood and ceramics throughout the main levels, an all-wood custom kitchen, separate dining room, and a cozy gas fireplace. A finished man cave with heat and roughed-in plumbing extends from the garage, leading to the backyard. The property also features one of Waterloo Region's largest black walnut trees, a large wrap-around deck, and updated 200 amp service. The full unfinished basement with a French drain and roughed-in bath provides ample storage and future potential. Don't miss your chance to view this well-kept, move-in-ready family home. Call today and book your private showing to see this one of a kind property and all it has to offer! (id:64974)
Quick Facts
- Property Type: House (Freehold)
- Bedrooms: 5 (5 above)
- Bathrooms: 2
- Living Area: 2,501 sq ft (232.4 m²)
- Above Grade: 2,501 sq ft (232.4 m²)
- Year Built: 1954
- Ownership: Freehold
- Attached: No
- Fireplaces: 1
- Parking: 10 spaces (Attached Garage, Detached Garage)
- Frontage: 124 ft (37.8 m)
Costs
- Annual Taxes: $6,159.00
Listing Provided by: RE/MAX REAL ESTATE CENTRE INC., BROKERAGE
Board: Cornerstone Association of REALTORS®
Data provided via CREA DDF®.
Detailed Features
Interior & Systems
- Heating: Forced air, Natural gas
- Cooling: Central air conditioning
- Basement: Partially finished, Full
- Appliances: Washer, Refrigerator, Water softener, Dishwasher, Stove, Dryer, Window Coverings, Garage door opener, Microwave Built-in
- Security: Smoke Detectors
Exterior & Construction
- Exterior: Brick, Vinyl siding
- Sewer: Municipal sewage system
- Water: Municipal water
Lot & Land
- Frontage: 124 ft (37.8 m)
- Features: Conservation/green belt, Sump Pump, Automatic Garage Door Opener
- Zoning: R4
Community & Neighbourhood
- Community: Quiet Area, School Bus, Community Centre
- Subdivision: 52 - Preston North
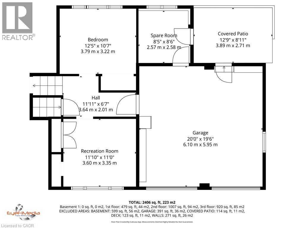
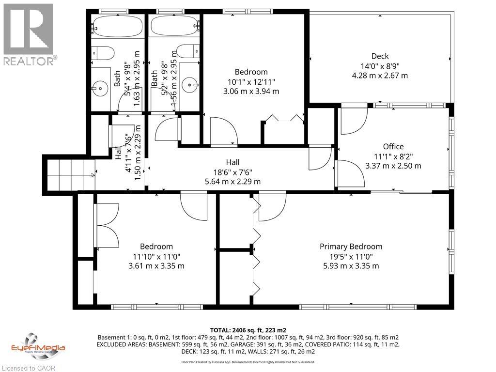
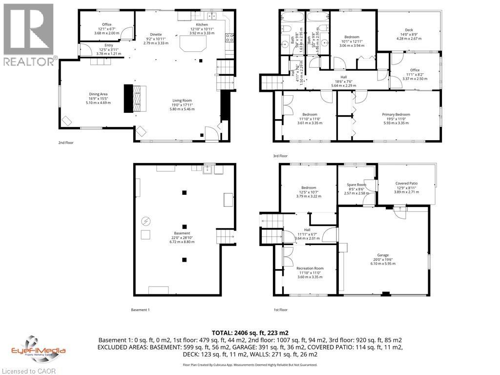
Room Details (14 rooms)
Listing Information
Listing History
Buy/Sell/Terminated/Expired listing history for 230 KITCHENER Road, Cambridge, Ontario, N3H1A6
Location & Neighborhood
🚗 Travel times
Neighborhood Walkability
Mortgage & Cost Calculators
Nearby Homes (Within 2km)
Similar Homes
Similar Properties
No rental comparables found in this area.
Sold Comparables
Access to sold property data requires a registered and verified account with TRREB DDF integration.
Coming SoonRented Comparables
Access to rented property data requires a registered and verified account with TRREB DDF integration.
Coming Soon
























