862 WHITE PINE STREET, London North (North S), Ontario, N6G3X9
MLS: X12971880 | House (Freehold)
$1,394,900



















Property Description
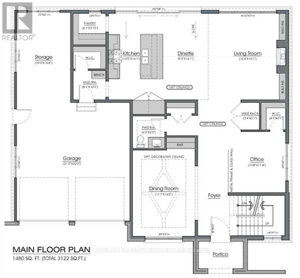
Royal Oak Homes proudly presents The Aspen, a stunning two-storey Nashville inspired home TO BE BUILT in the prestigious Sunningdale Crossings community offers undeniable curb appeal with its classic red brick exterior, black trim accents, and striking architectural details. The elegant arched entryway framed by lantern-style sconces creates a warm welcome, while large, gridded windows flood the interior with natural light and enhance the homes stately character. Inside, the kitchen boasts a soaring two-storey ceiling, creating a dramatic and airy atmosphere. From the upper level, a balcony overlooks the main living space, blending openness with connectivity and making this home ideal for both entertaining and everyday family living. The property features a double-car garage, 4 bedrooms and 2.5 bathrooms, a sophisticated roofline with gables that add depth and charm. Every detail of the exterior showcases a balance of traditional craftsmanship and modern refinement. The main floor offers a huge living area, dining room, and kitchen, highlighted with arched walkways to a pantry and mudroom. An office on the main floor provides the perfect space for working from home. The upper level is home to all four bedrooms, including a generous primary suite with a luxurious 5-piece ensuite. A convenient laundry room completes the upstairs, designed to make daily routines easier. Enjoy quick access to parks, scenic trails, top-rated schools, shopping, and major highways. More plans and lots are available. Photos are from previous models for illustrative purposes; each model differs in design and client selections. (id:64974)
Quick Facts
- Property Type: House (Freehold)
- Bedrooms: 4 (4 above)
- Bathrooms: 4 (1 half)
- Ownership: Freehold
- Attached: No
- Fireplaces: 1
- Parking: 4.0 spaces (Attached Garage, Garage)
- Frontage: 58 ft (17.7 m)
Listing Provided by: CENTURY 21 FIRST CANADIAN CORP
Board: London and St. Thomas Association of REALTORS®
Data provided via CREA DDF®.
Detailed Features
Interior & Systems
- Heating: Forced air, Natural gas
- Cooling: Central air conditioning
- Basement: Unfinished, N/A
- Appliances: Water meter, Garage door opener remote(s)
- Utilities: Sewer, Electricity, Cable
- Security: Smoke Detectors
Exterior & Construction
- Exterior: Brick, Hardboard
- Foundation: Poured Concrete
- Sewer: Sanitary sewer
- Water: Municipal water
Lot & Land
- Frontage: 58 ft (17.7 m)
- Features: Flat site, Sump Pump
- Zoning: R1-4
Community & Neighbourhood
- Community: School Bus
- Building: Fireplace(s)
- Neighbourhood: North S
Room Details (15 rooms)
Listing Information
Listing History
MLS listing activity for 862 WHITE PINE STREET, London North (North S), Ontario, N6G3X9 — dates reflect when changes were recorded in the DDF
🚗 Travel times
Neighborhood Walkability
Mortgage & Cost Calculators
Nearby Homes ?Nearby Homes — Search CriteriaSearch Radius1 kmPrice Range±5%Match BedroomsYesMatch BathroomsYes

868 WHITE PINE STREET, London North (North S)
House$1,344,900
Listing Courtesy of CENTURY 21 FIRST CANADIAN CORP

2138 WALLINGFORD AVENUE, London North (North R)
House$1,450,000
$12,120/yr taxListing Courtesy of NU-VISTA PINNACLE REALTY BROKERAGE INC

855 WHITE PINE STREET, London North (North S)
House$1,244,900
Listing Courtesy of CENTURY 21 FIRST CANADIAN CORP

863 WHITE PINE STREET, London North (North S)
House$1,194,900
Listing Courtesy of CENTURY 21 FIRST CANADIAN CORP

851 WHITE PINE STREET, London North (North S)
House$1,294,900
Listing Courtesy of CENTURY 21 FIRST CANADIAN CORP

856 WHITE PINE STREET, London North (North S)
House$1,544,900
Listing Courtesy of CENTURY 21 FIRST CANADIAN CORP

871 WHITE PINE STREET, London North (North S)
House$1,194,900
Listing Courtesy of CENTURY 21 FIRST CANADIAN CORP

2022 BUROAK DRIVE E, London North (North S)
House$1,289,900
Listing Courtesy of NU-VISTA PRIMELINE REALTY INC.

2136 YELLOWBIRCH PLACE, London North (North S)
House$919,900
$6,856/yr taxListing Courtesy of UNION CAPITAL REALTY

956 EAGLETRACE DRIVE, London North (North S)
House$1,199,900
$9,019/yr taxListing Courtesy of KELLER WILLIAMS LIFESTYLES

1969 BUROAK CRESCENT, London North (North S)
House$1,499,900
$11,902/yr taxListing Courtesy of PRIME REAL ESTATE BROKERAGE

1 - 1061 EAGLETRACE DRIVE, London North (North S)
House$1,082,068
$8,097/yr taxListing Courtesy of THRIVE REALTY GROUP INC.

111 - 2250 BUROAK DRIVE, London North (North S)
Condo - Row / Townhouse$679,900
$5,616/yr taxListing Courtesy of BLUE FOREST REALTY INC.

164 - 1061 EAGLETRACE DRIVE, London North (North S)
House$1,049,900
$8,097/yr taxListing Courtesy of RE/MAX ADVANTAGE REALTY LTD.

919 FOXCREEK ROAD, London North (North S)
House$999,000
$6,591/yr taxListing Courtesy of EXP REALTY
Similar Homes ?Similar Homes — Search CriteriaSearch Radius5 kmPrice Range±5%Match Home TypeYesMatch BedroomsYes

673 VALLEYSTREAM WALK, London North (North R)
House$1,393,900
Listing Courtesy of NU-VISTA PINNACLE REALTY BROKERAGE INC

566 BRADWELL CHASE, London North (North R)
House$1,439,800
$9,455/yr taxListing Courtesy of BAY STREET INTEGRITY REALTY INC.

442 AMBLESIDE DRIVE, London North (North A)
House$1,349,000
$9,002/yr taxListing Courtesy of CENTURY 21 FIRST CANADIAN CORP

868 WHITE PINE STREET, London North (North S)
House$1,344,900
Listing Courtesy of CENTURY 21 FIRST CANADIAN CORP

2138 WALLINGFORD AVENUE, London North (North R)
House$1,450,000
$12,120/yr taxListing Courtesy of NU-VISTA PINNACLE REALTY BROKERAGE INC
Similar Properties ?Active Comparables — Search CriteriaSearch Radius2 kmPrice Range±5%Match Home TypeYesMatch BedroomsYes

673 VALLEYSTREAM WALK, London North (North R)
House$1,393,900
Listing Courtesy of NU-VISTA PINNACLE REALTY BROKERAGE INC

566 BRADWELL CHASE, London North (North R)
House$1,439,800
$9,455/yr taxListing Courtesy of BAY STREET INTEGRITY REALTY INC.

442 AMBLESIDE DRIVE, London North (North A)
House$1,349,000
$9,002/yr taxListing Courtesy of CENTURY 21 FIRST CANADIAN CORP

868 WHITE PINE STREET, London North (North S)
House$1,344,900
Listing Courtesy of CENTURY 21 FIRST CANADIAN CORP

2138 WALLINGFORD AVENUE, London North (North R)
House$1,450,000
$12,120/yr taxListing Courtesy of NU-VISTA PINNACLE REALTY BROKERAGE INC

1295 DYER CRESCENT, London North (North S)
Single Family$3,600/mo
Listing Courtesy of INITIA REAL ESTATE (ONTARIO) LTD

2029 MCCRACKEN COURT, London North (North R)
Single Family$3,500/mo
Listing Courtesy of KELLER WILLIAMS LIFESTYLES

2315 CALLINGHAM DRIVE, London North (North R)
Row / Townhouse$3,200/mo
Listing Courtesy of KELLER WILLIAMS LIFESTYLES
Sold Comparables
Access to sold property data requires a registered and verified account with TRREB DDF integration.
Coming SoonRented Comparables
Access to rented property data requires a registered and verified account with TRREB DDF integration.
Coming SoonBook a Viewing
862 WHITE PINE STREET, London North (North S), Ontario, N6G3X9
