855 WHITE PINE STREET, London North (North S), Ontario, N6G3X9
MLS: X12971890 | House (Freehold)
$1,244,900















Property Description
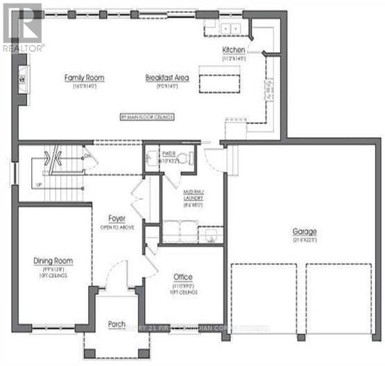
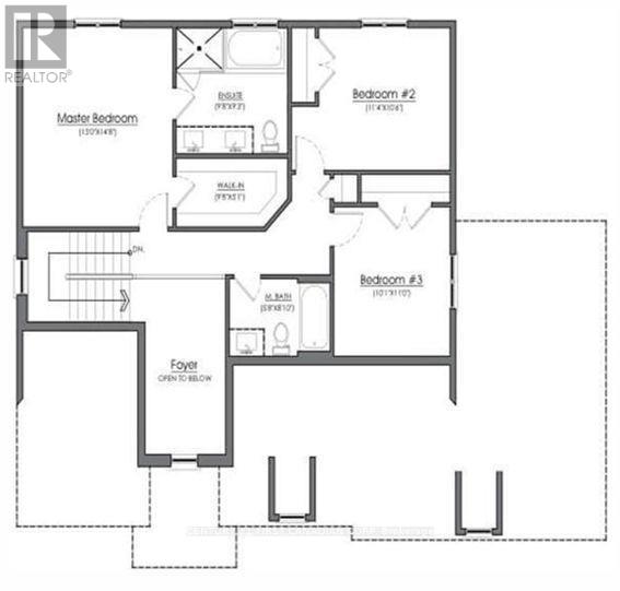
Royal Oak Homes proudly presents the Auburn I, one of our newest and most striking models, as a TO BE BUILT home in the prestigious Sunningdale Crossings community in North London. This thoughtfully designed 3-bedroom, 2.5-bath residence with a 2-car garage combines style, functionality, and comfort. The main floor features an open-concept family room with soaring 12-foot ceilings that create an airy, light-filled atmosphere, along with a dining area and kitchen enhanced with arched walkways for added appeal and access to a hidden pantryperfect for entertaining and everyday living. The upper floor hosts all three bedrooms as well as a convenient laundry area. The spacious primary suite includes a dressing room and luxurious 5-piece ensuite, while the two additional bedrooms each enjoy access to their own bathroom, offering privacy and comfort for the whole family. Enjoy quick access to parks, scenic trails, top-rated schools, shopping, and major highways. More plans and lots are available. Photos are from previous models for illustrative purposes; each model differs in design and client selections. (id:64974)
Quick Facts
- Property Type: House (Freehold)
- Bedrooms: 3 (3 above)
- Bathrooms: 3 (1 half)
- Ownership: Freehold
- Attached: No
- Fireplaces: 1
- Parking: 4.0 spaces (Attached Garage, Garage)
- Frontage: 60 ft (18.3 m)
Listing Provided by: CENTURY 21 FIRST CANADIAN CORP
Board: London and St. Thomas Association of REALTORS®
Data provided via CREA DDF®.
Detailed Features
Interior & Systems
- Heating: Forced air, Natural gas
- Cooling: Central air conditioning
- Basement: Unfinished, N/A
- Appliances: Water meter, Garage door opener remote(s)
- Utilities: Sewer, Electricity, Cable
- Security: Smoke Detectors
Exterior & Construction
- Exterior: Brick, Hardboard
- Foundation: Poured Concrete
- Sewer: Sanitary sewer
- Water: Municipal water
Lot & Land
- Frontage: 60 ft (18.3 m)
- Features: Flat site, Sump Pump
- Zoning: R1-4
Community & Neighbourhood
- Community: School Bus
- Building: Fireplace(s)
- Neighbourhood: North S
Room Details (12 rooms)
Listing Information
Listing History
MLS listing activity for 855 WHITE PINE STREET, London North (North S), Ontario, N6G3X9 — dates reflect when changes were recorded in the DDF
🚗 Travel times
Neighborhood Walkability
Mortgage & Cost Calculators
Nearby Homes ?Nearby Homes — Search CriteriaSearch Radius1 kmPrice Range±5%Match BedroomsYesMatch BathroomsYes

863 WHITE PINE STREET, London North (North S)
House$1,194,900
Listing Courtesy of CENTURY 21 FIRST CANADIAN CORP

862 WHITE PINE STREET, London North (North S)
House$1,394,900
Listing Courtesy of CENTURY 21 FIRST CANADIAN CORP

868 WHITE PINE STREET, London North (North S)
House$1,344,900
Listing Courtesy of CENTURY 21 FIRST CANADIAN CORP

851 WHITE PINE STREET, London North (North S)
House$1,294,900
Listing Courtesy of CENTURY 21 FIRST CANADIAN CORP

856 WHITE PINE STREET, London North (North S)
House$1,544,900
Listing Courtesy of CENTURY 21 FIRST CANADIAN CORP

871 WHITE PINE STREET, London North (North S)
House$1,194,900
Listing Courtesy of CENTURY 21 FIRST CANADIAN CORP

2022 BUROAK DRIVE E, London North (North S)
House$1,289,900
Listing Courtesy of NU-VISTA PRIMELINE REALTY INC.

2136 YELLOWBIRCH PLACE, London North (North S)
House$919,900
$6,856/yr taxListing Courtesy of UNION CAPITAL REALTY

956 EAGLETRACE DRIVE, London North (North S)
House$1,199,900
$9,019/yr taxListing Courtesy of KELLER WILLIAMS LIFESTYLES

1969 BUROAK CRESCENT, London North (North S)
House$1,499,900
$11,902/yr taxListing Courtesy of PRIME REAL ESTATE BROKERAGE

2138 WALLINGFORD AVENUE, London North (North R)
House$1,450,000
$12,120/yr taxListing Courtesy of NU-VISTA PINNACLE REALTY BROKERAGE INC

1 - 1061 EAGLETRACE DRIVE, London North (North S)
House$1,082,068
$8,097/yr taxListing Courtesy of THRIVE REALTY GROUP INC.

111 - 2250 BUROAK DRIVE, London North (North S)
Condo - Row / Townhouse$679,900
$5,616/yr taxListing Courtesy of BLUE FOREST REALTY INC.

164 - 1061 EAGLETRACE DRIVE, London North (North S)
House$1,049,900
$8,097/yr taxListing Courtesy of RE/MAX ADVANTAGE REALTY LTD.

919 FOXCREEK ROAD, London North (North S)
House$999,000
$6,591/yr taxListing Courtesy of EXP REALTY
Similar Homes ?Similar Homes — Search CriteriaSearch Radius5 kmPrice Range±5%Match Home TypeYesMatch BedroomsYes

863 WHITE PINE STREET, London North (North S)
House$1,194,900
Listing Courtesy of CENTURY 21 FIRST CANADIAN CORP

36 REDFORD ROAD, London North (North B)
House$1,299,999
$7,946/yr taxListing Courtesy of RINEHART REALTY

20 HOLLYBROOK TRAIL, Kitchener
House$1,245,000
$7,353/yr taxListing Courtesy of CENTURY 21 PROPERTY ZONE REALTY INC.

305 PINEGROVE Road, Oakville
House$1,245,000
$5,684/yr taxListing Courtesy of RE/MAX Escarpment Realty Inc.

366 EAST RUSCOM RIVER ROAD, Lakeshore
House$1,245,000
Listing Courtesy of DEERBROOK REALTY INC.

604 - 858 DUPONT STREET, Toronto (Dovercourt-Wallace Emerson-Junction)
Condo - Apartment$1,245,000
Listing Courtesy of FREEMAN REAL ESTATE LTD.

49 RAYNE AVENUE, Oakville (CP College Park)
House$1,245,000
$4,632/yr taxListing Courtesy of BAY STREET GROUP INC.

7 HOMEWOOD Avenue, Hamilton
House$1,245,000
$7,216/yr taxListing Courtesy of RE/MAX Escarpment Realty Inc.

32 SIMS AVENUE, Ottawa
House$1,245,000
$11,164/yr taxListing Courtesy of ENGEL & VOLKERS OTTAWA

870 LUNAR DRIVE, London North (North S)
House$1,245,000
Listing Courtesy of THRIVE REALTY GROUP INC.

305 PINEGROVE ROAD, Oakville (WO West)
House$1,245,000
$5,684/yr taxListing Courtesy of RE/MAX ESCARPMENT REALTY INC.

1060 WALTON AVENUE, North Perth (Listowel)
House$1,244,000
$1,346/yr taxListing Courtesy of EXP REALTY

1060 WALTON Avenue, Listowel
House$1,244,000
Listing Courtesy of eXp Realty, Brokerage

16 RENAULT CRESCENT, Toronto (Humber Heights)
House$1,244,000
$5,505/yr taxListing Courtesy of ROYAL LEPAGE SIGNATURE REALTY

1036 WALTON AVENUE N, North Perth (Listowel)
House$1,244,000
Listing Courtesy of eXp Realty
Similar Properties ?Active Comparables — Search CriteriaSearch Radius2 kmPrice Range±5%Match Home TypeYesMatch BedroomsYes

11 - 310 CALLAWAY ROAD, London North (North R)
Row / Townhouse$3,300/mo
Listing Courtesy of CENTURY 21 FIRST CANADIAN CORP

1858 ALDERSBROOK ROAD, London North (North F)
House$2,900/mo
Listing Courtesy of BLUE FOREST REALTY INC.

1501 APPLEROCK AVENUE, London North (North S)
House$2,800/mo
Listing Courtesy of STREETCITY REALTY INC.

5 - 1870 ALDERSBROOK GATE, London North (North S)
Row / Townhouse$2,650/mo
Listing Courtesy of SHRINE REALTY BROKERAGE LTD.

54 - 2910 TOKALA TRAIL, London North (North S)
Condo - Row / Townhouse$2,600/mo
Listing Courtesy of CENTURY 21 FIRST CANADIAN CORP

7 - 410 AMBLESIDE DRIVE, London North (North A)
Condo - Row / Townhouse$2,530/mo
Listing Courtesy of ICI SOURCE REAL ASSET SERVICES INC.
Sold Comparables
Access to sold property data requires a registered and verified account with TRREB DDF integration.
Coming SoonRented Comparables
Access to rented property data requires a registered and verified account with TRREB DDF integration.
Coming SoonBook a Viewing
855 WHITE PINE STREET, London North (North S), Ontario, N6G3X9
