82 BASE LINE Road W, London, Ontario, N6J1V2
MLS: 40808798 | Fourplex (Freehold)
$800,000









Property Description
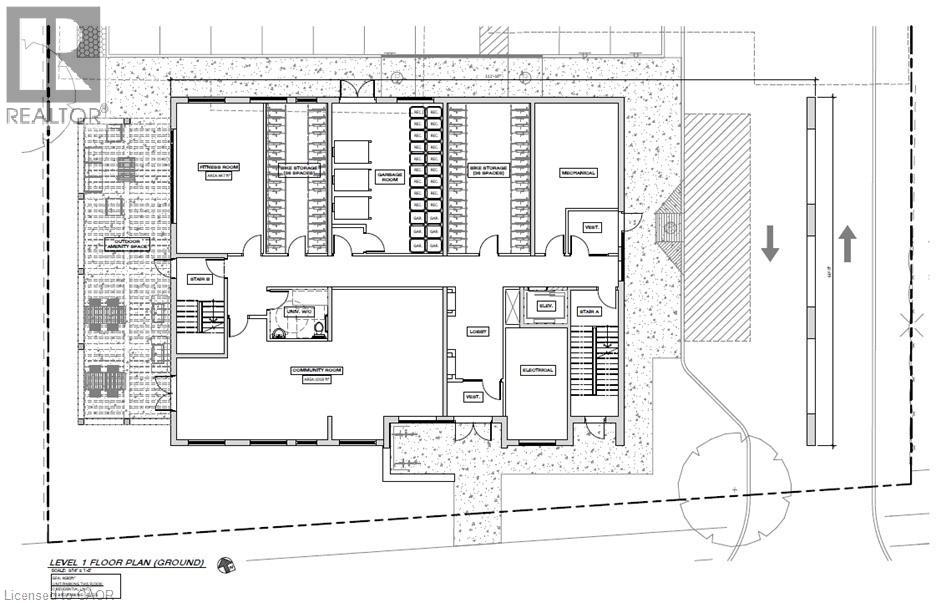
Opportunity knocks. Currently configured as four units converted from a single-family home and zoned R9-7, this property offers exceptional redevelopment and value-add potential. This prime multi-residential development site presents a rare and flexible acquisition opportunity for qualified buyers. The half-acre site is fully rezoned for an 8-storey, 77-unit apartment building, allowing the next owner to proceed directly to the draft Site Plan Approval (SPA) phase, while the existing tenancy provides interim income to help offset holding costs. Ideally located steps from Wortley Village in London, the property benefits from excellent access to transit, shops, restaurants, and green space, making it highly attractive to future renters. Existing zoning permits up to 12 storeys with potential for additional density through underground parking, and there is also the ability to develop 10-plex buildings depending on the buyer’s strategy. This property must be sold together with the neighbouring bungalow at 80 Baseline Road, creating a larger development assembly and enhancing overall redevelopment potential, making this a rare near-turnkey opportunity in a high-demand location with multiple exit strategies. (id:64974)
Quick Facts
- Property Type: Fourplex (Freehold)
- Bedrooms: 0
- Bathrooms: 0
- Living Area: 2,524 sq ft (234.5 m²)
- Above Grade: 2,524 sq ft (234.5 m²)
- Year Built: 1964
- Ownership: Freehold
- Attached: Yes
- Parking: 5 spaces (Attached Garage)
- Frontage: 75 ft (22.9 m)
Costs
- Annual Taxes: $5,549.00
Listing Provided by: RE/MAX TWIN CITY REALTY INC.
Board: Cornerstone Association of REALTORS®
Data provided via CREA DDF®.
Detailed Features
Interior & Systems
- Heating: Forced air, Natural gas
- Cooling: Central air conditioning
- Basement: Unfinished, Partial
Exterior & Construction
- Exterior: Brick
- Fencing: Fence
- Sewer: Municipal sewage system
- Water: Municipal water
Lot & Land
- Frontage: 75 ft (22.9 m)
- Features: Crushed stone driveway
- Zoning: R9-7
Community & Neighbourhood
- Community: Quiet Area, School Bus
- Subdivision: South E
Listing Information
Listing History
Buy/Sell/Terminated/Expired listing history for 82 BASE LINE Road W, London, Ontario, N6J1V2
Location & Neighborhood
🚗 Travel times
Neighborhood Walkability
Mortgage & Cost Calculators
Nearby Homes (Within 2km)
Similar Homes
Similar Properties
No rental comparables found in this area.
Sold Comparables
Access to sold property data requires a registered and verified account with TRREB DDF integration.
Coming SoonRented Comparables
Access to rented property data requires a registered and verified account with TRREB DDF integration.
Coming Soon

























