551 TOPPING LANE, London South (South N), Ontario, N6J3M9
MLS: X12643060 | Multi-Family
$1,099,000







Property Description
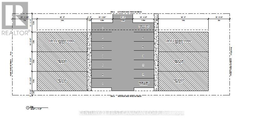
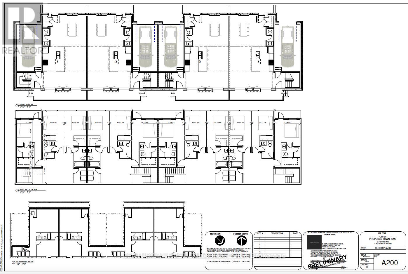
Fantastic Development Opportunity! Large 75x200 Corner Lot nestled in south London. Zoned R4-6/R5-3 DC - Up to 10 residential Units, cluster/stacked townhouse dwellings. Entry permissible off Eaton Park, services on site. Survey and preliminary drawings included. Amazing opportunity to build, rent and hold or sell in this desirable area. Walking distance to shopping, schools and parks - Ideal infill project - Existing house is in excellent condition and move in ready or rent until buyer decides to develop. Financing Available for potential buyers. Call today! (id:64974)
Quick Facts
- Property Type: Multi-Family
- Bedrooms: 3
- Bathrooms: 1
- Living Area: 15,000 sq ft (1,393.5 m²)
- Attached: Yes
- Parking: 6 spaces
- Frontage: 75 ft (22.9 m)
Costs
- Annual Taxes: $3,100.00
Listing Provided by: CENTURY 21 FIRST CANADIAN CORP
Board: London and St. Thomas Association of REALTORS®
Data provided via CREA DDF®.
Detailed Features
Interior & Systems
- Heating: Forced air, Natural gas
- Cooling: Fully air conditioned
Exterior & Construction
- Water: Municipal water
Lot & Land
- Frontage: 75 ft (22.9 m)
- Zoning: R4-6 R5-3DC
Community & Neighbourhood
- Neighbourhood: South N
Listing Information
Listing History
Buy/Sell/Terminated/Expired listing history for 551 TOPPING LANE, London South (South N), Ontario, N6J3M9
Location & Neighborhood
🚗 Travel times
Neighborhood Walkability
Mortgage & Cost Calculators
Nearby Homes (Within 2km)
Similar Homes
Similar Properties
No rental comparables found in this area.
Sold Comparables
Access to sold property data requires a registered and verified account with TRREB DDF integration.
Coming SoonRented Comparables
Access to rented property data requires a registered and verified account with TRREB DDF integration.
Coming Soon






























