80 & 82 BASE LINE Road W, London, Ontario, N6J1V2
MLS: 40808793 | Vacant Land
$1,600,000









Property Description
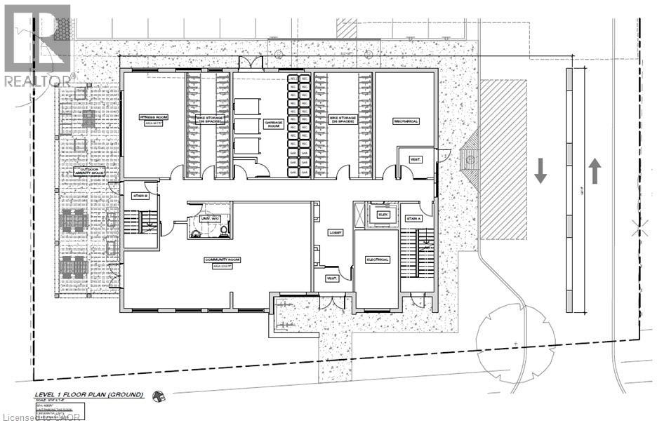
DEVELOPMENT OPPORTUNITY – PRIME MULTI-RESIDENTIAL SITE An exceptional opportunity to acquire a prime multi-residential development site in one of London’s most desirable neighbourhoods. This half-acre property is fully rezoned for an 8-storey, 77-unit apartment building, allowing the next owner to proceed directly to the draft Site Plan Approval (SPA) phase. The site is currently tenanted, generating interim income to help offset holding costs, and is located just steps from Wortley Village with convenient access to transit, shops, restaurants, and green space, making it highly attractive to future renters. Existing zoning permits up to 12 storeys, with potential for additional density through underground parking, presenting a rare near–turnkey development opportunity in a high-demand rental market. (id:64974)
Quick Facts
- Property Type: Vacant Land
- Bedrooms: None
- Bathrooms: None
- Ownership: Freehold
- Lot Size: 0.4920 acres (0.2 ha)
- Frontage: 150 ft (45.7 m)
Costs
- Annual Taxes: $9,690.00
Listing Provided by: RE/MAX TWIN CITY REALTY INC.
Board: Cornerstone Association of REALTORS®
Data provided via CREA DDF®.
Detailed Features
Interior & Systems
- Basement: None
- Utilities: Natural Gas
Exterior & Construction
- Sewer: Municipal sewage system
- Water: Municipal water
Lot & Land
- Lot Size: 0.4920 acres (0.2 ha)
- Frontage: 150 ft (45.7 m)
- Features: Country residential
- Zoning: R9-7
Community & Neighbourhood
- Subdivision: South E
Listing Information
Listing History
Buy/Sell/Terminated/Expired listing history for 80 & 82 BASE LINE Road W, London, Ontario, N6J1V2
Location & Neighborhood
🚗 Travel times
Neighborhood Walkability
Mortgage & Cost Calculators
Nearby Homes (Within 2km)
Similar Homes
Similar Properties
No rental comparables found in this area.
Sold Comparables
Access to sold property data requires a registered and verified account with TRREB DDF integration.
Coming SoonRented Comparables
Access to rented property data requires a registered and verified account with TRREB DDF integration.
Coming Soon


























