422 OLD WONDERLAND ROAD, London South (South N), Ontario, N6K3R2
MLS: X12575278 | Vacant Land
$699,000




































Property Description
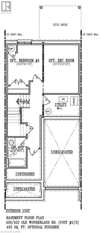
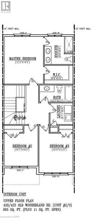
IMMEDIATE POSSESSION AVAILABLE. Experience modern luxury and low-maintenance living in this quality-built vacant land condo tucked in a quiet cul-de-sac in Southwest London. Offering approx. 1585 sq ft, this thoughtfully designed interior unit blends comfort, style, and everyday convenience.The main floor features engineered hardwood, 9 ft ceilings, and an open concept layout ideal for both relaxing and entertaining. The modern vintage kitchen showcases custom cabinetry, quartz countertops, a tile backsplash, and a large island, with all appliances included. A bright dinette with patio doors leads to the back deck, while the spacious family room offers generous natural light.Upstairs, three well-sized bedrooms include a primary suite with a large walk-in closet and a sleek ensuite with a porcelain and ceramic tile shower and quartz vanity. A convenient second-floor laundry room completes this level. Step outside to a 10' x 12' deck with a privacy screen-an inviting retreat for morning coffee or evening downtime. With its thoughtful finishes, open layout, and peaceful setting, this home delivers a lifestyle of ease and elegance just minutes from shopping, parks, schools, and city amenities. A rare chance to move into a brand new home without the wait. (id:64974)
Quick Facts
- Property Type: Vacant Land
- Bedrooms: 3 (3 above)
- Bathrooms: 3 (1 half)
- Ownership: Condo/Strata
- Parking: 2 spaces (Attached Garage, Garage)
Costs
- Condo/HOA Fee: $175.00 / monthly
- Corp: Arnsby Property Management
- Includes: Common Area Maintenance, Insurance, Parking
Listing Provided by: SUTTON GROUP PAWLOWSKI & COMPANY REAL ESTATE BROKERAGE INC.
Board: London and St. Thomas Association of REALTORS®
Data provided via CREA DDF®.
Detailed Features
Interior & Systems
- Heating: Forced air, Natural gas
- Cooling: Central air conditioning
- Basement: Unfinished, Full
- Appliances: Washer, Refrigerator, Dishwasher, Stove, Dryer, Hood Fan, Garage door opener remote(s)
Exterior & Construction
- Exterior: Brick, Vinyl siding
- Foundation: Poured Concrete
Lot & Land
- Features: Cul-de-sac, Wooded area, Sump Pump
- Zoning: R5-7
Community & Neighbourhood
- Community: School Bus, Pets Allowed With Restrictions
- Building: Visitor Parking
- Neighbourhood: South N
Room Details (11 rooms)
Listing Information
Listing History
Buy/Sell/Terminated/Expired listing history for 422 OLD WONDERLAND ROAD, London South (South N), Ontario, N6K3R2
Location & Neighborhood
🚗 Travel times
Neighborhood Walkability
Mortgage & Cost Calculators
Nearby Homes (Within 2km)
Similar Homes
Similar Properties
No rental comparables found in this area.
Sold Comparables
Access to sold property data requires a registered and verified account with TRREB DDF integration.
Coming SoonRented Comparables
Access to rented property data requires a registered and verified account with TRREB DDF integration.
Coming Soon




























