78 CHADWIN DRIVE, Kawartha Lakes (Lindsay), Ontario, K9V0E9
MLS: X12729632 | Townhouse (Freehold)
$699,900




































Property Description
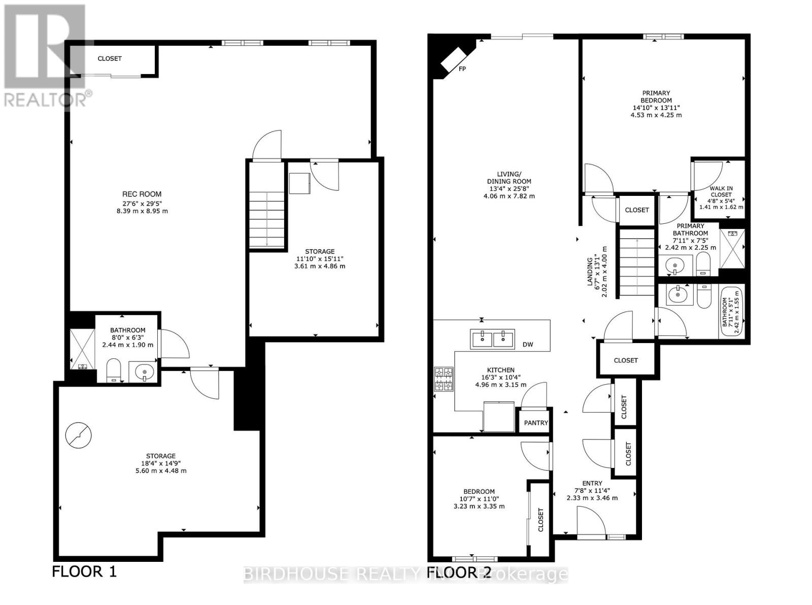
Welcome to this beautifully appointed 1215 sq ft bungalow townhouse, ideally located in a sought-after area of Lindsay close to all amenities and a short walk to Giant Tiger. This inviting home features 2 bedrooms and 3 bathrooms with a bright, open-concept layout. The living room offers a cozy gas fireplace and walkout to the backyard, where a deck with pergola creates a comfortable outdoor space with a BBQ for casual entertaining and relaxed evenings. The gorgeous, updated kitchen features vaulted ceilings and modern finishes. A spacious primary bedroom includes a private ensuite, while the fully finished basement provides a rec room and a 3 pc bath adding additional living space. An attached one-car garage adds convenience and storage. (id:64974)
Quick Facts
- Property Type: Townhouse (Freehold)
- Style: Bungalow
- Bedrooms: 2 (2 above)
- Bathrooms: 3
- Ownership: Freehold
- Attached: Yes
- Fireplaces: 1
- Parking: 2.0 spaces (Attached Garage, Garage)
- Frontage: 29 ft (8.8 m)
Costs
- Annual Taxes: $4,114.00 (2025)
Listing Provided by: BIRDHOUSE REALTY INC.
Board: Central Lakes Association of REALTORS®
Data provided via CREA DDF®.
Detailed Features
Interior & Systems
- Heating: Forced air, Natural gas
- Cooling: Central air conditioning
- Basement: Finished, Full
- Appliances: Washer, Refrigerator, Water meter, Dishwasher, Stove, Dryer, Microwave, Window Coverings
- Utilities: Sewer, Electricity
Exterior & Construction
- Style: Bungalow
- Exterior: Stone, Vinyl siding
- Foundation: Poured Concrete
- Fencing: Fenced yard
- Sewer: Sanitary sewer
- Water: Municipal water
Lot & Land
- Frontage: 29 ft (8.8 m)
- Features: Level
Community & Neighbourhood
- Community: Community Centre
- Building: Fireplace(s)
- Neighbourhood: Lindsay
Room Details (11 rooms)
Listing Information
Listing History
MLS listing activity for 78 CHADWIN DRIVE, Kawartha Lakes (Lindsay), Ontario, K9V0E9 — dates reflect when changes were recorded in the DDF
🚗 Travel times
Neighborhood Walkability
Mortgage & Cost Calculators
Nearby Homes ?Nearby Homes — Search CriteriaSearch Radius1 kmPrice Range±5%Match BedroomsYesMatch BathroomsYes

119 REGENT STREET, Kawartha Lakes (Lindsay)
House$524,900
$3,107/yr taxListing Courtesy of BIRDHOUSE REALTY INC.

108 SANDERSON DRIVE, Kawartha Lakes (Lindsay)
Row / Townhouse$2,650/mo
Listing Courtesy of RIGHT AT HOME REALTY

31 FAIR AVENUE, Kawartha Lakes (Lindsay)
House$624,900
$3,166/yr taxListing Courtesy of REVEL REALTY INC.

215 - 2 HERITAGE WAY, Kawartha Lakes (Lindsay)
Condo - Apartment$409,900
$2,102/yr taxListing Courtesy of ROYAL LEPAGE KAWARTHA LAKES REALTY INC.

312 - 4 HERITAGE WAY, Kawartha Lakes (Lindsay)
Single Family$539,900
$3,151/yr taxListing Courtesy of RE/MAX ALL-STARS REALTY INC.

309 - 4 HERITAGE WAY, Kawartha Lakes (Lindsay)
Condo - Apartment$499,900
$3,166/yr taxListing Courtesy of REVEL REALTY INC.

203 - 4 HERITAGE WAY, Kawartha Lakes (Lindsay)
Condo - Apartment$329,900
$2,188/yr taxListing Courtesy of AFFINITY GROUP PINNACLE REALTY LTD.

312 - 4 HERITAGE WAY, Kawartha Lakes (Lindsay)
Condo - Apartment$524,900
$3,151/yr taxListing Courtesy of RE/MAX ALL-STARS REALTY INC.

168 ELGIN STREET, Kawartha Lakes (Lindsay)
House$570,000
$3,414/yr taxListing Courtesy of ROYAL LEPAGE FRANK REAL ESTATE

109 - 1 HERITAGE WAY, Kawartha Lakes (Lindsay)
Condo - Apartment$359,900
$2,130/yr taxListing Courtesy of BIRDHOUSE REALTY INC.

112 ADELAIDE STREET N, Kawartha Lakes (Lindsay)
House$664,900
$3,472/yr taxListing Courtesy of RE/MAX ALL-STARS REALTY INC.

24 - 5 HERITAGE WAY, Kawartha Lakes (Lindsay)
Condo - Row / Townhouse$499,900
$4,435/yr taxListing Courtesy of ROYAL LEPAGE FRANK REAL ESTATE

178 COLBORNE STREET W, Kawartha Lakes (Lindsay)
House$619,000
$3,414/yr taxListing Courtesy of AFFINITY GROUP PINNACLE REALTY LTD.

76 BOND STREET W, Kawartha Lakes (Lindsay)
House$849,000
$5,850/yr taxListing Courtesy of ROYAL LEPAGE FRANK REAL ESTATE

37 SUSSEX STREET N, Kawartha Lakes (Lindsay)
House$739,900
$3,049/yr taxListing Courtesy of ROYAL LEPAGE FRANK REAL ESTATE
Similar Homes ?Similar Homes — Search CriteriaSearch Radius5 kmPrice Range±5%Match Home TypeYesMatch BedroomsYes

7 PARKSIDE DRIVE, Kawartha Lakes (Lindsay)
House$699,000
$4,902/yr taxListing Courtesy of RE/MAX ALL-STARS REALTY INC.

40 DORMER ROAD, Kawartha Lakes (Lindsay)
House$674,900
$3,851/yr taxListing Courtesy of ROBIN HOOD REALTY LIMITED

147 SPRINGDALE DRIVE, Kawartha Lakes (Lindsay)
House$671,999
$4,683/yr taxListing Courtesy of Bowes & Cocks Limited

1145 MAIN Street, Cambridge
House$699,900
$3,884/yr taxListing Courtesy of RE/MAX TWIN CITY REALTY INC.

668 LILY MAC BOULEVARD, Windsor
Condo - Row / Townhouse$699,900
Listing Courtesy of REMAX CAPITAL DIAMOND REALTY

6229 FOSTER HALL ROAD, Elizabethtown-Kitley
House$699,900
$4,100/yr taxListing Courtesy of ROYAL LEPAGE PROALLIANCE REALTY

215 CAIRNSMORE CIRCLE, Ottawa
Row / Townhouse$699,900
$5,197/yr taxListing Courtesy of EXP REALTY

91 THE PROMENADE, Central Elgin (Port Stanley)
House$699,900
Listing Courtesy of BLUE FOREST REALTY INC.

1501 - 505 TALBOT STREET, London East (East F)
Condo - Apartment$699,900
$6,907/yr taxListing Courtesy of SAKER REALTY CORPORATION

5250 LAKESHORE Road Unit# 1708, Burlington
Condo - Apartment$699,900
$3,140/yr taxListing Courtesy of Coldwell Banker-Burnhill Realty

196 KING Street, St. Catharines
House$699,900
$11,054/yr taxListing Courtesy of RE/MAX Escarpment Realty Inc.

306 SANDPIPER LANE, Georgian Bluffs
Condo - Row / Townhouse$699,900
$5,867/yr taxListing Courtesy of Sutton-Sound Realty

22 - 1121 ARMOUR ROAD, Peterborough (Ashburnham Ward 4)
Condo - Row / Townhouse$699,900
$7,236/yr taxListing Courtesy of CENTURY 21 UNITED REALTY INC.

394 HUMMEL CRESCENT, Fort Erie (Lakeshore)
House$699,900
$5,074/yr taxListing Courtesy of Century 21 Heritage House LTD

1132 DYERS BAY ROAD, Northern Bruce Peninsula
House$699,900
$3,848/yr taxListing Courtesy of Chestnut Park Real Estate
Similar Properties ?Active Comparables — Search CriteriaSearch Radius2 kmPrice Range±5%Match Home TypeYesMatch BedroomsYes

40 DORMER ROAD, Kawartha Lakes (Lindsay)
House$674,900
$3,851/yr taxListing Courtesy of ROBIN HOOD REALTY LIMITED

147 SPRINGDALE DRIVE, Kawartha Lakes (Lindsay)
House$671,999
$4,683/yr taxListing Courtesy of Bowes & Cocks Limited
No rental comparables found in this area.
Sold Comparables
Access to sold property data requires a registered and verified account with TRREB DDF integration.
Coming SoonRented Comparables
Access to rented property data requires a registered and verified account with TRREB DDF integration.
Coming SoonBook a Viewing
78 CHADWIN DRIVE, Kawartha Lakes (Lindsay), Ontario, K9V0E9
