40 DORMER ROAD, Kawartha Lakes (Lindsay), Ontario, K9V6H8
MLS: X12822164 | House (Freehold)
$674,900































Property Description
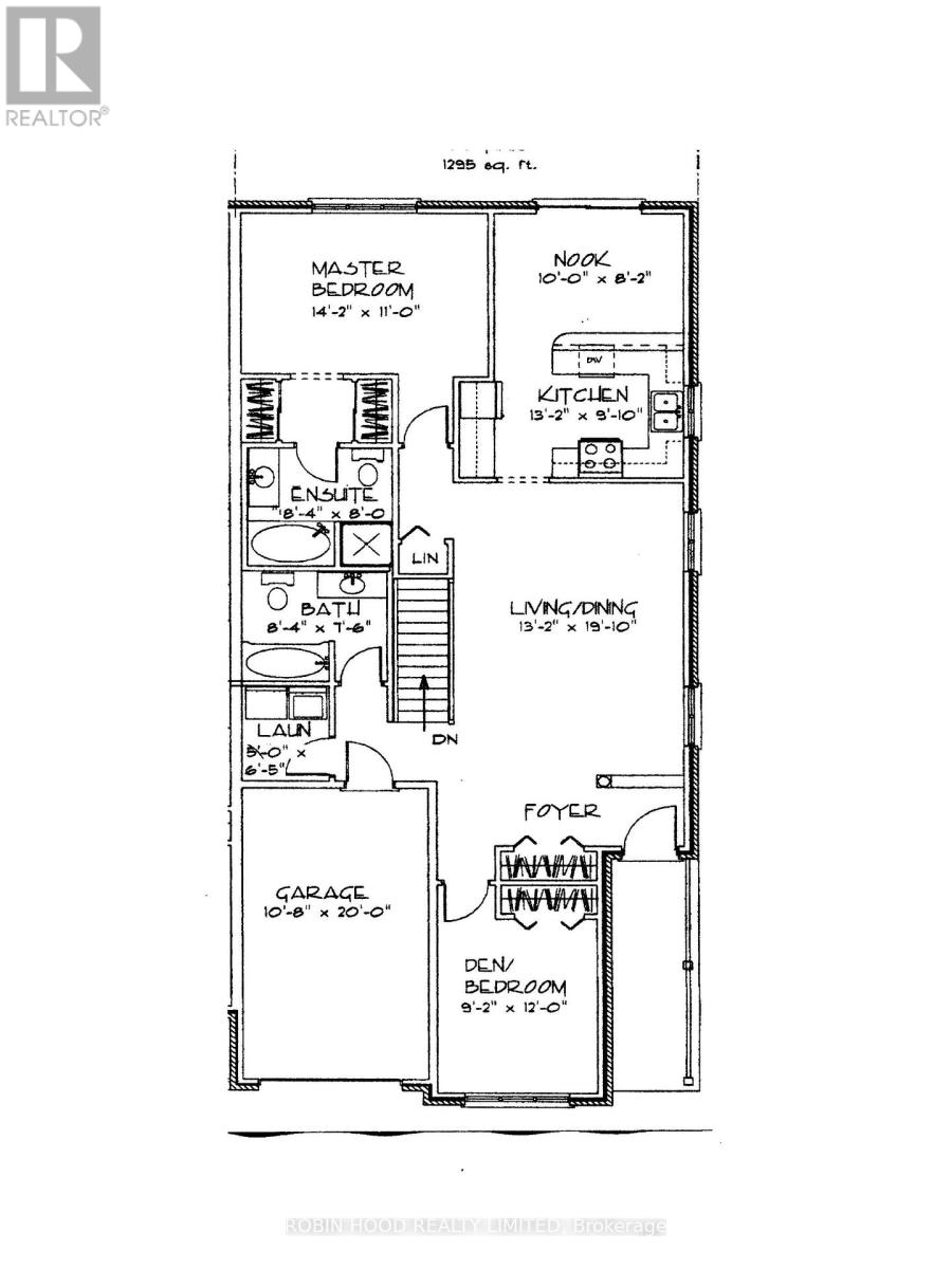
*** Additional Listing Details - Click Brochure Link *** Park-Side Bungalow with Rare 190ft Lot & Development Potential! Whether you are looking for a "forever home" with a mortgage-helper or a private sanctuary for multi-generational living, this property offers rare "triple-unit" potential under Ontario's Bill 23 legislation. The survey confirms a 2.24m to 2.25m side-yard clearance on the park-facing side of the house. This wide, unobstructed path is ideal for creating a private entrance or providing easy machinery access for a detached Garden Suite/Granny Flat. At 190.3 feet deep, the backyard currently features mature trees and plenty of shade, with more than enough room to accommodate a detached cottage while still maintaining a massive private yard. Bordering the park on your side boundary offers increased privacy, open views, and the benefit of having only one immediate residential neighbour. This bright, raised 1295 square foot bungalow with everything available on the main floor also features a spacious, high-ceiling unfinished basement with a 3-piece rough-in, perfectly suited for a legal second suite or a premium guest wing. New Additional Residential Units (ARUs) are currently exempt from municipal development charges, making this a high-value opportunity for a long-term housing solution. Prime location with easy access to local amenities and schools. The asking price reflects premium lot depth, park-side location and verified development access. (id:64974)
Quick Facts
- Property Type: House (Freehold)
- Style: Raised bungalow
- Bedrooms: 2 (2 above)
- Bathrooms: 2
- Ownership: Freehold
- Attached: Yes
- Parking: 3.0 spaces (Attached Garage, Garage)
- Frontage: 36 ft (10.9 m)
Costs
- Annual Taxes: $3,851.00
Listing Provided by: ROBIN HOOD REALTY LIMITED
Board: Toronto Regional Real Estate Board
Data provided via CREA DDF®.
Detailed Features
Interior & Systems
- Heating: Forced air, Natural gas
- Cooling: Central air conditioning
- Basement: Unfinished, N/A
- Appliances: Washer, Refrigerator, Water meter, Barbeque, Dishwasher, Oven, Dryer, Microwave, Blinds, Garage door opener, Garage door opener remote(s)
Exterior & Construction
- Style: Raised bungalow
- Exterior: Concrete, Brick
- Foundation: Concrete
- Sewer: Sanitary sewer
- Water: Municipal water
Lot & Land
- Frontage: 36 ft (10.9 m)
- Features: Sump Pump
Community & Neighbourhood
- Neighbourhood: Lindsay
Listing Information
Listing History
MLS listing activity for 40 DORMER ROAD, Kawartha Lakes (Lindsay), Ontario, K9V6H8 — dates reflect when changes were recorded in the DDF
🚗 Travel times
Neighborhood Walkability
Mortgage & Cost Calculators
Nearby Homes ?Nearby Homes — Search CriteriaSearch Radius1 kmPrice Range±5%Match BedroomsYesMatch BathroomsYes

383 WALLACE DRIVE, Kawartha Lakes (Lindsay)
House$759,900
$5,470/yr taxListing Courtesy of RE/MAX ALL-STARS REALTY INC.

332 MARY STREET W, Kawartha Lakes (Lindsay)
House$599,900
$3,501/yr taxListing Courtesy of REVEL REALTY INC.

329 MARY STREET W, Kawartha Lakes (Lindsay)
House$599,900
$3,851/yr taxListing Courtesy of COLDWELL BANKER ELECTRIC REALTY

75 MCGIBBON BOULEVARD, Kawartha Lakes (Lindsay)
House$784,900
$4,493/yr taxListing Courtesy of CENTURY 21 UNITED REALTY INC.

46 BEALL STREET, Kawartha Lakes (Lindsay)
House$669,700
$3,672/yr taxListing Courtesy of KELLER WILLIAMS ENERGY REAL ESTATE

50 COOK STREET, Kawartha Lakes (Lindsay)
House$687,000
$4,843/yr taxListing Courtesy of RE/MAX ALL-STARS REALTY INC.

4 MCGIBBON BOULEVARD, Kawartha Lakes (Lindsay)
House$3,000/mo
Listing Courtesy of INTERNATIONAL REALTY FIRM, INC.

89 ANGELINE STREET S, Kawartha Lakes (Lindsay)
House$649,900
$4,304/yr taxListing Courtesy of ROYAL LEPAGE KAWARTHA LAKES REALTY INC.

22 SUNSET COURT, Kawartha Lakes (Lindsay)
House$549,900
$3,136/yr taxListing Courtesy of AFFINITY GROUP PINNACLE REALTY LTD.

33 GREEN ARBOUR WAY, Kawartha Lakes (Lindsay)
House$799,900
$5,966/yr taxListing Courtesy of AFFINITY GROUP PINNACLE REALTY LTD.

61 ADELAIDE STREET S, Kawartha Lakes (Lindsay)
House$2,850/mo
Listing Courtesy of RE/MAX COMMUNITY REALTY INC.

32 ADELAIDE STREET S, Kawartha Lakes (Lindsay)
House$399,900
$2,217/yr taxListing Courtesy of RE/MAX ALL-STARS REALTY INC.
Similar Homes ?Similar Homes — Search CriteriaSearch Radius5 kmPrice Range±5%Match Home TypeYesMatch BedroomsYes

147 SPRINGDALE DRIVE, Kawartha Lakes (Lindsay)
House$671,999
$4,683/yr taxListing Courtesy of Bowes & Cocks Limited

7 PARKSIDE DRIVE, Kawartha Lakes (Lindsay)
House$699,000
$4,902/yr taxListing Courtesy of RE/MAX ALL-STARS REALTY INC.

78 CHADWIN DRIVE, Kawartha Lakes (Lindsay)
Row / Townhouse$699,900
$4,114/yr taxListing Courtesy of BIRDHOUSE REALTY INC.

557 LAKE Street, St. Catharines
House$674,900
$4,650/yr taxListing Courtesy of RE/MAX Escarpment Realty Inc.

1156 POTTER DRIVE, Brockville
House$674,900
Listing Courtesy of ROYAL LEPAGE TEAM REALTY

1200 LAKESHORE ROAD, Haldimand
House$674,900
$3,398/yr taxListing Courtesy of RE/MAX ESCARPMENT REALTY INC.

8 Kyle DRIVE, Ridgetown
House$674,900
$5,450/yr taxListing Courtesy of NEST REALTY INC.

1593 ROSE Way Unit# 105, Milton
Condo - Row / Townhouse$674,900
$1/yr taxListing Courtesy of Sutton Group Summit Realty Inc.

LOT 5 - 10 PARKLAND CIRCLE, Quinte West (Murray Ward)
House$674,900
Listing Courtesy of RE/MAX QUINTE JOHN BARRY REALTY LTD.

1200 LAKESHORE Road, Selkirk
House$674,900
$3,398/yr taxListing Courtesy of RE/MAX Escarpment Realty Inc.

4071 FRACCHIONI Drive, Beamsville
Row / Townhouse$674,900
$4,626/yr taxListing Courtesy of Platinum Lion Realty Inc.

254 ESDRAS, Windsor
House$674,900
Listing Courtesy of ROYAL LEPAGE BINDER REAL ESTATE

247 FALL FAIR WAY, Hamilton (Binbrook)
House$674,900
$3,592/yr taxListing Courtesy of RE/MAX ESCARPMENT REALTY INC.

236 BRUCE STREET, South Bruce Peninsula
House$674,900
$3,800/yr taxListing Courtesy of RE/MAX Grey Bruce Realty Inc.

557 LAKE STREET, St. Catharines (Lakeport)
House$674,900
$4,650/yr taxListing Courtesy of RE/MAX ESCARPMENT REALTY INC.
Similar Properties ?Active Comparables — Search CriteriaSearch Radius2 kmPrice Range±5%Match Home TypeYesMatch BedroomsYes
No rental comparables found in this area.
Sold Comparables
Access to sold property data requires a registered and verified account with TRREB DDF integration.
Coming SoonRented Comparables
Access to rented property data requires a registered and verified account with TRREB DDF integration.
Coming SoonBook a Viewing
40 DORMER ROAD, Kawartha Lakes (Lindsay), Ontario, K9V6H8
