752 NINTH Avenue, Hamilton, Ontario, L8T2A6
MLS: 40821078 | House (Freehold)
$599,000









































Property Description
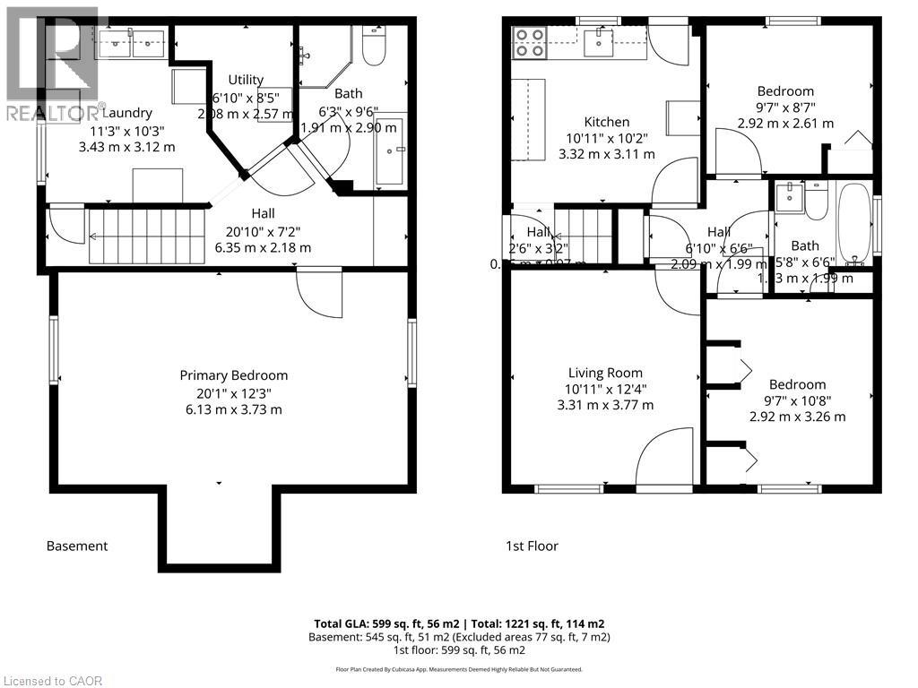
Welcome to this beautifully updated bungalow in a quiet, family-friendly neighbourhood on the Hamilton East Mountain, directly across from a park (rebuilt brand new in 2025 and features a splash pad) and close to all amenities. The main floor features 2 bedrooms, a kitchen, a bright living area, and a modern 4-piece bathroom, all with new flooring throughout .The fully finished basement adds valuable living space with a trendy 3-piece bathroom, a separate side entrance, and flexibility for a third bedroom, rec room, or home office. Complete with a sunroom, this home offers the perfect space to relax and unwind. (id:64974)
Quick Facts
- Property Type: House (Freehold)
- Style: Raised bungalow
- Bedrooms: 3 (2 above, 1 below)
- Bathrooms: 2
- Living Area: 1,221 sq ft (113.4 m²)
- Above Grade: 600 sq ft (55.7 m²)
- Below Grade: 621 sq ft (57.7 m²)
- Year Built: 1952
- Ownership: Freehold
- Attached: No
- Parking: 2.0 spaces
- Frontage: 30 ft (9.1 m)
Costs
- Annual Taxes: $3,702.48
Listing Provided by: RE/MAX Escarpment Realty Inc.
Board: Cornerstone Association of REALTORS®
Data provided via CREA DDF®.
Detailed Features
Interior & Systems
- Heating: Forced air, Natural gas
- Cooling: Central air conditioning
- Basement: Finished, Full
- Appliances: Washer, Refrigerator, Dishwasher, Stove, Dryer
Exterior & Construction
- Style: Raised bungalow
- Exterior: Vinyl siding
- Foundation: Block
- Sewer: Municipal sewage system
- Water: Municipal water
Lot & Land
- Frontage: 30 ft (9.1 m)
- Features: Paved driveway
- Zoning: C
Community & Neighbourhood
- Subdivision: 252 - Hampton Heights
Room Details (9 rooms)
Listing Information
Listing History
MLS listing activity for 752 NINTH Avenue, Hamilton, Ontario, L8T2A6 — dates reflect when changes were recorded in the DDF
Location & Neighborhood
🚗 Travel times
Neighborhood Walkability
Mortgage & Cost Calculators
Nearby Homes ?Nearby Homes — Search CriteriaSearch Radius1 kmPrice Range±30%Match BedroomsNoMatch BathroomsNo

208 EAST 44TH Street, Hamilton
House$647,000
$4,415/yr taxListing Courtesy of Royal LePage State Realty Inc.

111 CASTLEFIELD Drive, Hamilton
House$635,000
$4,075/yr taxListing Courtesy of RE/MAX Real Estate Centre Inc.

300 EAST 43RD Street, Hamilton
House$639,900
$4,229/yr taxListing Courtesy of Royal LePage State Realty Inc.

186 FERNWOOD CRESCENT, Hamilton (Hampton Heights)
House$715,000
$4,446/yr taxListing Courtesy of ROYAL LEPAGE REAL ESTATE SERVICES LTD.

624 UPPER OTTAWA STREET, Hamilton (Hampton Heights)
House$749,900
$4,220/yr taxListing Courtesy of ROYAL LEPAGE STATE REALTY

475 EAST 38TH Street, Hamilton
House$624,900
$3,382/yr taxListing Courtesy of Royal LePage NRC Realty Inc.

19 BURFIELD AVENUE, Hamilton (Huntington)
House$775,000
$5,453/yr taxListing Courtesy of ROYAL LEPAGE STATE REALTY

446 EAST 36TH Street, Hamilton
House$599,900
$4,271/yr taxListing Courtesy of Coldwell Banker Community Professionals

908 MOHAWK Road E Unit# 308, Hamilton
Condo - Apartment$565,000
$4,569/yr taxListing Courtesy of Royal LePage State Realty Inc.

98 CAMEO AVENUE, Hamilton (Macassa)
House$624,900
$4,402/yr taxListing Courtesy of CENTURY 21 HERITAGE GROUP LTD.
Similar Homes ?Similar Homes — Search CriteriaSearch Radius5 kmPrice Range±5%Match Home TypeYesMatch BedroomsYes

53 BELL AVENUE, Hamilton (Bartonville)
House$599,000
$3,869/yr taxListing Courtesy of RE/MAX ESCARPMENT REALTY INC.

223 PARK Street N, Hamilton
Row / Townhouse$599,000
$4,505/yr taxListing Courtesy of Royal LePage State Realty Inc.

688 DUNN AVENUE, Hamilton (Parkview)
House$599,000
$4,654/yr taxListing Courtesy of EXP REALTY

148 GORDON DRUMMOND AVENUE, Hamilton (Stoney Creek Mountain)
House$599,000
$4,601/yr taxListing Courtesy of RE/MAX ESCARPMENT REALTY INC.

570 CANNON STREET E, Hamilton (Gibson)
House$599,000
$2,867/yr taxListing Courtesy of RE/MAX ESCARPMENT REALTY INC.

112 WEXFORD AVENUE N, Hamilton (Crown Point)
House$599,000
$3,616/yr taxListing Courtesy of HARVEY KALLES REAL ESTATE LTD.

3 - 255 MOUNT ALBION ROAD, Hamilton (Red Hill)
Condo - Row / Townhouse$599,000
$4,715/yr taxListing Courtesy of RE/MAX PREMIER THE OP TEAM

56 WEST 1ST Street, Hamilton
House$599,850
$4,566/yr taxListing Courtesy of RE/MAX Escarpment Realty Inc.

302 EAST 27TH Street, Hamilton
House$599,900
$4,057/yr taxListing Courtesy of Royal LePage State Realty Inc.

19 SECORD DRIVE, Hamilton (Corman)
House$599,900
$4,971/yr taxListing Courtesy of SAM MCDADI REAL ESTATE INC.
Property Comparables ?Active Comparables — Search CriteriaSearch Radius2 kmPrice Range±15%Match Home TypeYesMatch BedroomsYes

223 PARK ROW, Hamilton (Delta)
House$599,900
$3,525/yr taxListing Courtesy of RE/MAX ESCARPMENT REALTY INC.

223 PARK Row S, Hamilton
House$599,900
$3,525/yr taxListing Courtesy of RE/MAX Escarpment Realty Inc.

302 EAST 27TH STREET, Hamilton (Eastmount)
House$599,900
$4,057/yr taxListing Courtesy of ROYAL LEPAGE STATE REALTY

446 EAST 36TH STREET, Hamilton (Macassa)
House$599,900
$4,271/yr taxListing Courtesy of COLDWELL BANKER COMMUNITY PROFESSIONALS

507 QUEENSDALE Avenue E, Hamilton
House$599,900
$3,548/yr taxListing Courtesy of Keller Williams Complete Realty

99 PALMER Road, Hamilton
House$599,900
$4,446/yr taxListing Courtesy of RE/MAX Escarpment Frank Realty

72 EAST 32ND Street, Hamilton
House$599,900
$4,259/yr taxListing Courtesy of RE/MAX Escarpment Realty Inc.

72 EAST 32ND STREET, Hamilton (Raleigh)
House$599,900
$4,259/yr taxListing Courtesy of RE/MAX ESCARPMENT REALTY INC.

95 EAST 35TH STREET, Hamilton (Raleigh)
House$589,900
$3,788/yr taxListing Courtesy of RE/MAX ESCARPMENT REALTY INC.

1328 UPPER SHERMAN Avenue Unit# 2, Hamilton
Row / Townhouse$615,000
$4,363/yr taxListing Courtesy of RE/MAX Escarpment Realty Inc.

475 EAST 38TH Street, Hamilton
House$624,900
$3,382/yr taxListing Courtesy of Royal LePage NRC Realty Inc.

98 CAMEO AVENUE, Hamilton (Macassa)
House$624,900
$4,402/yr taxListing Courtesy of CENTURY 21 HERITAGE GROUP LTD.

15 EAST 41ST Street, Hamilton
House$624,900
$4,783/yr taxListing Courtesy of RE/MAX Escarpment Golfi Realty Inc.

95 HUXLEY Avenue S, Hamilton
House$629,000
$4,092/yr taxListing Courtesy of RE/MAX Escarpment Realty Inc.

89 EDGEMONT STREET S, Hamilton (Delta)
House$629,000
$4,761/yr taxListing Courtesy of Royal LePage Real Estate Services Ltd., Brokerage

14 LORRAINE DRIVE, Hamilton (Berrisfield)
House$3,100/mo
Listing Courtesy of HOMELIFE LANDMARK REALTY INC.

9 DIANNE Court, Hamilton
House$3,000/mo
Listing Courtesy of RE/MAX Escarpment Realty Inc.

322 UPPER GAGE Avenue, Hamilton
House$2,900/mo
Listing Courtesy of RE/MAX Escarpment Realty Inc.

2 - 383 REXFORD DRIVE, Hamilton (Randall)
House$2,400/mo
Listing Courtesy of RE/MAX REAL ESTATE CENTRE INC.

89 EDGEMONT STREET S, Hamilton (Delta)
House$629,000
$4,761/yr taxListing Courtesy of Royal LePage Real Estate Services Ltd., Brokerage

918 UPPER OTTAWA Street, Hamilton
House$650,000
$4,270/yr taxListing Courtesy of Coldwell Banker Community Professionals
No leased comparables found. Rented data requires TRREB DDF integration; the map and search will populate automatically once enabled.
Book a Viewing
752 NINTH Avenue, Hamilton, Ontario, L8T2A6















