75 YOUNG Street, Hamilton, Ontario, L8N1V4
MLS: 40786071 | Office
$799,000
































Property Description
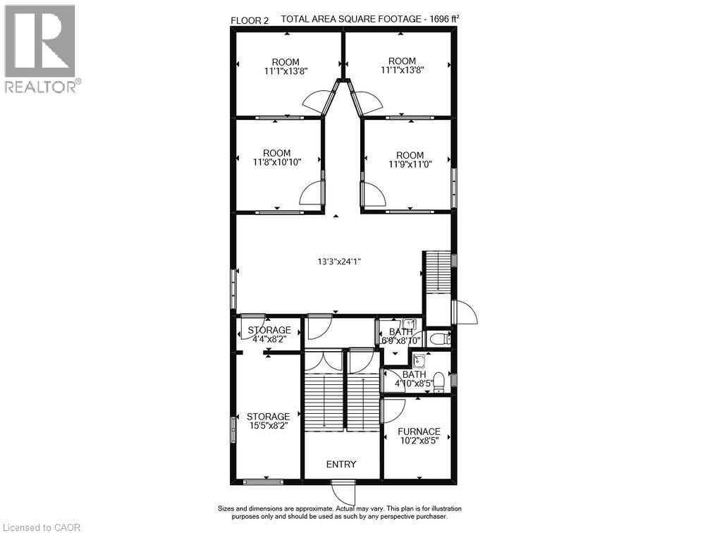
Versatile Space. Prime Location. Endless Potential…A rare opportunity in the heart of Hamilton’s historic CORKTOWN district, 75 Young St delivers over 3,400 sq. ft. of stand-alone mixed-use space - ideal for end-users, investors, or businesses seeking a strategic downtown address. Zoned C5 Mixed Use Medium Density, this ALL-BRICK building supports an exceptional range of permitted uses, including medical clinic, office, restaurant, artist studio, commercial school, professional services, day nursery, catering, beverage-making establishment, performing arts theatre, commercial recreation, and more. The flexibility here is unmatched. The main floor features approximately 1,760 sq. ft. with VAULTED CEILING height, while the finished lower level adds an additional 1,705 sq. ft. with full ceiling height. Each level is equipped with its own furnace, air conditioning, hydro service, reception and office areas, and washroom access, making dual-use or multi-tenant configurations easy to achieve. The most recent recognized use was professional office space, but the layout adapts well to both open-concept and private-use models. Additional property advantages include two gas furnaces, two central air conditioning systems, LED lighting, wired security, and a rental water heater. Heating and cooling are fully separated between levels, supporting independent use. Buyers are encouraged to complete due diligence for their preferred use. Seller is willing to negotiate a VTB mortgage. Steps from St. Joseph’s Hospital, the Hamilton GO Centre, public transit, restaurants, and the growing downtown core, this address combines visibility, convenience, and long-term value in one offering. Your Business Belongs Here. (id:64974)
Quick Facts
- Property Type: Office
- Bedrooms: None
- Bathrooms: None
- Living Area: 3,401 sq ft (316.0 m²)
- Year Built: 1947
- Ownership: Freehold
- Lot Size: 0.0500 acres (0.02 ha)
- Frontage: 37 ft (11.3 m)
Costs
- Annual Taxes: $16,846.14
Listing Provided by: RE/MAX Escarpment Realty Inc.
Board: Cornerstone Association of REALTORS®
Data provided via CREA DDF®.
Detailed Features
Interior & Systems
- Basement: Full
- Utilities: Natural Gas, Electricity
- Security: Alarm system
Exterior & Construction
- Exterior: Wood, Brick
- Construction: Wood frame
- Sewer: Municipal sewage system
- Water: Municipal water
Lot & Land
- Lot Size: 0.0500 acres (0.02 ha)
- Frontage: 37 ft (11.3 m)
- Features: Southern exposure
- Zoning: C5
Community & Neighbourhood
- Community: High Traffic Area
- Subdivision: 142 - Corktown
Listing Information
Listing History
Buy/Sell/Terminated/Expired listing history for 75 YOUNG Street, Hamilton, Ontario, L8N1V4
Location & Neighborhood
🚗 Travel times
Neighborhood Walkability
Mortgage & Cost Calculators
Nearby Homes (Within 2km)
Similar Homes
Similar Properties
No rental comparables found in this area.
Sold Comparables
Access to sold property data requires a registered and verified account with TRREB DDF integration.
Coming SoonRented Comparables
Access to rented property data requires a registered and verified account with TRREB DDF integration.
Coming Soon
































