13360 LOYALIST PARKWAY, Prince Edward County (Hallowell Ward), Ontario, K0K2T0
MLS: X12662730 | Offices
$799,000









































Property Description
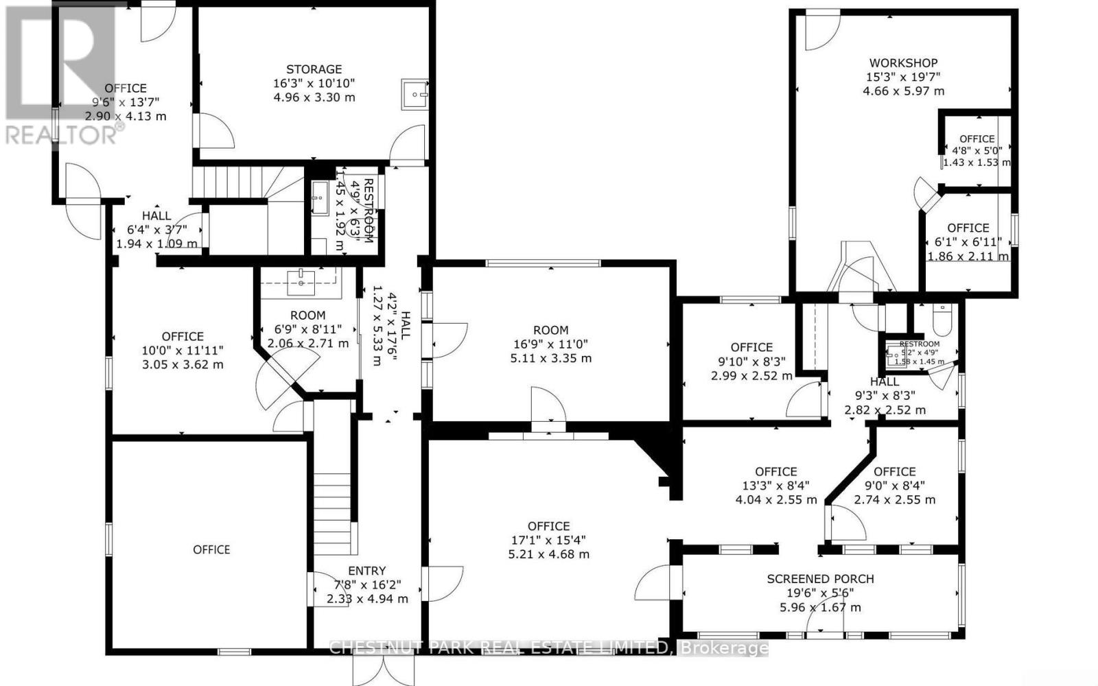
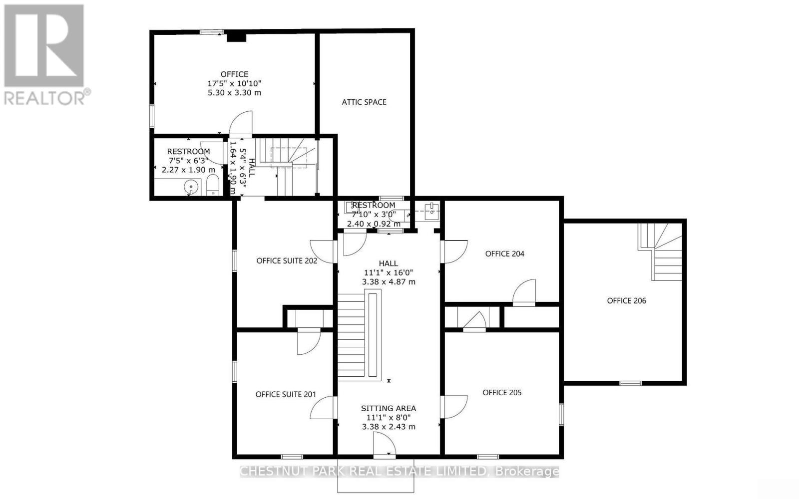
PRINCE EDWARD COUNTY - PRIME COMMERCIAL - RARE OFFERING ON THE OUTSKIRTS OF PICTON! This unique property combines character, functionality, and incredible potential, making it ideal for those seeking to tap into the future. With its classic architecture and original details, this quintessential property exudes timelessness creating a welcoming and professional atmosphere for any business venture. Its convenient location in an up-and-coming commercial corridor provides easy access, high visibility and outstanding curb appeal. With close to one acre of land, there is ample space for parking or expansion. Whether you're an entrepreneur looking to establish your dream business, an investor seeking income potential, or someone wanting a combination of both, this property has you covered. Current configuration of building includes 17 rooms, 4-2 pc washrooms, 3 sets of stairs, and 5 entrances. With 4000 sq ft of interior space and a layout conducive to customization, the possibilities are endless. This iconic building is currently operating as a thriving business centre with nine tenants, but there is tons of untapped potential here. Don't miss your chance to own a property that offers such flexibility & potential! Book an appointment today to come and explore the possibilities! (id:64974)
Quick Facts
- Property Type: Offices
- Bedrooms: None
- Bathrooms: 4
- Living Area: 4,000 sq ft (371.6 m²)
- Parking: 20 spaces
- Frontage: 175 ft (53.3 m)
Costs
- Annual Taxes: $8,696.66
Listing Provided by: CHESTNUT PARK REAL ESTATE LIMITED
Board: Central Lakes Association of REALTORS®
Data provided via CREA DDF®.
Detailed Features
Interior & Systems
- Heating: Forced air, Natural gas
- Cooling: Fully air conditioned
Exterior & Construction
- Water: Municipal water
Lot & Land
- Frontage: 175 ft (53.3 m)
- Zoning: Highway Commercial (CH-29)
Community & Neighbourhood
- Neighbourhood: Hallowell Ward
Listing Information
Listing History
Buy/Sell/Terminated/Expired listing history for 13360 LOYALIST PARKWAY, Prince Edward County (Hallowell Ward), Ontario, K0K2T0
Location & Neighborhood
🚗 Travel times
Neighborhood Walkability
Mortgage & Cost Calculators
Nearby Homes (Within 2km)
Similar Homes
Similar Properties
No rental comparables found in this area.
Sold Comparables
Access to sold property data requires a registered and verified account with TRREB DDF integration.
Coming SoonRented Comparables
Access to rented property data requires a registered and verified account with TRREB DDF integration.
Coming Soon



























