69 BOND STREET W, Kawartha Lakes (Lindsay), Ontario, K9V3R3SOLD
MLS: X12977996 | House (Freehold)
$1,359,900



















































Property Description
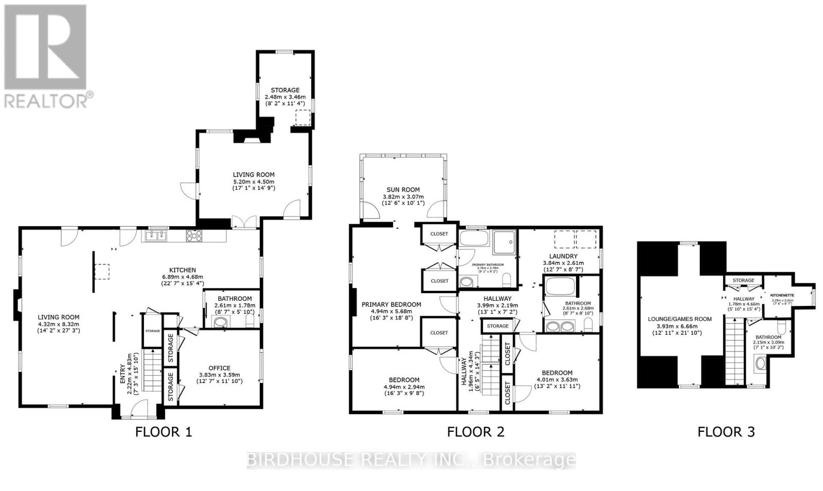
STUNNING century home on Bond Street in Lindsay! A true master piece of OVER 3200+ SqFt and extensively renovated in 2017. The main floor features soaring ceilings, a formal office, separate dining area with gas fireplace & second living room. This central hall floor plan invites you into the stunning custom kitchen with quartz countertops, beverage fridge & gas stove overlooking the picturesque backyard. The second floor offers ultimate relaxation in the master retreat with its own sunroom and 5pc ensuite with soaker tub. Convenient second floor laundry and second bath are paired with two bedrooms. Bonus third floor lounge/games room (possible 4th bedroom) has its own 2pc bath and kitchenette. The basement provides plenty of storage, a workshop area & walk-out to the backyard. The backyard shines with extensive landscaping, armour stone, stamped concrete & in-ground heated swimming pool. Bonus natural gas BBQ line. The spacious driveway can fit an RV trailer. Updates include: Furnace (2022), AC (2022), Shingles (2010), Hot Water Tank (2016), Inground Pool (2023) & Hot Tub (2023). (id:64974)
Quick Facts
- Property Type: House (Freehold)
- Bedrooms: 3 (3 above)
- Bathrooms: 4 (2 half)
- Ownership: Freehold
- Attached: No
- Fireplaces: 1
- Parking: 4.0 spaces (No Garage, RV)
- Frontage: 87 ft (26.6 m)
Costs
- Annual Taxes: $6,769.18
Listing Provided by: BIRDHOUSE REALTY INC.
Board: Central Lakes Association of REALTORS®
Data provided via CREA DDF®.
Detailed Features
Interior & Systems
- Heating: Forced air, Natural gas
- Cooling: Central air conditioning
- Basement: Unfinished, Full
- Appliances: Washer, Refrigerator, Hot Tub, Gas stove(s), Dishwasher, Dryer, Microwave, Water Heater
- Utilities: Sewer, Electricity, Cable
Exterior & Construction
- Exterior: Brick
- Foundation: Stone
- Fencing: Fenced yard
- Sewer: Sanitary sewer
- Water: Municipal water
Lot & Land
- Frontage: 87 ft (26.6 m)
- Pool: Inground pool
- Zoning: R2
Community & Neighbourhood
- Community: Community Centre
- Building: Fireplace(s)
- Neighbourhood: Lindsay
Room Details (16 rooms)
Listing Information
Listing History
MLS listing activity for 69 BOND STREET W, Kawartha Lakes (Lindsay), Ontario, K9V3R3 — dates reflect when changes were recorded in the DDF
🚗 Travel times
Neighborhood Walkability
Mortgage & Cost Calculators
Nearby Homes ?Nearby Homes — Search CriteriaSearch Radius1 kmPrice Range±5%Match BedroomsYesMatch BathroomsYes

76 BOND STREET W, Kawartha Lakes (Lindsay)
House$849,000
$5,850/yr taxListing Courtesy of ROYAL LEPAGE FRANK REAL ESTATE

37 SUSSEX STREET N, Kawartha Lakes (Lindsay)
House$739,900
$3,049/yr taxListing Courtesy of ROYAL LEPAGE FRANK REAL ESTATE

69 PEEL STREET, Kawartha Lakes (Lindsay)
House$589,900
$3,341/yr taxListing Courtesy of ROYAL LEPAGE FRANK REAL ESTATE

22 FRANCIS STREET, Kawartha Lakes (Lindsay)
House$750,000
$6,519/yr taxListing Courtesy of RE/MAX JAZZ INC.

31 FAIR AVENUE, Kawartha Lakes (Lindsay)
House$624,900
$3,166/yr taxListing Courtesy of REVEL REALTY INC.

84 CAMBRIDGE STREET N, Kawartha Lakes (Lindsay)
House$569,000
$4,114/yr taxListing Courtesy of Century 21 Granite Realty Group Inc.

44 REGENT STREET, Kawartha Lakes (Lindsay)
House$689,000
$3,866/yr taxListing Courtesy of FARIS TEAM REAL ESTATE BROKERAGE

A - 56 ELGIN STREET, Kawartha Lakes (Lindsay)
House$2,250/mo
Listing Courtesy of RE/MAX ALL-STARS REALTY INC.

19 CAMBRIDGE STREET S, Kawartha Lakes (Lindsay)
House$1,700/mo
Listing Courtesy of BIRDHOUSE REALTY INC.

17 MARGARET AVENUE, Kawartha Lakes (Lindsay)
House$489,900
$2,578/yr taxListing Courtesy of RE/MAX HALLMARK EASTERN REALTY

119 REGENT STREET, Kawartha Lakes (Lindsay)
House$524,900
$3,107/yr taxListing Courtesy of BIRDHOUSE REALTY INC.

78 CHADWIN DRIVE, Kawartha Lakes (Lindsay)
Row / Townhouse$699,900
$4,114/yr taxListing Courtesy of BIRDHOUSE REALTY INC.

108 SANDERSON DRIVE, Kawartha Lakes (Lindsay)
Row / Townhouse$2,650/mo
Listing Courtesy of RIGHT AT HOME REALTY

103 - 58 GLENELG STREET W, Kawartha Lakes (Lindsay)
Condo - Apartment$499,900
$3,851/yr taxListing Courtesy of ROYAL LEPAGE KAWARTHA LAKES REALTY INC.

54 GLENELG STREET W, Kawartha Lakes (Lindsay)
House$399,500
$2,495/yr taxListing Courtesy of ROYAL LEPAGE KAWARTHA LAKES REALTY INC.
Similar Homes ?Similar Homes — Search CriteriaSearch Radius5 kmPrice Range±5%Match Home TypeYesMatch BedroomsYes

461 LIMERICK STREET, Innisfil
House$1,359,900
$6,519/yr taxListing Courtesy of RE/MAX HALLMARK CHAY REALTY

301 SOMME Street, Woodstock
House$1,359,900
$9,633/yr taxListing Courtesy of Gale Group Realty Brokerage

526 EDISON AVENUE, Ottawa
House$1,359,900
$8,771/yr taxListing Courtesy of ROYAL LEPAGE TEAM REALTY

23 KELLOGG Avenue, Hamilton
House$1,359,900
$7,481/yr taxListing Courtesy of Royal LePage State Realty Inc.

50 BROADWAY Avenue, Hamilton
House$1,359,900
$7,000/yr taxListing Courtesy of RE/MAX Escarpment Frank Realty

301 SOMME STREET, Woodstock (Woodstock - North)
House$1,359,900
$9,633/yr taxListing Courtesy of Gale Group Realty Brokerage Ltd

314 MORRISH RD ROAD S, Toronto (Highland Creek)
House$1,359,999
$5,497/yr taxListing Courtesy of RIGHT AT HOME REALTY

18 TRILLIUM TRAIL, Oro-Medonte
House$1,360,000
$6,850/yr taxListing Courtesy of RE/MAX HALLMARK PEGGY HILL GROUP REALTY

5895 LATIMER ROAD, Georgina (Sutton & Jackson's Point)
House$1,360,000
$6,922/yr taxListing Courtesy of FINE HOMES REALESTATE INC.

169 WILLOWBROOK ROAD, Markham (Aileen-Willowbrook)
House$1,360,000
$6,715/yr taxListing Courtesy of CENTURY 21 PERCY FULTON LTD.

19 ALBANI STREET, Toronto (Mimico)
House$1,359,000
$4,811/yr taxListing Courtesy of ATV REALTY INC

33 BROCKDALE STREET, Richmond Hill (Oak Ridges)
House$1,359,000
$6,515/yr taxListing Courtesy of AVION REALTY INC.

52 ROYAL CRESCENT, Southwold (Talbotville)
House$1,359,000
Listing Courtesy of THE REALTY FIRM INC.

161 ANGELENE STREET, Mississauga (Mineola)
House$1,359,000
$7,381/yr taxListing Courtesy of HOMELIFE/MIRACLE REALTY LTD

144 CANONGATE TRAIL, Toronto (Steeles)
House$1,359,000
$7,300/yr taxListing Courtesy of HOMELIFE LANDMARK REALTY INC.
Similar Properties ?Active Comparables — Search CriteriaSearch Radius2 kmPrice Range±5%Match Home TypeYesMatch BedroomsYes
No active comparables found in this area.
No rental comparables found in this area.
Sold Comparables
Access to sold property data requires a registered and verified account with TRREB DDF integration.
Coming SoonRented Comparables
Access to rented property data requires a registered and verified account with TRREB DDF integration.
Coming SoonBook a Viewing
69 BOND STREET W, Kawartha Lakes (Lindsay), Ontario, K9V3R3
