68 Lorne Street, Sudbury, Ontario, P3C4N8
MLS: 2125982 | Commercial Mix (Freehold)
$12.80 / square feet








































Property Description
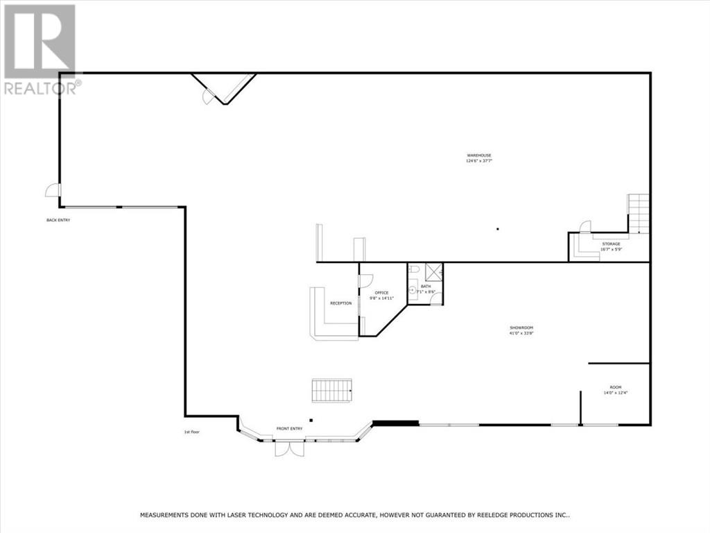
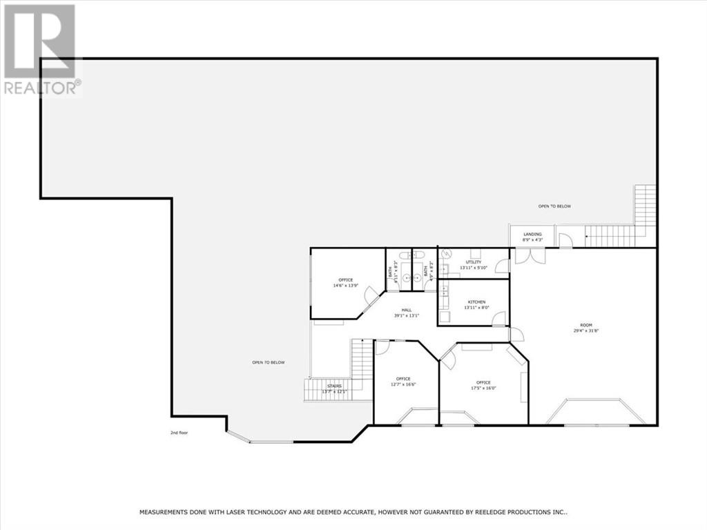
11.040 square feet of premium industrial and commercial space available! Former home of House of Broadloom lends itself to numerous uses. With M1-1 (10) zoning, this property has multiple applications for warehousing, cash and carry or pure retail space. Main floor features 20 foot ceilings for 70% of the main floor with a nicely appointed showroom making up the rest. The upper level mezzanine has several offices, ""over the top"" washroom, lunchroom and large workshop area. Centrally located on Lorne Street, there is easy access to Lorne Street and major traffic routes. Ample parking for 15-20 vehicles. Dock level loading with a 12' overhead door and an 8' overhead door to accommodate drive-in. Lease is on a net-net basis of $12.80 per foot with CAM estimated at $8.00 (2026). With warehouse space at a premium, this is a great opportunity. (id:64974)
Quick Facts
- Property Type: Commercial Mix (Freehold)
- Bedrooms: None
- Bathrooms: None
- Ownership: Freehold
Listing Provided by: RE/MAX CROWN REALTY (1989) INC., BROKERAGE (SUDBURY)
Board: Sudbury Real Estate Board
Data provided via CREA DDF®.
Detailed Features
Interior & Systems
- Heating: Forced air
- Cooling: Central air conditioning
- Flooring: Concrete, Vinyl
- Security: Security system, Smoke Detectors, Fire alarm system, No Sprinkler System
Exterior & Construction
- Exterior: Brick, Rock imitation, Concrete Block
- Roof: Tar & gravel, Unknown
- Foundation: Concrete Slab, Poured Concrete
- Fencing: Not fenced
- Sewer: Municipal sewage system
- Water: Municipal water
- Road Surface: Paved road
Lot & Land
- Zoning: M1-1 (10)
Community & Neighbourhood
- Building: Mezzanine, Storefront, Air Conditioning
Listing Information
Listing History
Buy/Sell/Terminated/Expired listing history for 68 Lorne Street, Sudbury, Ontario, P3C4N8
Location & Neighborhood
🚗 Travel times
Neighborhood Walkability
Mortgage & Cost Calculators
Similar Properties
No active comparables found in this area.
Sold Comparables
Access to sold property data requires a registered and verified account with TRREB DDF integration.
Coming SoonRented Comparables
Access to rented property data requires a registered and verified account with TRREB DDF integration.
Coming Soon














