885 Regent Street Unit# 5B, Sudbury, Ontario, P3E5M4
MLS: 2125963 | Office
$5,200.00 / monthly





















































Property Description
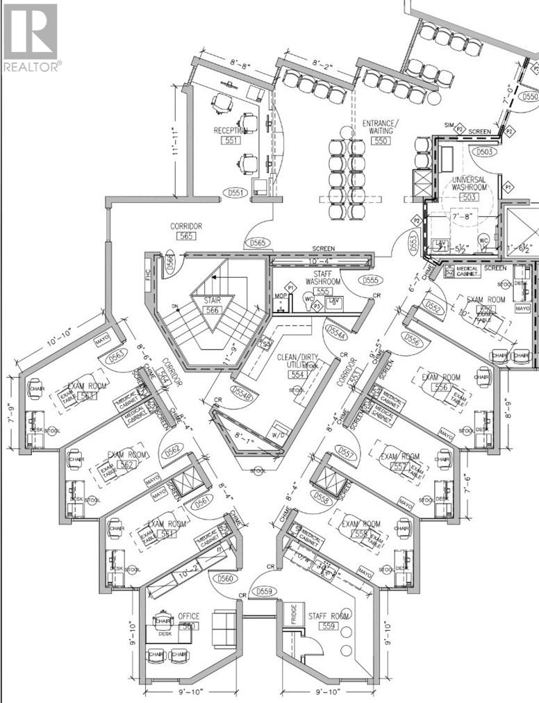
Exceptional opportunity for this impeccably finished South End medical office space of 2,400 square feet available for sublease. Located in the heart of South End, this office offers convenient access to public transit and nearby amenities, making it ideal for both staff and patients. This move-in ready unit features a welcoming reception and waiting area, eight offices or exam rooms, a kitchen, and common areas—offering a functional layout suited to a variety of medical or wellness practices or professional office uses. The sublease expires on August 15, 2029, but opportunities may exist to negotiate longer terms directly with the Landlord. Starting monthly gross rent is $5,200.00 plus HST with target occupancy set for mid to late summer, 2026. (id:64974)
Quick Facts
- Property Type: Office
- Bedrooms: None
- Bathrooms: None
- Ownership: Leasehold
Listing Provided by: ROYAL LEPAGE NORTH HERITAGE REALTY, BROKERAGE
Board: Sudbury Real Estate Board
Data provided via CREA DDF®.
Detailed Features
Interior & Systems
- Cooling: Central air conditioning
Exterior & Construction
- Sewer: Municipal sewage system
- Water: Municipal water
Lot & Land
- Zoning: C4(13)
Listing Information
Listing History
Buy/Sell/Terminated/Expired listing history for 885 Regent Street Unit# 5B, Sudbury, Ontario, P3E5M4
Location & Neighborhood
🚗 Travel times
Neighborhood Walkability
Mortgage & Cost Calculators
Nearby Homes (Within 2km)
Similar Homes
Similar Properties
Sold Comparables
Access to sold property data requires a registered and verified account with TRREB DDF integration.
Coming SoonRented Comparables
Access to rented property data requires a registered and verified account with TRREB DDF integration.
Coming Soon
















