60 HILTZ AVENUE, Toronto (South Riverdale), Ontario, M4L2N5
MLS: E12965658 | House (Freehold)
$2,799,000





















































Property Description
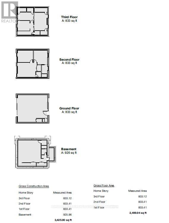
Featured by BlogTO as "Like Living in the Future." 60 Hiltz is a custom-built, all-electric home on a wide, quiet, tree-lined street steps from Greenwood Park and Queen East. 3+1 bed, 5 bath, 7 Juliet balconies, covered carport with EV rough-in, over 3,000 sf. Step inside to ~10' ceilings and a bright open kitchen-dining-family room anchored by a honed marble fireplace. Scavolini kitchen with 8-foot quartz island, Gaggenau fridge and induction cooktop, Monogram wall oven, Bosch dishwasher, Faber hood. Up to the second floor: two large bedrooms with two full baths and Scavolini closets, dedicated office, and laundry. The third-floor primary suite opens to CN Tower views, 5-pc ensuite with stone soaking tub, and gorgeous dressing area with custom millwork. Below grade: open-concept 900+ sf level with full bath and 8-foot ceilings - guest suite, media room, gym, or play space. Built for health and comfort: all-electric means zero combustion, no indoor air pollution. HEPA-filtered fresh air 24/7 via backed-up ERV. Passive House-certified triple-pane floor-to-ceiling windows flood every room with light and retain 3X more heat than standard glass. Heated floors throughout. Motorized Hunter Douglas blinds. Built to save: High Performance building envelope and cold-climate heat pump cuts heating and cooling costs vs. code-built homes. German heat pump hot water tank uses 3X less energy than conventional. 16 solar panels power the home and sell surplus to the grid. Rare islanding keeps solar running during outages. 20 kWh battery backs up sump pump, fridge, ERV, WiFi, lighting, HWT, and plug loads. Carport ready for 10 more panels. Built to protect: Bone Structure steel frame, non-combustible brick and metal exterior, laminated security glazing, 7-point locking windows, steel security door. Climate-resilient and break-in resistant. You cannot replicate this build at this price. Riverdale CI and Duke of Connaught catchments. 10 min by bike to the Beaches. (id:64974)
Quick Facts
- Property Type: House (Freehold)
- Bedrooms: 4 (3 above, 1 below)
- Bathrooms: 5 (1 half)
- Ownership: Freehold
- Attached: No
- Fireplaces: 1
- Parking: 1.0 space (Garage, Carport)
- Frontage: 36 ft (11 m)
Costs
- Annual Taxes: $10,293.28
Listing Provided by: HARVEY KALLES REAL ESTATE LTD.
Board: Toronto Regional Real Estate Board
Data provided via CREA DDF®.
Detailed Features
Interior & Systems
- Heating: Heat Pump, Electric
- Cooling: Central air conditioning, Air exchanger, Ventilation system
- Basement: Finished, Full
- Appliances: Washer, Refrigerator, Water meter, Dishwasher, Range, Oven, Dryer, Oven - Built-In, Hood Fan, Blinds, Water Heater
- Flooring: Tile, Hardwood
- Utilities: Sewer, Electricity, Cable
- Security: Smoke Detectors
- Fireplace Features: Insert
Exterior & Construction
- Exterior: Steel, Brick
- Foundation: Concrete
- Fencing: Fenced yard
- Sewer: Sanitary sewer
- Water: Municipal water
Lot & Land
- Frontage: 36 ft (11 m)
- Features: Conservation/green belt, Carpet Free, Sump Pump, Solar Equipment
- View: City view
Community & Neighbourhood
- Building: Canopy, Separate Electricity Meters, Separate Heating Controls
- Neighbourhood: South Riverdale
Room Details (16 rooms)
Listing Information
Listing History
MLS listing activity for 60 HILTZ AVENUE, Toronto (South Riverdale), Ontario, M4L2N5 — dates reflect when changes were recorded in the DDF
🚗 Travel times
Neighborhood Walkability
Mortgage & Cost Calculators
Nearby Homes ?Nearby Homes — Search CriteriaSearch Radius1 kmPrice Range±5%Match BedroomsYesMatch BathroomsYes

45 HILTZ AVENUE, Toronto (South Riverdale)
House$1,189,000
$5,362/yr taxListing Courtesy of RE/MAX HALLMARK REALTY LTD.

102 GREENWOOD AVENUE, Toronto (Greenwood-Coxwell)
House$1,450,000
$6,168/yr taxListing Courtesy of FIRST CLASS REALTY INC.

1 - 1346 QUEEN STREET E, Toronto (South Riverdale)
Residential Commercial Mix$2,800/mo
Listing Courtesy of RE/MAX URBAN TORONTO TEAM REALTY INC.

TH01 - 1331 QUEEN STREET E, Toronto (South Riverdale)
Condo - Row / Townhouse$1,499,000
$6,968/yr taxListing Courtesy of SAGE REAL ESTATE LIMITED

709 - 1331 QUEEN STREET E, Toronto (Greenwood-Coxwell)
Condo - Apartment$899,000
$4,766/yr taxListing Courtesy of RIGHT AT HOME REALTY

2 - 1378 QUEEN STREET E, Toronto (Greenwood-Coxwell)
Other$3,000/mo
Listing Courtesy of REAL ESTATE HOMEWARD

75 LAING STREET, Toronto (Greenwood-Coxwell)
Row / Townhouse$1,324,900
$3,288/yr taxListing Courtesy of NEW ERA REAL ESTATE

12 HASTINGS AVENUE, Toronto (South Riverdale)
House$1,099,000
$3,597/yr taxListing Courtesy of KELLER WILLIAMS ADVANTAGE REALTY

206 - 1285 QUEEN STREET E, Toronto (Greenwood-Coxwell)
Condo - Apartment$759,999
$4,506/yr taxListing Courtesy of ROYAL LEPAGE PROALLIANCE REALTY

211 - 1285 QUEEN STREET E, Toronto (Greenwood-Coxwell)
Condo - Apartment$699,000
$4,257/yr taxListing Courtesy of EXP REALTY

898 EASTERN AVENUE, Toronto (Greenwood-Coxwell)
House$609,850
$2,762/yr taxListing Courtesy of RE/MAX ICON REALTY

928 EASTERN AVENUE, Toronto (Greenwood-Coxwell)
Row / Townhouse$3,160/mo
Listing Courtesy of UNION CAPITAL REALTY

49 LESLIE STREET, Toronto (Greenwood-Coxwell)
Row / Townhouse$5,900/mo
Listing Courtesy of ON THE BLOCK

BASEMENT - 82 CURZON STREET, Toronto (South Riverdale)
House$1,550/mo
Listing Courtesy of RE/MAX CROSSROADS REALTY INC.

129 WOODFIELD ROAD, Toronto (Greenwood-Coxwell)
House$1,299,900
$6,297/yr taxListing Courtesy of RE/MAX HALLMARK REALTY LTD.
Similar Homes ?Similar Homes — Search CriteriaSearch Radius5 kmPrice Range±5%Match Home TypeYesMatch BedroomsYes

207 SUTHERLAND DRIVE, Toronto (Leaside)
House$2,749,500
$11,688/yr taxListing Courtesy of HARVEY KALLES REAL ESTATE LTD.

55 NORTHERN DANCER BOULEVARD, Toronto (The Beaches)
House$2,690,000
$11,070/yr taxListing Courtesy of PROPERTY.CA INC.

20 FAIRVIEW BOULEVARD, Toronto (North Riverdale)
House$2,933,000
$12,872/yr taxListing Courtesy of SKYBOUND REALTY

1468 FERNCREST ROAD, Oakville (JC Joshua Creek)
House$2,799,000
$12,344/yr taxListing Courtesy of Royal LePage Real Estate Services Ltd., Brokerage

2129 HIGHVIEW Drive, Burlington
House$2,799,000
$9,288/yr taxListing Courtesy of RE/MAX Escarpment Realty Inc.

221 CRAWFORD STREET, Toronto (Trinity-Bellwoods)
Single Family$2,799,000
$10,723/yr taxListing Courtesy of SAGE REAL ESTATE LIMITED

40 LIMERICK STREET, Richmond Hill (Oak Ridges Lake Wilcox)
House$2,799,000
$10,657/yr taxListing Courtesy of REMAX YOUR COMMUNITY REALTY

16 BARKER AVENUE, Toronto (Thistletown-Beaumonde Heights)
House$2,799,000
$3,846/yr taxListing Courtesy of GRANGE HALL REALTY INC.

546 CONSERVATION DRIVE, Brampton (Snelgrove)
House$2,799,000
$20,278/yr taxListing Courtesy of RE/MAX REALTY SERVICES INC.

130 ANDREWS DRIVE, Bradford West Gwillimbury (Bond Head)
House$2,799,000
$9,948/yr taxListing Courtesy of INTERNATIONAL REALTY FIRM, INC.

68 MOUNTAIN BROW Boulevard, Hamilton
House$2,799,000
$18,887/yr taxListing Courtesy of Realty Network

734 SHAW STREET, Toronto (Palmerston-Little Italy)
House$2,799,000
$10,912/yr taxListing Courtesy of RE/MAX WEST REALTY INC.

12 WALFORD ROAD, Toronto (Kingsway South)
House$2,799,000
$12,616/yr taxListing Courtesy of RE/MAX PROFESSIONALS INC.

1 LANCER DRIVE, Vaughan (Maple)
House$2,799,000
$11,796/yr taxListing Courtesy of REMAX YOUR COMMUNITY REALTY

258 SHOREACRES ROAD, Burlington (Shoreacres)
House$2,799,000
$13,155/yr taxListing Courtesy of ROYAL LEPAGE REALTY PLUS OAKVILLE
Similar Properties ?Active Comparables — Search CriteriaSearch Radius2 kmPrice Range±5%Match Home TypeYesMatch BedroomsYes
Sold Comparables
Access to sold property data requires a registered and verified account with TRREB DDF integration.
Coming SoonRented Comparables
Access to rented property data requires a registered and verified account with TRREB DDF integration.
Coming SoonBook a Viewing
60 HILTZ AVENUE, Toronto (South Riverdale), Ontario, M4L2N5

