16 BARKER AVENUE, Toronto (Thistletown-Beaumonde Heights), Ontario, M9V1E5
MLS: W12945226 | House (Freehold)
$2,799,000








































Property Description
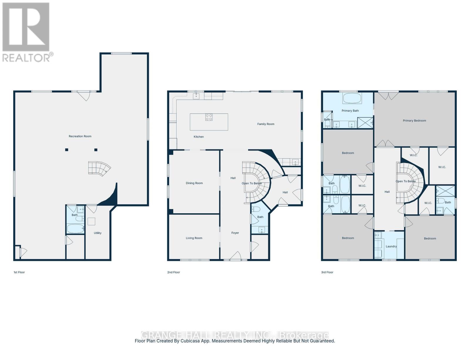
Welcome to this exceptional, newly built, modern residence offering luxury finishes and unmatched functionality on a rare 65 frontage lot. Featuring 4 spacious bedrooms and 6 beautifully appointed bathrooms, this home is thoughtfully designed for upscale living. Step inside to a bright, open-concept layout with soaring ceilings, expansive windows, and premium finishes throughout. The designer kitchen is a true showstopper, complete with high-end appliances, custom cabinetry, and a large island-perfect for entertaining and everyday living. Each bedroom offers generous space and privacy, while the primary suite serves as a luxurious retreat with an ensuite with floor heating and ample closet space. The fully finished lower level adds versatility, with additional living space perfect for a home theatre, gym, or other uses. The basement has all the legal requirements for a basement apartment. There is floor heating. At the same time, the private walkout leads directly to a spacious backyard - uniquely shaped and offering more depth and character than a standard lot. (id:64974)
Quick Facts
- Property Type: House (Freehold)
- Bedrooms: 4 (4 above)
- Bathrooms: 6 (1 half)
- Ownership: Freehold
- Attached: No
- Parking: 4.0 spaces (Attached Garage, Garage)
- Frontage: 65 ft (19.8 m)
Costs
- Annual Taxes: $3,845.84
Listing Provided by: GRANGE HALL REALTY INC.
Board: Toronto Regional Real Estate Board
Data provided via CREA DDF®.
Detailed Features
Interior & Systems
- Heating: Forced air, Natural gas
- Cooling: Central air conditioning
- Basement: Finished, Separate entrance, Walk out, N/A, N/A
- Appliances: Washer, Refrigerator, Central Vacuum, Dishwasher, Stove, Dryer, Alarm System
- Flooring: Tile, Hardwood
- Utilities: Sewer, Electricity, Cable
- Security: Security system
Exterior & Construction
- Exterior: Brick, Stone
- Foundation: Poured Concrete
- Fencing: Fenced yard
- Sewer: Sanitary sewer
- Water: Municipal water
Lot & Land
- Frontage: 65 ft (19.8 m)
- Features: Irregular lot size, Carpet Free
Community & Neighbourhood
- Neighbourhood: Thistletown-Beaumonde Heights
Room Details (9 rooms)
Listing Information
Listing History
MLS listing activity for 16 BARKER AVENUE, Toronto (Thistletown-Beaumonde Heights), Ontario, M9V1E5 — dates reflect when changes were recorded in the DDF
🚗 Travel times
Neighborhood Walkability
Mortgage & Cost Calculators
Nearby Homes ?Nearby Homes — Search CriteriaSearch Radius1 kmPrice Range±5%Match BedroomsYesMatch BathroomsYes

42 BANKFIELD DRIVE, Toronto (Thistletown-Beaumonde Heights)
House$997,700
$4,034/yr taxListing Courtesy of REALTY EXECUTIVES PLUS LTD

MAIN - 33 ALHART DRIVE, Toronto (Thistletown-Beaumonde Heights)
House$2,800/mo
Listing Courtesy of ROYAL LEPAGE MAXIMUM REALTY

11 GROVETREE ROAD, Toronto (Thistletown-Beaumonde Heights)
House$1,299,000
$5,465/yr taxListing Courtesy of REMAX YOUR COMMUNITY REALTY

BASEMENT - 6 FALLOWFIELD ROAD, Toronto (Rexdale-Kipling)
House$1,895/mo
Listing Courtesy of SUTTON GROUP-ADMIRAL REALTY INC.

65 BRIDGENORTH CRESCENT, Toronto (Thistletown-Beaumonde Heights)
House$1,038,000
$4,193/yr taxListing Courtesy of RIGHT AT HOME REALTY

44 DASHWOOD CRESCENT, Toronto (Thistletown-Beaumonde Heights)
House$878,868
$3,944/yr taxListing Courtesy of GET SOLD REALTY INC.

18 HINTON ROAD, Toronto (Rexdale-Kipling)
House$868,868
$3,876/yr taxListing Courtesy of GET SOLD REALTY INC.

39 PAKENHAM DRIVE, Toronto (Rexdale-Kipling)
House$868,868
$3,627/yr taxListing Courtesy of GET SOLD REALTY INC.

34 BELLEGLADE COURT, Toronto (Humbermede)
House$1,148,800
$3,994/yr taxListing Courtesy of ROYAL LEPAGE CITIZEN REALTY

146 VEROBEACH BOULEVARD, Toronto (Humbermede)
House$3,600/mo
Listing Courtesy of SUTTON GROUP - REALTY EXPERTS INC.

BSMT - 183 ELMHURST DRIVE, Toronto (Rexdale-Kipling)
House$1,700/mo
Listing Courtesy of RE/MAX PROFESSIONALS INC.

85 HARLOW CRESCENT, Toronto (Thistletown-Beaumonde Heights)
House$1,648,900
$8,785/yr taxListing Courtesy of HOMELIFE/MIRACLE REALTY LTD

20 KENNEBEC CRESCENT, Toronto (Rexdale-Kipling)
House$999,000
$3,763/yr taxListing Courtesy of ROYAL KEY

164 ELMHURST DRIVE, Toronto (Rexdale-Kipling)
House$1,499,000
$7,133/yr taxListing Courtesy of CENTURY 21 RED STAR REALTY INC.

LOWER - 3 BONDHEAD PLACE, Toronto (Thistletown-Beaumonde Heights)
House$2,200/mo
Listing Courtesy of PROPERTY.CA INC.
Similar Homes ?Similar Homes — Search CriteriaSearch Radius5 kmPrice Range±5%Match Home TypeYesMatch BedroomsYes

130 ANDREWS DRIVE, Bradford West Gwillimbury (Bond Head)
House$2,799,000
$9,948/yr taxListing Courtesy of INTERNATIONAL REALTY FIRM, INC.

221 CRAWFORD STREET, Toronto (Trinity-Bellwoods)
Single Family$2,799,000
$10,723/yr taxListing Courtesy of SAGE REAL ESTATE LIMITED

734 SHAW STREET, Toronto (Palmerston-Little Italy)
House$2,799,000
$10,912/yr taxListing Courtesy of RE/MAX WEST REALTY INC.

2129 HIGHVIEW Drive, Burlington
House$2,799,000
$9,288/yr taxListing Courtesy of RE/MAX Escarpment Realty Inc.

40 LIMERICK STREET, Richmond Hill (Oak Ridges Lake Wilcox)
House$2,799,000
$10,657/yr taxListing Courtesy of REMAX YOUR COMMUNITY REALTY

60 HILTZ AVENUE, Toronto (South Riverdale)
House$2,799,000
$10,293/yr taxListing Courtesy of HARVEY KALLES REAL ESTATE LTD.

1 LANCER DRIVE, Vaughan (Maple)
House$2,799,000
$11,796/yr taxListing Courtesy of REMAX YOUR COMMUNITY REALTY

546 CONSERVATION DRIVE, Brampton (Snelgrove)
House$2,799,000
$20,278/yr taxListing Courtesy of RE/MAX REALTY SERVICES INC.

68 MOUNTAIN BROW Boulevard, Hamilton
House$2,799,000
$18,887/yr taxListing Courtesy of Realty Network

258 SHOREACRES ROAD, Burlington (Shoreacres)
House$2,799,000
$13,155/yr taxListing Courtesy of ROYAL LEPAGE REALTY PLUS OAKVILLE

12 WALFORD ROAD, Toronto (Kingsway South)
House$2,799,000
$12,616/yr taxListing Courtesy of RE/MAX PROFESSIONALS INC.

1468 FERNCREST ROAD, Oakville (JC Joshua Creek)
House$2,799,000
$12,344/yr taxListing Courtesy of Royal LePage Real Estate Services Ltd., Brokerage

293 TORREY PINES ROAD, Vaughan (Kleinburg)
House$2,799,000
$12,470/yr taxListing Courtesy of RE/MAX WEST REALTY INC.

80 PUCCINI DRIVE, Richmond Hill (Oak Ridges)
House$2,798,888
$9,485/yr taxListing Courtesy of RIGHT AT HOME REALTY

99 BIRCH AVENUE, Richmond Hill (South Richvale)
House$2,798,888
$18,602/yr taxListing Courtesy of THE LIND REALTY TEAM INC.
Similar Properties ?Active Comparables — Search CriteriaSearch Radius2 kmPrice Range±5%Match Home TypeYesMatch BedroomsYes
No active comparables found in this area.
No rental comparables found in this area.
Sold Comparables
Access to sold property data requires a registered and verified account with TRREB DDF integration.
Coming SoonRented Comparables
Access to rented property data requires a registered and verified account with TRREB DDF integration.
Coming SoonBook a Viewing
16 BARKER AVENUE, Toronto (Thistletown-Beaumonde Heights), Ontario, M9V1E5
