597 LAFONTAINE ROAD W, Tiny, Ontario, L9M0L7
MLS: S12851078 | House (Freehold)
$1,399,900











































Property Description
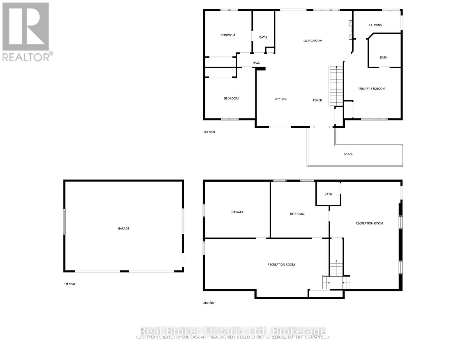
Rare Multi-Generational Home with Full Wheelchair Accessibility - Completed in December of 2025. A truly unique property designed for families who want to live close while maintaining independence. This stunning custom home offers full wheelchair accessibility, including an elevator/lift, wide open spaces, and a private accessible suite, making it ideal for keeping loved ones comfortably at home. The bright, open-concept living area features an expanse of windows & garden doors offering an abundance of natural light with westerly views of the property and a walkout to the back deck. Open to the breathtaking kitchen with a large center island; beautiful finishes and top of the line appliances, you have a wonderful gathering space for everyday living. The main level features two bedrooms and a bathroom in one wing, while the accessible suite and main floor laundry provide convenience and privacy located on the opposite side of the living area. The fully finished basement offers additional living space for extended family, featuring 9' ceilings and Egress-sized windows. Adding exceptional value to the property, you will find a separate self-contained 2 storey home with 3-bedrooms & 2-baths - perfect for rental income, caregivers, or family members who want their own space. Many improvements over the years include kitchen and bathroom renos; new furnace in Dec 2021, and new siding, soffit, and fascia, to name a few. Complete with an oversized detached garage (10 years old)with an unfinished loft above and located just minutes from the beach, this is a one-of-a-kind property. Truly a remarkable offering that must be seen to fully appreciate all that this property has to offer. (id:64974)
Quick Facts
- Property Type: House (Freehold)
- Style: Raised bungalow
- Bedrooms: 4 (3 above, 1 below)
- Bathrooms: 3 (1 half)
- Ownership: Freehold
- Attached: No
- Fireplaces: 1
- Parking: 8 spaces (Detached Garage, Garage)
- Frontage: 448 ft (136.6 m)
Costs
- Annual Taxes: $1,387.19 (2026)
Listing Provided by: Real Broker Ontario Ltd
Board: OnePoint Association of REALTORS®
Data provided via CREA DDF®.
Detailed Features
Interior & Systems
- Heating: Forced air, Propane
- Cooling: Central air conditioning
- Basement: Finished, Full, Other, See Remarks, N/A, N/A
- Appliances: Washer, Refrigerator, Water purifier, Water softener, Dishwasher, Stove, Dryer, Microwave, Water Heater
- Utilities: Electricity, Wireless
- Security: Smoke Detectors
Exterior & Construction
- Style: Raised bungalow
- Exterior: Vinyl siding
- Foundation: Poured Concrete
- Sewer: Septic System
- Water: Drilled Well
Lot & Land
- Frontage: 448 ft (136.6 m)
- Features: Wooded area, Irregular lot size, Rolling, Flat site, Conservation/green belt, Wheelchair access, Carpet Free, Sump Pump
- Zoning: RR-141
Community & Neighbourhood
- Community: School Bus
- Building: Fireplace(s)
- Neighbourhood: Rural Tiny
Room Details (11 rooms)
Listing Information
Listing History
Buy/Sell/Terminated/Expired listing history for 597 LAFONTAINE ROAD W, Tiny, Ontario, L9M0L7
Location & Neighborhood
🚗 Travel times
Neighborhood Walkability
Mortgage & Cost Calculators
Nearby Homes (Within 2km)
Similar Homes
Similar Properties
No rental comparables found in this area.
Sold Comparables
Access to sold property data requires a registered and verified account with TRREB DDF integration.
Coming SoonRented Comparables
Access to rented property data requires a registered and verified account with TRREB DDF integration.
Coming Soon





















