560 Notre Dame Street Unit# 4, Sudbury, Ontario, P3C5L2
MLS: 2125757 | Industrial
$16.00 / square feet




















Property Description
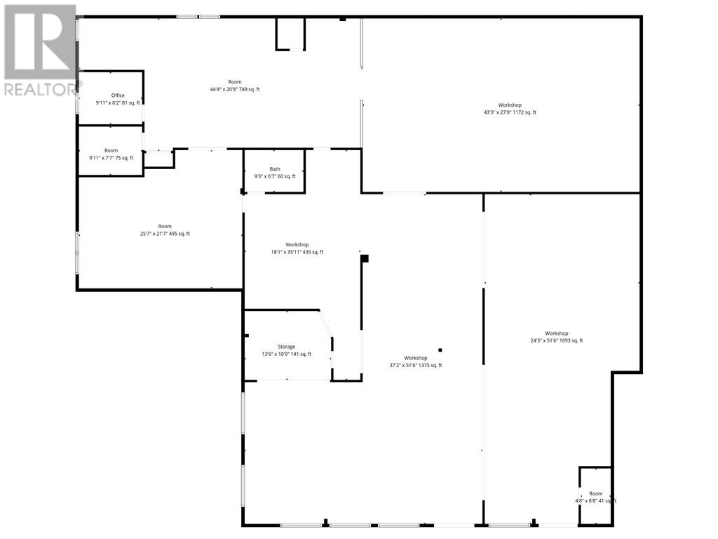
6,000 sq ft industrial space with showroom or storefront for lease on Notre Dame Avenue, offering exceptional visibility with over 30,000 vehicles per day. This versatile unit features an overhead dock-level door, open and functional layout, and plenty of on-site parking for customers, staff, and deliveries. Centrally located with excellent accessibility and ease of entry, this M1-1 Zoned property is ideal for retail showroom, light industrial, distribution, or mixed commercial use in one of Sudbury’s busiest commercial corridors. Very affordable additional rent of $3.25 + 5% admin fee. Available May 1, 2026. (id:65010)
Quick Facts
- Property Type: Industrial
- Bedrooms: None
- Bathrooms: None
Listing Provided by: CREA DDF® Member Brokerage
Data provided via CREA DDF®.
Detailed Features
Listing Information
Location & Neighborhood
🚗 Travel times
Neighborhood Walkability
Mortgage & Cost Calculators
Similar Properties
No active comparables found in this area.
Sold Comparables
Access to sold property data requires a registered and verified account with TRREB DDF integration.
Coming SoonRented Comparables
Access to rented property data requires a registered and verified account with TRREB DDF integration.
Coming Soon














