❮ Back to Search

532 ROSECLIFFE TERRACE, London South (South C), Ontario, N6K4H6

MLS: X12962572 | House (Freehold)

$899,900

❮ Back to Properties

Property Description

EXTREMELY WELL PRICED - Exceptional Value in Rosecliffe Estates! Welcome to this stunning executive residence in prestigious Rosecliffe Estates, where timeless elegance meets modern comfort. Immaculately maintained and thoughtfully updated, this impressive 4+2 bedroom home offers the perfect blend of sophistication, space, & functionality. Step into the grand foyer, highlighted by a dramatic curved oak staircase that immediately sets the tone for the refined interior. The main floor features a classic, well-designed layout with spacious formal living and dining rooms, a warm and inviting family room, convenient main-floor laundry & a beautifully appointed kitchen with dinette.The recently updated kitchen is truly a chef's dream, featuring a new quartz island countertop, a stylish sink and faucet, abundant cabinetry, expansive counter space & an ideal working triangle for effortless meal preparation and entertaining.Upstairs, retreat to the luxurious primary suite, a private sanctuary boasting generous proportions, a spa-inspired ensuite & an oversized walk-in closet. Three additional bedrooms are all impressively sized, offering comfort and flexibility for family or guests.The freshly updated lower level expands your living space with new paint, a renovated 3-piece bathroom, a large recreation room, two additional bedrooms & a dedicated office, perfect for extended family, guests, or working from home.Extensive upgrades provide peace of mind & efficiency, including: Energy Star-rated windows throughout the first & second floors, recently replaced front doors and foyer window hardwood flooring in the family, dining, & living rooms, updated ceramic tile in the foyer and kitchen, upgraded trim and interior doors, energy-efficient furnace and central air conditioning. This exceptional home offers all the quality finishes and thoughtful details you would expect in a property of this calibre & at an incredible price point. See documents for list of upgrades! (id:64974)

Directions: Cross Streets: QUINELLA DR & ROSECLIFFE TERR. ** Directions: WONDERLAND RD. TO ROSECLIFFE TERRACE.

Quick Facts

  • Property Type: House (Freehold)
  • Bedrooms: 6 (4 above, 2 below)
  • Bathrooms: 4 (1 half)
  • Ownership: Freehold
  • Attached: No
  • Fireplaces: 1
  • Parking: 4.0 spaces (Attached Garage, Garage)
  • Frontage: 66 ft (20.1 m)

Costs

  • Annual Taxes: $6,840.00 (2026)

Listing Provided by: NU-VISTA PINNACLE REALTY BROKERAGE INC
Board: London and St. Thomas Association of REALTORS®
Data provided via CREA DDF®.

Detailed Features

📋 MLS Revisions 1 change▼ Click to expand

Interior & Systems

  • Heating: Forced air, Natural gas
  • Cooling: Central air conditioning
  • Basement: Finished, Full
  • Appliances: Washer, Refrigerator, Water meter, Dishwasher, Stove, Dryer, Microwave, Garage door opener remote(s), Water Heater
  • Flooring: Hardwood, Carpeted, Ceramic
  • Utilities: Sewer, Electricity, Cable
  • Security: Smoke Detectors

Exterior & Construction

  • Exterior: Brick, Aluminum siding
  • Foundation: Concrete
  • Fencing: Fenced yard, Fully Fenced
  • Sewer: Sanitary sewer
  • Water: Municipal water

Lot & Land

  • Frontage: 66 ft (20.1 m)
  • Features: Irregular lot size, Rolling, Sump Pump
  • View: City view
  • Zoning: R1-9

Community & Neighbourhood

  • Building: Fireplace(s)
  • Neighbourhood: South C

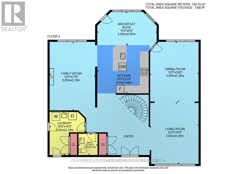
Room Details (16 rooms)

Main level
Kitchen13'4" x 14'5" (192 ft²)
Foyer10'10" x 10'10" (117 ft²)
Eating area15'0" x 8'8" (131 ft²)
Dining room17'8" x 12'0" (212 ft²)
Living room17'8" x 12'0" (212 ft²)
Family room17'8" x 12'0" (212 ft²)
Laundry room10'6" x 10'0" (105 ft²)
Basement
Bedroom 512'8" x 9'9" (124 ft²)
Office12'0" x 9'8" (116 ft²)
Bedroom12'8" x 9'9" (124 ft²)
Utility room14'0" x 9'9" (136 ft²)
Recreational, Games room29'11" x 12'0" (358 ft²)
Second level
Primary Bedroom19'0" x 17'9" (337 ft²)
Bedroom 214'0" x 9'9" (137 ft²)
Bedroom 313'0" x 11'9" (153 ft²)
Bedroom 411'0" x 10'5" (115 ft²)

Listing Information

MLS® NumberX12962572
BoardLondon and St. Thomas
Originating SystemLondon and St. Thomas Association of REALTORS®
BrokerageNU-VISTA PINNACLE REALTY BROKERAGE INC
Date ListedApril 7, 2026
Last UpdatedApril 17, 2026

Listing History

MLS listing activity for 532 ROSECLIFFE TERRACE, London South (South C), Ontario, N6K4H6 — dates reflect when changes were recorded in the DDF

DateDays on MarketPriceEventListing ID
🔄4/17/202610Status ChangedX12962572
4/7/20260$899,900Listed (For Sale)X12962572

Location & Neighborhood

📍532 ROSECLIFFE TERRACE, London South, Ontario, N6K4H6

🚗 Travel times

Neighborhood Walkability

Mortgage & Cost Calculators

Similar Homes ?Similar Homes — Search CriteriaSearch Radius5 kmPrice Range±5%Match Home TypeYesMatch BedroomsYes

Similar Properties ?Active Comparables — Search CriteriaSearch Radius2 kmPrice Range±5%Match Home TypeYesMatch BedroomsYes

Active Comparables
Rent Comparables
Sold Comparables
Rented Comparables

Sold Comparables

Access to sold property data requires a registered and verified account with TRREB DDF integration.

Coming Soon

Rented Comparables

Access to rented property data requires a registered and verified account with TRREB DDF integration.

Coming Soon
ASAP
 
SAT
18
Apr
SUN
19
Apr
MON
20
Apr
TUE
21
Apr
WED
22
Apr
THU
23
Apr
FRI
24
Apr
MorningAfternoonEvening
Cathy Dou
Cathy Dou
Broker of Record
[email protected]647-691-6364
Ask a Question

Book a Viewing

532 ROSECLIFFE TERRACE, London South (South C), Ontario, N6K4H6

ASAP
 
SAT
18
Apr
SUN
19
Apr
MON
20
Apr
TUE
21
Apr
WED
22
Apr
THU
23
Apr
FRI
24
Apr
MorningAfternoonEvening
Cathy Dou
Cathy Dou
Broker of Record
[email protected]647-691-6364
Ask a Question