48 BARNYARD TRAIL, Barrie, Ontario, L9J0C2
MLS: S12868164 | House (Freehold)
$919,000


















































Property Description
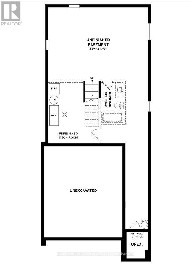
Welcome to 48 Barnyard Trail - a beautifully upgraded brick and stone executive home nestled on a desirable corner lot in one of Barrie's fastest-growing communities. Hardwood floors, oversized windows, and a bright open-concept layout create a warm and inviting atmosphere throughout. The main floor is built for entertaining - a chef's kitchen with large island, breakfast bar, and dedicated pantry flows seamlessly into the great room, with a separate formal dining room and walkout to a private deck overlooking the fully fenced yard. Upstairs, the massive primary bedroom offers a private ensuite and generous his-and-her walk-in closets, while three additional bedrooms, a second ensuite rarely found in this community, a full bath, and a conveniently located second-floor laundry with laundry tub make everyday living effortless. The full unfinished basement with 3 piece rough-in and large above-grade windows is flooded with natural light and presents endless potential - rec room, home gym, or future ADU. All of this just minutes to Barrie South GO, Hwy 400, Metro, and Maple Ridge Secondary. 48 Barnyard Trail is one you have to see in person. (id:64974)
Quick Facts
- Property Type: House (Freehold)
- Bedrooms: 4 (4 above)
- Bathrooms: 4 (1 half)
- Ownership: Freehold
- Attached: No
- Parking: 6 spaces (Garage)
- Frontage: 41 ft (12.5 m)
Costs
- Annual Taxes: $7,115.22
Listing Provided by: REAL BROKER ONTARIO LTD.
Board: Toronto Regional Real Estate Board
Data provided via CREA DDF®.
Detailed Features
Interior & Systems
- Heating: Forced air, Natural gas
- Cooling: Central air conditioning
- Basement: Unfinished, Full
- Appliances: Washer, Refrigerator, Dishwasher, Stove, Dryer, Water Heater
- Flooring: Hardwood
- Security: Smoke Detectors
Exterior & Construction
- Exterior: Brick, Stone
- Foundation: Poured Concrete
- Sewer: Sanitary sewer
- Water: Municipal water
Lot & Land
- Frontage: 41 ft (12.5 m)
- Features: Irregular lot size, Flat site
Community & Neighbourhood
- Community: School Bus
- Neighbourhood: Rural Barrie Southeast
Room Details (7 rooms)
Listing Information
Listing History
Buy/Sell/Terminated/Expired listing history for 48 BARNYARD TRAIL, Barrie, Ontario, L9J0C2
Location & Neighborhood
🚗 Travel times
Neighborhood Walkability
Mortgage & Cost Calculators
Nearby Homes (Within 2km)
Similar Homes
Similar Properties
No rental comparables found in this area.
Sold Comparables
Access to sold property data requires a registered and verified account with TRREB DDF integration.
Coming SoonRented Comparables
Access to rented property data requires a registered and verified account with TRREB DDF integration.
Coming Soon


















