37 BROOKFIELD CRESCENT, Barrie (Bayshore), Ontario, L4N9R6
MLS: S12838982 | House (Freehold)
$924,000



































Property Description
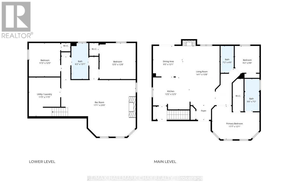
Welcome to 37 Brookfield Crescent - a one of kind customized all brick detached bungalow in Barrie's sought-after family-centric Kingswood neighbourhood. This ~2,700 sq.ft. immaculately maintained open concept home has been updated with tasteful, modern design elements - professionally finished top to bottom for maximum functional living space. From the moment you enter this home, along the custom stonework pathway to the front door entrance with glass insert detail, you are welcomed by the natural light flowing from the custom, oversized skylight in the foyer. The open floor plan of the main level is ideal for spending valued time with family, and perfect for hosting and entertaining. Spectacular custom kitchen with oversized granite island for prepping/serving. Formal dining room where memories are made around the table at festive meals. Seamless flow takes you into the living room with feature wall gas-burning fireplace, 9' ceilings, crown moulding - with walk out to the raised back deck and lower patio seating areas in the fully fenced rear yard. Private living space of this home includes primary suite with w/i closet, exceptional ensuite with glass-walled shower. Main 4pc bath, second bedroom (nursery, home office, study zone, etc) complete this private living zone. Full, finished lower level (~1300 sq.ft.) includes a multi-purpose rec room with feature wall fireplace, an additional 2 bedrooms, another full bath. Double garage with single garage door, as well as parking for four vehicles in the private paved driveway. Original owners customized the builder's plan to create this gem, situated in a quiet neighbourhood that offers a great community vibe. Walking distance to Algonquin Ridge Elementary School and Lake Simcoe's waterfront. Incredible hiking trails, plenty of dedicated green space to enjoy in all seasons. Close to all key amenities - shopping, services - and commuter routes - public transit, GO Train/Bus service, highways. (id:64974)
Quick Facts
- Property Type: House (Freehold)
- Style: Bungalow
- Bedrooms: 4 (2 above, 2 below)
- Bathrooms: 3
- Ownership: Freehold
- Attached: No
- Fireplaces: 2
- Parking: 6 spaces (Attached Garage, Garage)
- Frontage: 14.9 m (49 ft)
Costs
- Annual Taxes: $6,649.00
Listing Provided by: RE/MAX HALLMARK CHAY REALTY
Board: Toronto Regional Real Estate Board
Data provided via CREA DDF®.
Detailed Features
Interior & Systems
- Heating: Forced air, Natural gas
- Cooling: Central air conditioning
- Basement: Finished, Full
- Appliances: Washer, Refrigerator, Dishwasher, Stove, Dryer
Exterior & Construction
- Style: Bungalow
- Exterior: Brick
- Foundation: Concrete
- Fencing: Fenced yard
- Sewer: Sanitary sewer
- Water: Municipal water
Lot & Land
- Frontage: 14.9 m (49 ft)
- Zoning: Res
Community & Neighbourhood
- Building: Fireplace(s)
- Neighbourhood: Bayshore
Room Details (12 rooms)
Listing Information
Listing History
Buy/Sell/Terminated/Expired listing history for 37 BROOKFIELD CRESCENT, Barrie (Bayshore), Ontario, L4N9R6
Location & Neighborhood
🚗 Travel times
Neighborhood Walkability
Mortgage & Cost Calculators
Nearby Homes (Within 2km)
Similar Homes
Similar Properties
No rental comparables found in this area.
Sold Comparables
Access to sold property data requires a registered and verified account with TRREB DDF integration.
Coming SoonRented Comparables
Access to rented property data requires a registered and verified account with TRREB DDF integration.
Coming Soon
























