460 FALCON LANE, Russell, Ontario, K4R1E5
MLS: X12899476 | House (Freehold)
$639,900


Property Description
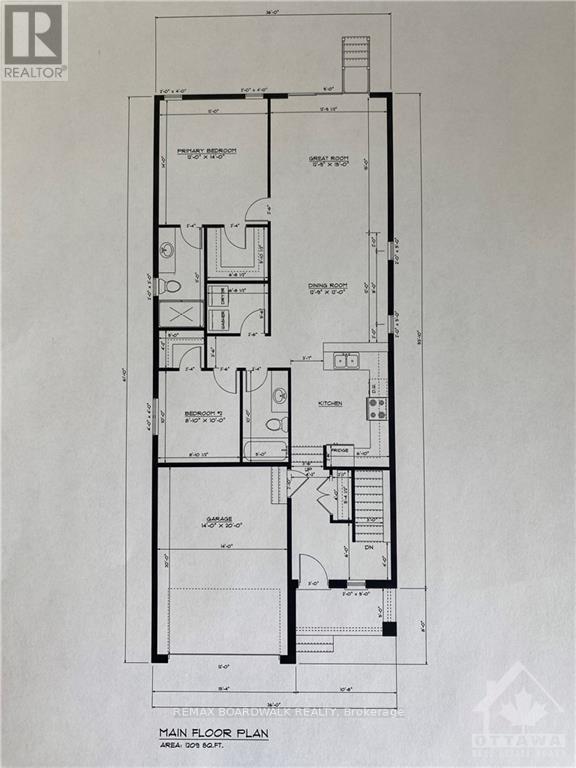
TO BE BUILT ! Camellia model is a single family home! This bungalow features an open concept main level filled with natural light, gourmet kitchen, main floor laundry and much more. It also offers a spectacular 3pieces master bedroom Ensuite, a second bedroom, family washroom and laundry room. The basement is unspoiled and awaits your final touches! This home is not built. Construction for October 2026. Possibility of having the basement completed for an extra $32,500. 24Hr IRRE on all offers. (id:64974)
Quick Facts
- Property Type: House (Freehold)
- Style: Bungalow
- Bedrooms: 2 (2 above)
- Bathrooms: 2
- Ownership: Freehold
- Attached: No
- Parking: 4.0 spaces (Attached Garage, Garage, Inside Entry)
- Frontage: 36 ft (11 m)
Listing Provided by: REMAX BOARDWALK REALTY
Board: Ottawa Real Estate Board
Data provided via CREA DDF®.
Detailed Features
Interior & Systems
- Heating: Forced air, Natural gas
- Cooling: Air exchanger, None
- Basement: Unfinished, Full
- Appliances: Hood Fan
- Utilities: Sewer, Electricity
Exterior & Construction
- Style: Bungalow
- Exterior: Wood, Stone
- Foundation: Concrete
- Sewer: Sanitary sewer
- Water: Municipal water
Lot & Land
- Frontage: 36 ft (11 m)
- Zoning: Residential
Community & Neighbourhood
- Neighbourhood: 601 - Village of Russell
Room Details (7 rooms)
Listing Information
Listing History
MLS listing activity for 460 FALCON LANE, Russell, Ontario, K4R1E5 — dates reflect when changes were recorded in the DDF
🚗 Travel times
Neighborhood Walkability
Mortgage & Cost Calculators
Nearby Homes ?Nearby Homes — Search CriteriaSearch Radius1 kmPrice Range±5%Match BedroomsYesMatch BathroomsYes

108 DOVE HOUSE GARDENS, Russell
House$659,900
Listing Courtesy of REMAX BOARDWALK REALTY

464 FALCON LANE, Russell
House$659,900
Listing Courtesy of REMAX BOARDWALK REALTY

456 FALCON LANE, Russell
House$649,900
Listing Courtesy of REMAX BOARDWALK REALTY

408 FALCON LANE, Russell
House$629,900
Listing Courtesy of REMAX BOARDWALK REALTY

404 FALCON LANE, Russell
House$689,900
Listing Courtesy of REMAX BOARDWALK REALTY

B - 480 FALCON LANE, Russell
Other$2,000/mo
Listing Courtesy of EXP REALTY

480 FALCON LANE, Russell
Other$2,600/mo
Listing Courtesy of EXP REALTY

A - 480 FALCON LANE, Russell
Other$2,550/mo
Listing Courtesy of EXP REALTY

A - 440 FALCON LANE, Russell
Other$2,750/mo
Listing Courtesy of EXP REALTY

B - 440 FALCON LANE, Russell
Other$2,400/mo
Listing Courtesy of EXP REALTY

440 FALCON LANE, Russell
Other$2,600/mo
Listing Courtesy of EXP REALTY

235 PEACOCK DRIVE, Russell
Row / Townhouse$513,960
Listing Courtesy of PAUL RUSHFORTH REAL ESTATE INC.

233 PEACOCK DRIVE, Russell
Row / Townhouse$526,055
Listing Courtesy of PAUL RUSHFORTH REAL ESTATE INC.

241 PEACOCK DRIVE, Russell
Row / Townhouse$553,690
Listing Courtesy of PAUL RUSHFORTH REAL ESTATE INC.

243 PEACOCK DRIVE, Russell
Row / Townhouse$539,715
Listing Courtesy of PAUL RUSHFORTH REAL ESTATE INC.
Similar Homes ?Similar Homes — Search CriteriaSearch Radius5 kmPrice Range±5%Match Home TypeYesMatch BedroomsYes

108 DOVE HOUSE GARDENS, Russell
House$659,900
Listing Courtesy of REMAX BOARDWALK REALTY

3938 SUNSET LANE, Lincoln (Lincoln-Jordan/Vineland)
House$639,900
$3,925/yr taxListing Courtesy of ROYAL LEPAGE NRC REALTY

1808 ST CLAIR AVENUE, Toronto (Weston-Pellam Park)
Condo - Apartment$639,900
$2,986/yr taxListing Courtesy of ROYAL LEPAGE SIGNATURE REALTY

8 BRANTDALE Avenue, Hamilton
House$639,900
$4,162/yr taxListing Courtesy of Right at Home Realty

2504 - 5 VALHALLA INN ROAD, Toronto (Islington-City Centre West)
Condo - Apartment$639,900
$2,715/yr taxListing Courtesy of ROYAL LEPAGE REALTY PLUS

1205 MONTBLANC CRESCENT, Russell
House$639,900
Listing Courtesy of REMAX BOARDWALK REALTY

11 WHELANS Way, Hamilton
Condo - Row / Townhouse$639,900
$0/yr taxListing Courtesy of RE/MAX Escarpment Realty Inc.

80 CAITHNESS Street W Unit# 301, Caledonia
Condo - Apartment$639,900
Listing Courtesy of RE/MAX Escarpment Realty Inc.

2 - 4015 HICKORY DRIVE, Mississauga (Rathwood)
Condo - Row / Townhouse$639,900
$4,332/yr taxListing Courtesy of HOMELIFE LANDMARK REALTY INC.

45 KING STREET, Halton Hills (Georgetown)
House$639,900
$3,526/yr taxListing Courtesy of CENTURY 21 KELLEHER REAL ESTATE INC.

218 - 2500 RUTHERFORD ROAD, Vaughan (Maple)
Condo - Apartment$639,900
$3,260/yr taxListing Courtesy of REMAX YOUR COMMUNITY REALTY

833 - 22 SOUTHPORT STREET, Toronto (High Park-Swansea)
Condo - Apartment$639,900
$2,383/yr taxListing Courtesy of ROYAL LEPAGE TERREQUITY REALTY

4108 - 138 DOWNES STREET, Toronto (Waterfront Communities)
Condo - Apartment$639,900
$3,001/yr taxListing Courtesy of KELLER WILLIAMS REFERRED URBAN REALTY

24 SAVANNAH CRESCENT, Wasaga Beach
Row / Townhouse$639,900
$3,919/yr taxListing Courtesy of REAL BROKER ONTARIO LTD.

21 PILON STREET, Russell
House$639,900
$3,445/yr taxListing Courtesy of AVENUE NORTH REALTY INC.
Similar Properties ?Active Comparables — Search CriteriaSearch Radius2 kmPrice Range±5%Match Home TypeYesMatch BedroomsYes
Sold Comparables
Access to sold property data requires a registered and verified account with TRREB DDF integration.
Coming SoonRented Comparables
Access to rented property data requires a registered and verified account with TRREB DDF integration.
Coming SoonBook a Viewing
460 FALCON LANE, Russell, Ontario, K4R1E5
