456 FALCON LANE, Russell, Ontario, K4R1E5
MLS: X12899456 | House (Freehold)
$649,900



















Property Description
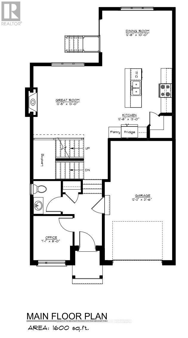
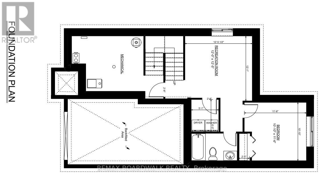
The Mayflower is sure to impress! The main floor consist of an open concept which included a large gourmet kitchen with walk-in pantry and central island, sun filled dinning room with easy access to the back deck, a large great room, and even a main floor office. The second level is just as beautiful with its 3 generously sized bedrooms, modern family washroom, second floor laundry facility and to complete the master piece a massive 3 piece master Ensuite with large integrated walk-in closet. The basement is unspoiled and awaits your final touches! Possibility of having the basement completed for an extra $32,500. This home is not built. Construction for October 2026. *Please note that the pictures are from the same Model but from a different home with some added upgrades.* (id:64974)
Quick Facts
- Property Type: House (Freehold)
- Bedrooms: 3 (3 above)
- Bathrooms: 3 (1 half)
- Ownership: Freehold
- Attached: No
- Parking: 4.0 spaces (Attached Garage, Garage, Inside Entry)
- Frontage: 36 ft (11 m)
Listing Provided by: REMAX BOARDWALK REALTY
Board: Ottawa Real Estate Board
Data provided via CREA DDF®.
Detailed Features
Interior & Systems
- Heating: Forced air, Natural gas
- Cooling: Air exchanger, None
- Basement: Unfinished, Full
- Appliances: Hood Fan
- Utilities: Sewer, Electricity
Exterior & Construction
- Exterior: Wood, Stone
- Foundation: Concrete
- Sewer: Sanitary sewer
- Water: Municipal water
Lot & Land
- Frontage: 36 ft (11 m)
- Zoning: Residential
Community & Neighbourhood
- Neighbourhood: 601 - Village of Russell
Room Details (7 rooms)
Listing Information
Listing History
MLS listing activity for 456 FALCON LANE, Russell, Ontario, K4R1E5 — dates reflect when changes were recorded in the DDF
🚗 Travel times
Neighborhood Walkability
Mortgage & Cost Calculators
Nearby Homes ?Nearby Homes — Search CriteriaSearch Radius1 kmPrice Range±5%Match BedroomsYesMatch BathroomsYes

408 FALCON LANE, Russell
House$629,900
Listing Courtesy of REMAX BOARDWALK REALTY

464 FALCON LANE, Russell
House$659,900
Listing Courtesy of REMAX BOARDWALK REALTY

460 FALCON LANE, Russell
House$639,900
Listing Courtesy of REMAX BOARDWALK REALTY

404 FALCON LANE, Russell
House$689,900
Listing Courtesy of REMAX BOARDWALK REALTY

B - 480 FALCON LANE, Russell
Other$2,000/mo
Listing Courtesy of EXP REALTY

480 FALCON LANE, Russell
Other$2,600/mo
Listing Courtesy of EXP REALTY

A - 480 FALCON LANE, Russell
Other$2,550/mo
Listing Courtesy of EXP REALTY

A - 440 FALCON LANE, Russell
Other$2,750/mo
Listing Courtesy of EXP REALTY

B - 440 FALCON LANE, Russell
Other$2,400/mo
Listing Courtesy of EXP REALTY

440 FALCON LANE, Russell
Other$2,600/mo
Listing Courtesy of EXP REALTY

235 PEACOCK DRIVE, Russell
Row / Townhouse$513,960
Listing Courtesy of PAUL RUSHFORTH REAL ESTATE INC.

233 PEACOCK DRIVE, Russell
Row / Townhouse$526,055
Listing Courtesy of PAUL RUSHFORTH REAL ESTATE INC.

257 PEACOCK DRIVE, Russell
Row / Townhouse$552,855
Listing Courtesy of PAUL RUSHFORTH REAL ESTATE INC.

241 PEACOCK DRIVE, Russell
Row / Townhouse$553,690
Listing Courtesy of PAUL RUSHFORTH REAL ESTATE INC.

243 PEACOCK DRIVE, Russell
Row / Townhouse$539,715
Listing Courtesy of PAUL RUSHFORTH REAL ESTATE INC.
Similar Homes ?Similar Homes — Search CriteriaSearch Radius5 kmPrice Range±5%Match Home TypeYesMatch BedroomsYes

1450 SOUTH RUSSELL ROAD, Russell
House$649,900
$4,376/yr taxListing Courtesy of BENNETT PROPERTY SHOP REALTY

464 FALCON LANE, Russell
House$659,900
Listing Courtesy of REMAX BOARDWALK REALTY

408 FALCON LANE, Russell
House$629,900
Listing Courtesy of REMAX BOARDWALK REALTY

868 - 135 LOWER SHERBOURNE STREET W, Toronto (Moss Park)
Condo - Apartment$649,900
$3,591/yr taxListing Courtesy of HOMELIFE/BAYVIEW REALTY INC.

314 - 980 YONGE STREET, Toronto (Annex)
Condo - Apartment$649,900
$3,175/yr taxListing Courtesy of FOREST HILL REAL ESTATE INC.

1201 DUNDAS Street E Unit# 902, Toronto
Condo - Apartment$649,900
$2,669/yr taxListing Courtesy of Royal LePage Burloak Real Estate Services

192 MILL, Lakeshore
House$649,900
Listing Courtesy of DEERBROOK PLUS REALTY INC

30 SERENITY PLACE, Huntsville (Chaffey)
Row / Townhouse$649,900
$4,801/yr taxListing Courtesy of RE/MAX Professionals North

86 - 2245 BUR OAK AVENUE, Markham (Greensborough)
Condo - Row / Townhouse$649,900
$2,744/yr taxListing Courtesy of GALLO REAL ESTATE LTD.

2183 ASPHODEL 5 LINE, Asphodel-Norwood
House$649,900
$3,635/yr taxListing Courtesy of KIC REALTY

2302 - 7 MABELLE AVENUE, Toronto (Islington-City Centre West)
Condo - Apartment$649,900
$2,836/yr taxListing Courtesy of REAL BROKER ONTARIO LTD.

180 George Street Unit# PH208, Ottawa
Condo - Apartment$649,900
Listing Courtesy of RE/MAX SUDBURY INC., BROKERAGE

619 - 825 CHURCH STREET, Toronto (Rosedale-Moore Park)
Condo - Apartment$649,900
$4,253/yr taxListing Courtesy of ROYAL LEPAGE SUPREME REALTY

309 - 3290 NEW STREET, Burlington (Roseland)
Condo - Apartment$649,900
Listing Courtesy of RE/MAX ESCARPMENT REALTY INC.

704 - 223 PRINCESS STREET, Kingston (East of Sir John A. Blvd)
Condo - Apartment$649,900
Listing Courtesy of ROYAL LEPAGE PROALLIANCE REALTY, BROKERAGE
Similar Properties ?Active Comparables — Search CriteriaSearch Radius2 kmPrice Range±5%Match Home TypeYesMatch BedroomsYes

1450 SOUTH RUSSELL ROAD, Russell
House$649,900
$4,376/yr taxListing Courtesy of BENNETT PROPERTY SHOP REALTY

464 FALCON LANE, Russell
House$659,900
Listing Courtesy of REMAX BOARDWALK REALTY

408 FALCON LANE, Russell
House$629,900
Listing Courtesy of REMAX BOARDWALK REALTY
Sold Comparables
Access to sold property data requires a registered and verified account with TRREB DDF integration.
Coming SoonRented Comparables
Access to rented property data requires a registered and verified account with TRREB DDF integration.
Coming SoonBook a Viewing
456 FALCON LANE, Russell, Ontario, K4R1E5

