451 BURNSIDE STREET, Saugeen Shores, Ontario, N0H2C3
MLS: X12072308 | House (Freehold)
$779,900














Property Description
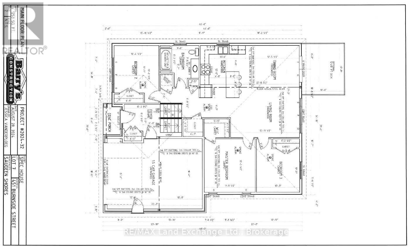
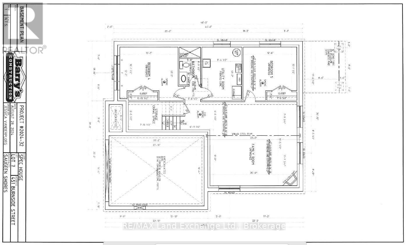
The framing is complete for this 1253 sqft 3 + 2 bedroom raised bungalow at 451 Burnside Street in Port Elgin. The main floor features an open concept living room, dining room, and kitchen with walk out to the backyard, 3 bedrooms, 4pc bath and laundry closet. The basement will be fully finished and include a family room with gas fireplace, 2 more bedrooms, 3pc bath and utility room . The yard will be completely sodded and a double concrete drive will be installed. The house is heated with a gas forced air furnace and cooled with central air. HST is included in the list price provided the Buyer qualifies for the rebate and assigns it to the Builder on closing. Prices subject to change without notice (id:64974)
Quick Facts
- Property Type: House (Freehold)
- Style: Raised bungalow
- Bedrooms: 5 (3 above, 2 below)
- Bathrooms: 2
- Ownership: Freehold
- Attached: No
- Fireplaces: 1
- Parking: 3 spaces (Attached Garage, Garage)
- Frontage: 48 ft (14.5 m)
Listing Provided by: RE/MAX Land Exchange Ltd.
Board: OnePoint Association of REALTORS®
Data provided via CREA DDF®.
Detailed Features
Interior & Systems
- Heating: Forced air, Natural gas
- Cooling: Central air conditioning, Air exchanger
- Basement: Finished, Full
- Appliances: Water meter, Water Heater - Tankless
- Flooring: Tile, Hardwood
- Utilities: Sewer, Electricity, Cable
Exterior & Construction
- Style: Raised bungalow
- Exterior: Brick, Vinyl siding
- Foundation: Poured Concrete
- Sewer: Sanitary sewer
- Water: Municipal water
Lot & Land
- Frontage: 48 ft (14.5 m)
- Features: Flat site, Sump Pump
- Zoning: R2-4
Community & Neighbourhood
- Building: Fireplace(s)
- Neighbourhood: Saugeen Shores
Room Details (11 rooms)
Listing Information
Listing History
Buy/Sell/Terminated/Expired listing history for 451 BURNSIDE STREET, Saugeen Shores, Ontario, N0H2C3
Location & Neighborhood
🚗 Travel times
Neighborhood Walkability
Mortgage & Cost Calculators
Nearby Homes (Within 2km)
Similar Homes
Similar Properties
No rental comparables found in this area.
Sold Comparables
Access to sold property data requires a registered and verified account with TRREB DDF integration.
Coming SoonRented Comparables
Access to rented property data requires a registered and verified account with TRREB DDF integration.
Coming Soon






















