362 IVINGS DRIVE, Saugeen Shores, Ontario, N0H2C1
MLS: X11896904 | House (Freehold)
$944,900



Property Description
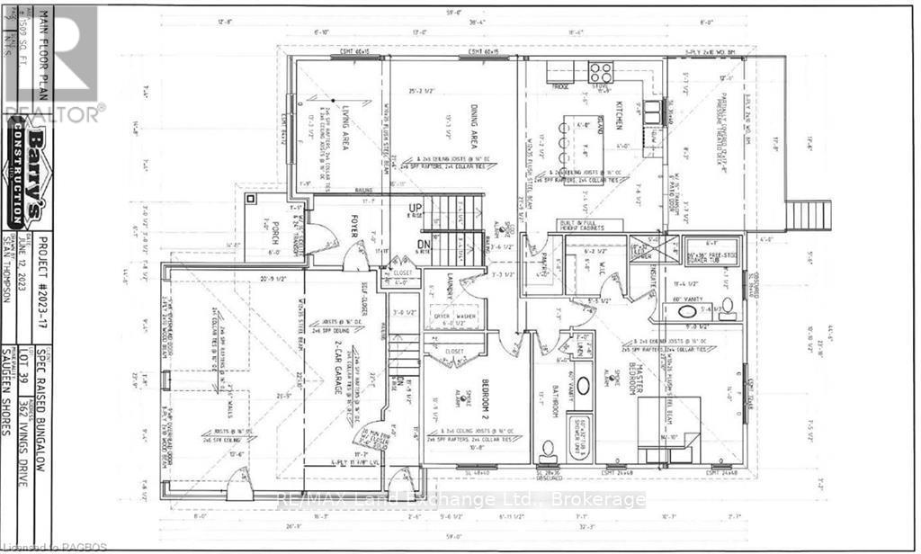
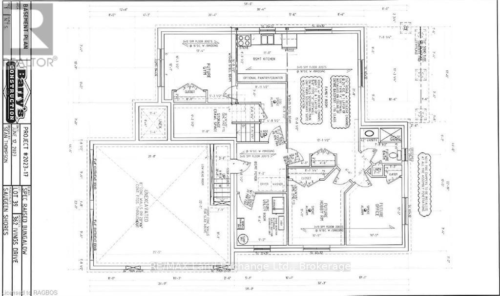
SECONDARY SUITE - NEW BUILD - the framing is complete for this brand new 1509 sqft home featuring 2 bedrooms and 2 baths on the main floor along with a completely self-contained basement apartment with 2 bedrooms and 1 bath. Perfect setup for family members to share, rental income to help pay the mortgage while you live upstairs, or 2 seperate rental units to add to your investment portfolio. Price includes hardwood and ceramic throughout the main floor, vinyl plank and ceramic in the lower level, Quartz counter tops in the main floor kitchen, laminate in the lower kitchen and all baths. There are laundry hookups in both units and there is a room in the lower level for the use of the main floor occupant. Exterior finishes include sodded yard, concrete drive and partially covered deck measuring 17'8 x 12 off the main floor kitchen. The house will be heated with a gas forced air furnace and one gas fireplace. HST is included in the asking price provided the Buyer qualifies for the rebate and assigns it to the Builder on closing. Prices to subject to change without notice. (id:64974)
Quick Facts
- Property Type: House (Freehold)
- Style: Raised bungalow
- Bedrooms: 4 (2 above, 2 below)
- Bathrooms: 3
- Ownership: Freehold
- Attached: No
- Fireplaces: 1
- Parking: 4 spaces (Attached Garage)
- Frontage: 45 ft (13.6 m)
Listing Provided by: RE/MAX Land Exchange Ltd.
Board: OnePoint Association of REALTORS®
Data provided via CREA DDF®.
Detailed Features
Interior & Systems
- Heating: Forced air, Natural gas
- Cooling: Air exchanger, None
- Basement: Apartment in basement, Walk-up, N/A, N/A
- Appliances: Garage door opener remote(s), Water Heater - Tankless
- Flooring: Tile, Hardwood, Vinyl
- Utilities: Sewer, Electricity, Cable
Exterior & Construction
- Style: Raised bungalow
- Exterior: Stone, Vinyl siding
- Foundation: Poured Concrete
- Sewer: Sanitary sewer
- Water: Municipal water
Lot & Land
- Frontage: 45 ft (13.6 m)
- Features: Flat site, Sump Pump, In-Law Suite
- Zoning: R1-84
Community & Neighbourhood
- Building: Fireplace(s)
- Neighbourhood: Saugeen Shores
Room Details (12 rooms)
Listing Information
Listing History
Buy/Sell/Terminated/Expired listing history for 362 IVINGS DRIVE, Saugeen Shores, Ontario, N0H2C1
Location & Neighborhood
🚗 Travel times
Neighborhood Walkability
Mortgage & Cost Calculators
Nearby Homes (Within 2km)
Similar Homes
Similar Properties
No rental comparables found in this area.
Sold Comparables
Access to sold property data requires a registered and verified account with TRREB DDF integration.
Coming SoonRented Comparables
Access to rented property data requires a registered and verified account with TRREB DDF integration.
Coming Soon






















