296 RIDGE STREET, Saugeen Shores, Ontario, N0H2C3
MLS: X12337497 | House (Freehold)
$969,900



Property Description
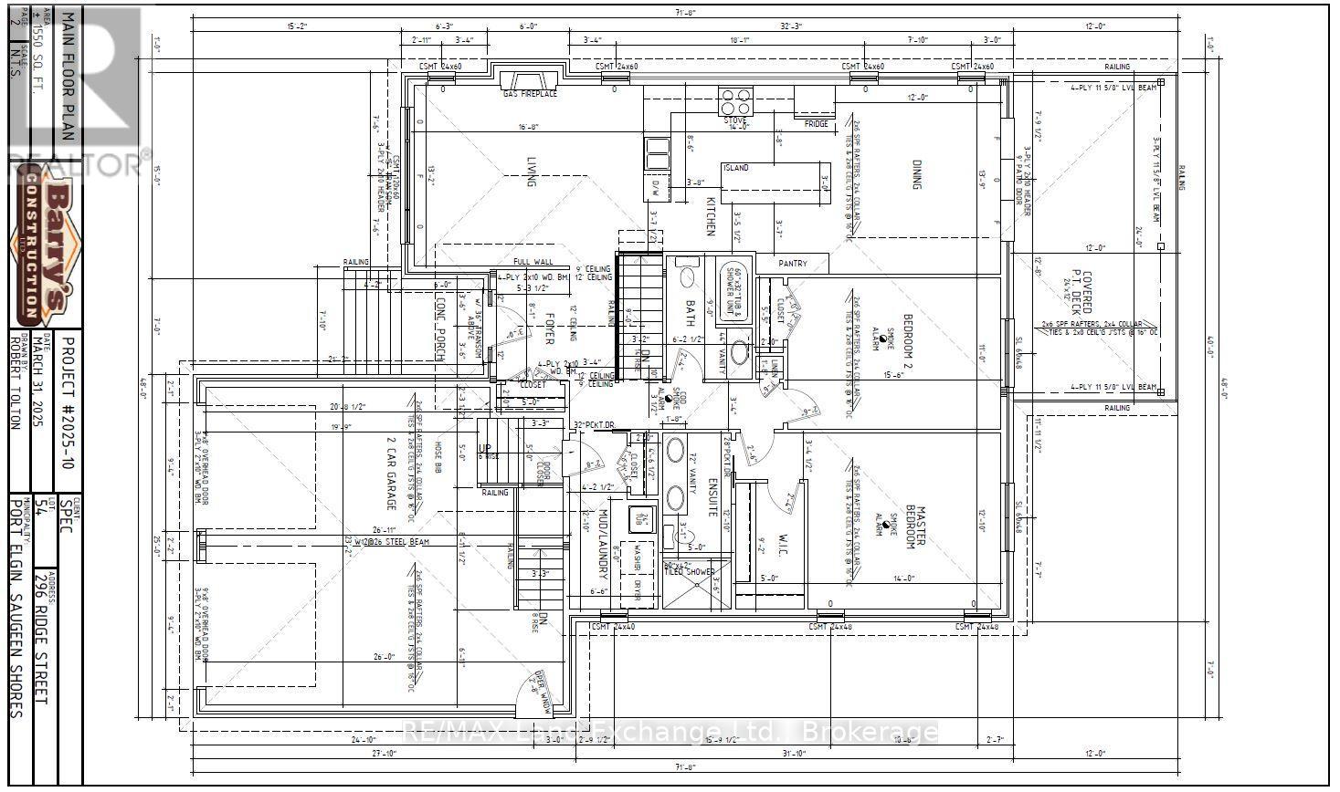
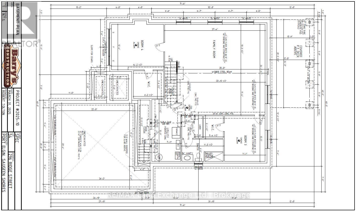
Framing is complete on this brand new 1550sqft home at 296 Ridge Street in Port Elgin; that when finished will feature 4 bedrooms and 3 full baths. The location is central to the beach and shopping. The basement will be fully finished and include a family room, 2 bedrooms, 3pc bath and utility room with walkup to the 2 car garage. Standard features included hardwood and ceramic throughout the main floor, 12ft ceiling in the foyer, 9ft ceilings thoughout the remainder of the main floor, hardwood staircase to the basement, Quartz counters in the kitchen, tiled shower in the ensuite bath,walkout to a partially covered deck, gas forced air heating with central air, gas fireplace in the living room, concrete drive, sodded yard and more. HST is included in the list price provided the Buyer qualifies for the rebate and assigns it to the Builder on closing. Prices subject to change without notice, colour selections maybe available for those that act early. (id:64974)
Quick Facts
- Property Type: House (Freehold)
- Style: Raised bungalow
- Bedrooms: 4 (2 above, 2 below)
- Bathrooms: 3
- Ownership: Freehold
- Attached: No
- Fireplaces: 1
- Parking: 4 spaces (Attached Garage, Garage)
- Frontage: 55 ft (16.9 m)
Listing Provided by: RE/MAX Land Exchange Ltd.
Board: OnePoint Association of REALTORS®
Data provided via CREA DDF®.
Detailed Features
Interior & Systems
- Heating: Forced air, Natural gas
- Cooling: Central air conditioning, Air exchanger
- Basement: Finished, Walk-up, N/A, N/A
- Appliances: Water meter, Garage door opener, Garage door opener remote(s), Water Heater - Tankless
- Flooring: Tile, Hardwood
- Utilities: Sewer, Electricity, Cable
Exterior & Construction
- Style: Raised bungalow
- Exterior: Stone
- Foundation: Poured Concrete
- Sewer: Sanitary sewer
- Water: Municipal water
Lot & Land
- Frontage: 55 ft (16.9 m)
- Features: Flat site, Sump Pump
- Zoning: R1-84
Community & Neighbourhood
- Building: Fireplace(s)
- Neighbourhood: Saugeen Shores
Room Details (12 rooms)
Listing Information
Listing History
Buy/Sell/Terminated/Expired listing history for 296 RIDGE STREET, Saugeen Shores, Ontario, N0H2C3
Location & Neighborhood
🚗 Travel times
Neighborhood Walkability
Mortgage & Cost Calculators
Nearby Homes (Within 2km)
Similar Homes
Similar Properties
No rental comparables found in this area.
Sold Comparables
Access to sold property data requires a registered and verified account with TRREB DDF integration.
Coming SoonRented Comparables
Access to rented property data requires a registered and verified account with TRREB DDF integration.
Coming Soon





















