43 JUDD Drive, Simcoe, Ontario, N3Y4Y8
MLS: 40811896 | House (Freehold)
$749,900




Property Description
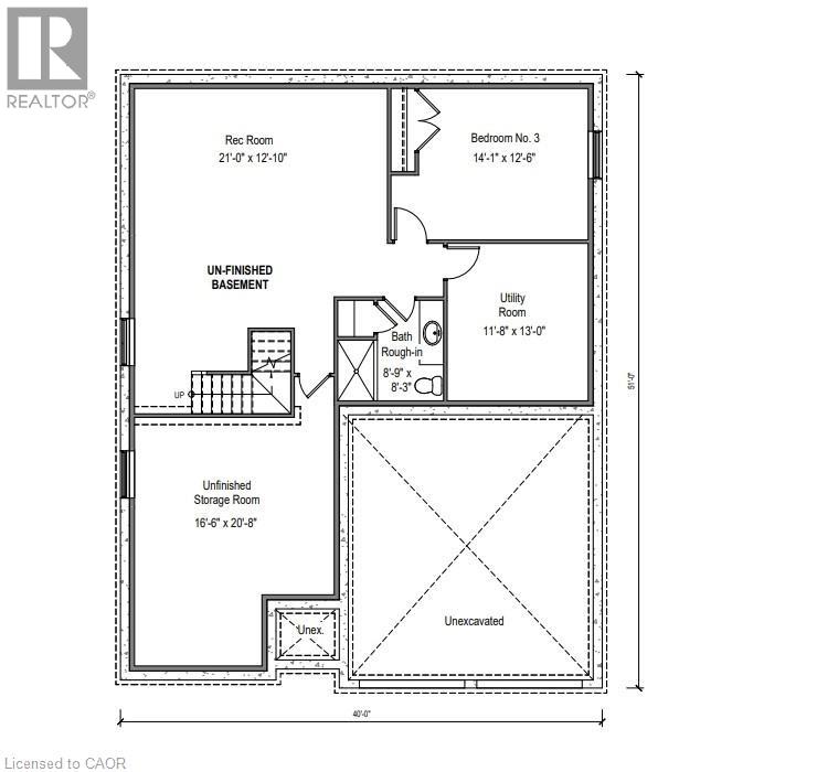
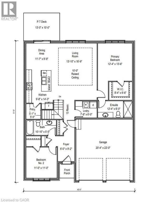
This modern 1512 sq. ft. TO BE BUILT home in the town of Simcoe offers the perfect combination of convenience and style. Ideally located near shopping, restaurants, schools, and Highway 3 for easy commuting, this home is perfect for busy families and professionals alike. Step inside and experience the spaciousness of 9 ft ceilings throughout, with a grand 10 ft tray ceiling in the living room and raised ceiling in the second bedroom. The main floor features two generous bedrooms, including a primary suite with a luxurious ensuite bath. This home will feature a charming brick and stone exterior, along with a covered front porch and an expansive rear covered concrete porch—perfect for enjoying your outdoor space in comfort. The oversized garage with insulated doors provides direct access to the foyer, offering both convenience and practicality. As a new build, you’ll have the exciting opportunity to personalize your dream home by selecting cabinets, countertops, flooring, ensuite tiles, plumbing fixtures, light fixtures, front door, and paint colors. The unfinished basement provides possibilities for future expansion—whether you choose to create a cozy entertainment area, additional bedrooms, or a home office, the choice is yours. Don’t miss out on this incredible opportunity to own a brand-new home in Simcoe. Book your appointment to start picking out your finishes. (id:64974)
Quick Facts
- Property Type: House (Freehold)
- Style: Bungalow
- Bedrooms: 3 (2 above, 1 below)
- Bathrooms: 3
- Living Area: 1,512 sq ft (140.5 m²)
- Above Grade: 1,512 sq ft (140.5 m²)
- Ownership: Freehold
- Attached: No
- Parking: 4.0 spaces (Attached Garage)
- Frontage: 52 ft (15.8 m)
Listing Provided by: RE/MAX Erie Shores Realty Inc. Brokerage
Board: Cornerstone Association of REALTORS®
Data provided via CREA DDF®.
Detailed Features
Interior & Systems
- Heating: Forced air, Natural gas
- Cooling: Central air conditioning
- Basement: Unfinished, Full
- Appliances: Garage door opener
- Security: Smoke Detectors
Exterior & Construction
- Style: Bungalow
- Exterior: Brick, Stone
- Foundation: Poured Concrete
- Sewer: Municipal sewage system
- Water: Municipal water
Lot & Land
- Frontage: 52 ft (15.8 m)
- Features: Paved driveway, Sump Pump, Automatic Garage Door Opener
- Zoning: R1-A (H)
Community & Neighbourhood
- Subdivision: Town of Simcoe
Room Details (15 rooms)
Listing Information
Listing History
MLS listing activity for 43 JUDD Drive, Simcoe, Ontario, N3Y4Y8 — dates reflect when changes were recorded in the DDF
🚗 Travel times
Neighborhood Walkability
Mortgage & Cost Calculators
Nearby Homes ?Nearby Homes — Search CriteriaSearch Radius1 kmPrice Range±5%Match BedroomsYesMatch BathroomsYes

51 JUDD Drive, Simcoe
House$819,900
Listing Courtesy of RE/MAX Erie Shores Realty Inc. Brokerage

34 ANDREW Avenue, Simcoe
House$989,900
Listing Courtesy of RE/MAX Erie Shores Realty Inc. Brokerage

11 FALLS Crescent, Simcoe
House$600,000
$4,076/yr taxListing Courtesy of Century 21 Heritage Group LTD

42 DONLY Drive S Unit# 2, Simcoe
Condo - Row / Townhouse$355,000
$3,123/yr taxListing Courtesy of RE/MAX Erie Shores Realty Inc. Brokerage

17 ANGLE STREET, Norfolk (Simcoe)
House$899,000
$7,145/yr taxListing Courtesy of RE/MAX ESCARPMENT REALTY INC.

17 ANGLE Street, Simcoe
House$899,000
$7,145/yr taxListing Courtesy of RE/MAX Escarpment Realty Inc.

60 DONLY Drive S Unit# 109, Simcoe
Condo - Apartment$338,500
$1,876/yr taxListing Courtesy of Royal LePage Trius Realty Brokerage

27 WERRET Avenue, Simcoe
House$2,900/mo
Listing Courtesy of Royal LePage Trius Realty Brokerage

19 ADAMS Lane, Simcoe
House$699,900
$4,726/yr taxListing Courtesy of Century 21 Grand Realty Inc.

6 SUMMIT CIRCLE, Norfolk (Simcoe)
House$1,129,000
$8,480/yr taxListing Courtesy of RE/MAX ESCARPMENT REALTY INC.

70 BERKLEY Crescent, Simcoe
House$699,999
$4,422/yr taxListing Courtesy of RE/MAX Erie Shores Realty Inc. Brokerage

6 SUMMIT Circle, Simcoe
House$1,129,000
$8,480/yr taxListing Courtesy of RE/MAX Escarpment Realty Inc.
Similar Homes ?Similar Homes — Search CriteriaSearch Radius5 kmPrice Range±5%Match Home TypeYesMatch BedroomsYes

10629 COUNTY RD 2 ROAD, Alnwick/Haldimand (Grafton)
House$749,900
$4,286/yr taxListing Courtesy of ROYAL HERITAGE REALTY LTD.

914 KERR STREET, Cobourg
House$749,900
Listing Courtesy of ROYAL LEPAGE PROALLIANCE REALTY

4 FIRE ROUTE 140 (TURTLE LANE) LANE, McKellar
House$749,900
$2,170/yr taxListing Courtesy of eXp Realty

236 FOXBOROUGH PLACE, Thames Centre (Thorndale)
House$749,900
Listing Courtesy of CENTURY 21 FIRST CANADIAN CORP

216 FOXBOROUGH PLACE, Thames Centre (Thorndale)
House$749,900
Listing Courtesy of CENTURY 21 FIRST CANADIAN CORP

152 SIENNA AVENUE, Belleville (Belleville Ward)
House$749,900
Listing Courtesy of ROYAL LEPAGE PROALLIANCE REALTY

121 BUSHMILL Circle, Freelton
House$749,900
Listing Courtesy of ROYAL LEPAGE CROWN REALTY SERVICES

1662 COUNTY ROAD 40 ROAD, Douro-Dummer
House$749,900
$3,174/yr taxListing Courtesy of RIGHT AT HOME REALTY

667156 20 SIDE ROAD, Mulmur
House$749,900
$2,441/yr taxListing Courtesy of RE/MAX HALLMARK CHAY REALTY

220 FOXBOROUGH PLACE, Thames Centre (Thorndale)
House$749,900
Listing Courtesy of CENTURY 21 FIRST CANADIAN CORP

11 MONTEBELLO TERRACE, New Tecumseth (Alliston)
Condo$749,900
$4,169/yr taxListing Courtesy of ROYAL LEPAGE RCR REALTY

78 DEARING DRIVE, South Huron (Stephen)
House$749,900
Listing Courtesy of ROYAL LEPAGE TRILAND PREMIER BROKERAGE

34 CHURCH STREET, Port Colborne (Main Street)
House$749,900
$6,449/yr taxListing Courtesy of Real Broker Ontario Ltd.

12 POND STREET, Trent Hills (Hastings)
Row / Townhouse$749,900
Listing Courtesy of ROYAL LEPAGE FRANK REAL ESTATE

3808 - 55 CHARLES STREET E, Toronto (Church-Yonge Corridor)
Condo - Apartment$749,900
$5,113/yr taxListing Courtesy of RE/MAX ROUGE RIVER REALTY LTD.
Similar Properties ?Active Comparables — Search CriteriaSearch Radius2 kmPrice Range±5%Match Home TypeYesMatch BedroomsYes
No active comparables found in this area.
No rental comparables found in this area.
Sold Comparables
Access to sold property data requires a registered and verified account with TRREB DDF integration.
Coming SoonRented Comparables
Access to rented property data requires a registered and verified account with TRREB DDF integration.
Coming SoonBook a Viewing
43 JUDD Drive, Simcoe, Ontario, N3Y4Y8
