70 BERKLEY Crescent, Simcoe, Ontario, N3Y2K5
MLS: 40806206 | House (Freehold)
$719,000








































Property Description
Welcome to 70 Berkley Crescent! Located in a safe and friendly neighbourhood, in one of Simcoe's most desirable areas. This beautiful brick bungalow offers modern colours and design throughout. The main floor features 3 generous sized bedrooms, 11/2 bathrooms, a spacious living room/ dining area and a bright open kitchen. The flow of the main level makes for a super functional area for everyday living and entertaining. The oversized patio doors off the dining area lead out to the large deck where you can sit and enjoy the large, private, fenced in area. When in season the gardens are full of amazing colour, making this back yard so peaceful and enjoyable. Downstairs there are several areas to entertain family and friends in the large rec room area. There is an oversized spare room that is currently being used as a fourth bedroom. It would also make a great work out room or playroom for the kids. The roomy 3pc bathroom features a walk-in glass tile shower. Laundry room offer lots of space for extra appliances. The basement would make a great spot as a granny suite or a spot for an older teen to have their own space. Some features include: hardwood flooring throughout most of the main level, freshly painted throughout, newly wallpapered accent walls, up dated lighting in most rooms, soft close cupboards in kitchen, leaf guards, N/G hook up for the bbq and so much more. Located close to so many of Simcoe's amenities. This home is a a must see and won't last long. Book a private viewing before it is gone. (id:64974)
Quick Facts
- Property Type: House (Freehold)
- Style: Bungalow
- Bedrooms: 3 (3 above)
- Bathrooms: 3 (1 half)
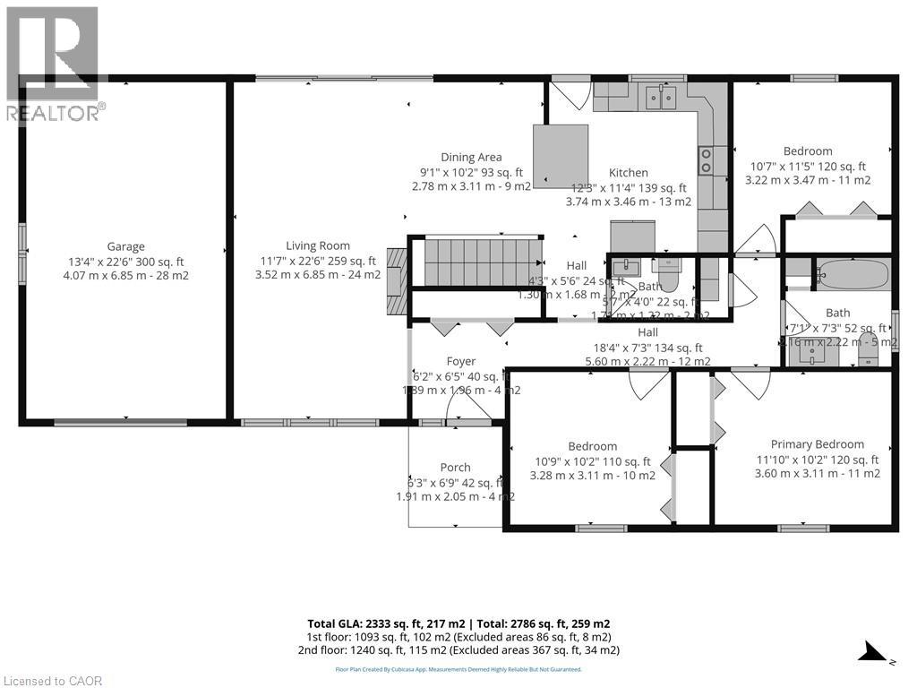
- Living Area: 2,333 sq ft (216.7 m²)
- Above Grade: 1,240 sq ft (115.2 m²)
- Below Grade: 1,093 sq ft (101.5 m²)
- Year Built: 1973
- Ownership: Freehold
- Attached: No
- Parking: 5 spaces (Attached Garage)
- Frontage: 66 ft (20.1 m)
Costs
- Annual Taxes: $4,422.00
Listing Provided by: RE/MAX Erie Shores Realty Inc. Brokerage
Board: Cornerstone Association of REALTORS®
Data provided via CREA DDF®.
Detailed Features
Interior & Systems
- Heating: Forced air, Natural gas
- Cooling: Central air conditioning
- Basement: Partially finished, Full
- Appliances: Dishwasher, Central Vacuum - Roughed In, Hood Fan, Garage door opener
Exterior & Construction
- Style: Bungalow
- Exterior: Brick
- Foundation: Poured Concrete
- Fencing: Partially fenced
- Sewer: Municipal sewage system
- Water: Municipal water
Lot & Land
- Frontage: 66 ft (20.1 m)
- Features: Paved driveway, Automatic Garage Door Opener
- Zoning: R1-A
Community & Neighbourhood
- Community: Quiet Area
- Subdivision: Town of Simcoe
Room Details (13 rooms)
Listing Information
Listing History
Buy/Sell/Terminated/Expired listing history for 70 BERKLEY Crescent, Simcoe, Ontario, N3Y2K5
Location & Neighborhood
🚗 Travel times
Neighborhood Walkability
Mortgage & Cost Calculators
Nearby Homes (Within 2km)
Similar Homes
Similar Properties
No rental comparables found in this area.
Sold Comparables
Access to sold property data requires a registered and verified account with TRREB DDF integration.
Coming SoonRented Comparables
Access to rented property data requires a registered and verified account with TRREB DDF integration.
Coming Soon
























