406 - 796468 GREY ROAD 19, Blue Mountains, Ontario, L9Y0N6
MLS: X12867268 | Apartment (Condo)
$334,000








































Property Description
North Creek Resort at Blue ~ income plus enjoyment! Great studio unit steps from the ski gate to Blue Mountain ski hill. Currently short term accommodation (STA) licence approved and renting on Airbnb, buyer to apply and meet criteria with the Town of The Blue Mountains if you wish to continue renting the unit out. Fully furnished and equipped, with a queen bed, pull out couch, in total the unit sleeps 4. Options available for combination of personal use, nightly/weekend/extended rentals. Enjoy the community amenities such as the year round outdoor hot tub, summer heated swimming pool, tennis/pickleball courts, community BBQ, lounge in Gatehouse, overnight security, snow removal to right to the door, Rogers Ignite TV and unlimited Internet, all included in Condo Maintenance. Conveniently dine onsite at the Indian Restaurant, or you can walk, bike, or take the shuttle to Village at Blue Mountain to dine and shop. HST and BMVA fees apply, and in addition to sale price. North Creek Resort at Blue is a member of the Blue Mountain Village Association, fees and corresponding benefits apply. Special assessment until 2027. North Creek Resort at Blue was previously known as Mountain Springs Resort. This is your chance to enjoy your weekend getaways & ski vacations, and supplement the costs with rental possibilities. (id:64974)
Quick Facts
- Property Type: Apartment (Condo)
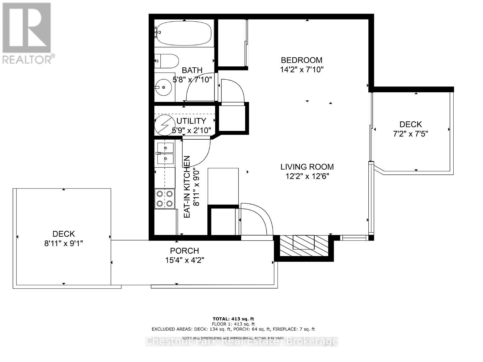
- Bedrooms: 1 (1 above)
- Bathrooms: 1
- Ownership: Condo/Strata
- Attached: Yes
- Fireplaces: 1
- Parking: 1 space (No Garage, Shared)
Costs
- Annual Taxes: $1,014.52
- Condo/HOA Fee: $506.70 / monthly
- Corp: Shore to Slope 705-444-5139
- Includes: Common Area Maintenance, Cable TV, Water, Insurance, Parking
Listing Provided by: Chestnut Park Real Estate
Board: OnePoint Association of REALTORS®
Data provided via CREA DDF®.
Detailed Features
Interior & Systems
- Heating: Other
- Cooling: Wall unit
- Basement: None
- Appliances: Refrigerator, Dishwasher, Stove, Water Heater
Exterior & Construction
- Exterior: Wood
Lot & Land
- Features: Balcony
- Pool: Outdoor pool
- Zoning: C4
Community & Neighbourhood
- Community: Pets Allowed With Restrictions
- Building: Storage - Locker, Fireplace(s), Visitor Parking
- Neighbourhood: Blue Mountains
Room Details (4 rooms)
Listing Information
Listing History
Buy/Sell/Terminated/Expired listing history for 406 - 796468 GREY ROAD 19, Blue Mountains, Ontario, L9Y0N6
Location & Neighborhood
🚗 Travel times
Neighborhood Walkability
Mortgage & Cost Calculators
Nearby Homes (Within 2km)
Similar Homes
Similar Properties
No rental comparables found in this area.
Sold Comparables
Access to sold property data requires a registered and verified account with TRREB DDF integration.
Coming SoonRented Comparables
Access to rented property data requires a registered and verified account with TRREB DDF integration.
Coming Soon




















