110 - 49 RAGLAN STREET, Collingwood, Ontario, L9Y4X1
MLS: S12760736 | Other (Condo)
$349,000



















Property Description
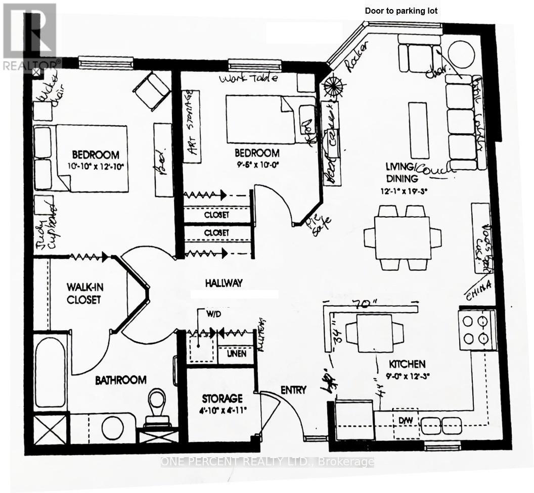
Welcome to Unit #110 at Sunset Suites. This rarely available and highly desirable ground level suite, allows you the option to walk straight out your locking sliding door to the parking area. With this Life Lease, Property taxes are included in the monthly fee of $885.24, also included in this fee are heat, hydro, water and maintenance, parking and several storage areas, perfect for worry free, comfortable, safe and secure retirement living. Sunset Suites, a Life lease, 60+ senior building is Owned and operated by the County of Simcoe and offers a secured foyer with controlled access, private mailbox, gathering areas, common balconies on each floor, a multi-purpose room and many social functions with an Activity Coordinator onsite. This bright and roomy (2) bedroom unit boasts updated flooring, newer appliances and open concept living, plenty of storage and in suite laundry. The primary bedroom with walk-in closet also features direct access to the large bathroom with walk-in shower. The second bedroom is perfect for guests, an office or an arts room. The building is well maintained by the County of Simcoe and perfectly located, just a short walk to the waterfront and trails. Come and enjoy everything Collingwood has to offer. (id:64974)
Quick Facts
- Property Type: Other (Condo)
- Bedrooms: 2 (2 above)
- Bathrooms: 1
- Ownership: Condo/Strata
- Parking: 1 space (No Garage)
Costs
- Condo/HOA Fee: $885.24 / monthly
- Corp: County of Simcoe
- Includes: Heat, Electricity, Water, Parking
Listing Provided by: ONE PERCENT REALTY LTD.
Board: Toronto Regional Real Estate Board
Data provided via CREA DDF®.
Detailed Features
Interior & Systems
- Basement: None
- Appliances: Washer, Refrigerator, Dishwasher, Stove, Dryer, Window Coverings
Exterior & Construction
- Exterior: Stucco
Lot & Land
- Features: Elevator
- Zoning: Life Lease - Sunset Village Suites
Community & Neighbourhood
- Community: Community Centre, Pets Allowed With Restrictions
- Building: Party Room, Visitor Parking
- Neighbourhood: Collingwood
Listing Information
Listing History
Buy/Sell/Terminated/Expired listing history for 110 - 49 RAGLAN STREET, Collingwood, Ontario, L9Y4X1
Location & Neighborhood
🚗 Travel times
Neighborhood Walkability
Mortgage & Cost Calculators
Nearby Homes (Within 2km)
Similar Homes
Similar Properties
No rental comparables found in this area.
Sold Comparables
Access to sold property data requires a registered and verified account with TRREB DDF integration.
Coming SoonRented Comparables
Access to rented property data requires a registered and verified account with TRREB DDF integration.
Coming Soon






















