39 CRAIG STREET, Perth, Ontario, K7H1Y1
MLS: X12988476 | House (Freehold)
$449,900
































Property Description
***THE OPEN HOUSE SCHEDULED FOR SATURDAY APRIL 18TH HAS BEEN CANCELLED. WE ARE SORRY FOR ANY INCONVENIENCE. This wonderful 3 bedroom family home is in a great location within walking distance to all of Perth's amenities, fabulous restaurants and shops. This could be just what you are looking for!Step inside and you will find a lovely bright living room with gorgeous wide plank flooring, the dining room and an amazing spacious new kitchen. You will appreciate having the 3 season room (currently used for storage and workshop) off of the kitchen. The 2nd level features 3 nice sized bedrooms and the full 4pc bath. The extensive list of improvements completed to this home include a new kitchen (new flooring, wiring, insulation, fridge, stove and dishwasher (2023), new energy efficient Heat Pump/AC (2025), New insulation in the basement and blown in all exterior walls (2025), Exterior Doors (2025) Electrical panel upgraded (2023),Steel Roof (2020) 2 bedrooms were recently renovated and so much more! You will also enjoy the new patio (2025) & exterior shed (2024). With no rear neighbours, the privacy in the backyard is fabulous. (All dates noted are approximate). Don't miss out on this amazing family home, book your private showing today! (id:64974)
Quick Facts
- Property Type: House (Freehold)
- Bedrooms: 3 (3 above)
- Bathrooms: 1
- Ownership: Freehold
- Attached: No
- Parking: 4.0 spaces (Other, No Garage)
- Frontage: 50 ft (15.2 m)
Costs
- Annual Taxes: $2,770.00 (2025)
Listing Provided by: RE/MAX FRONTLINE REALTY
Board: Rideau - St. Lawrence Real Estate Board
Data provided via CREA DDF®.
Detailed Features
Interior & Systems
- Heating: Heat Pump, Forced air, Not known, Not known, Electric, Natural gas, Other
- Basement: Unfinished, N/A
- Appliances: Refrigerator, Dishwasher, Stove
- Utilities: Sewer, Electricity, Cable
Exterior & Construction
- Exterior: Aluminum siding
- Foundation: Stone
- Fencing: Fully Fenced
- Sewer: Sanitary sewer
- Water: Municipal water
Lot & Land
- Frontage: 50 ft (15.2 m)
- Features: Carpet Free
Community & Neighbourhood
- Neighbourhood: 907 - Perth
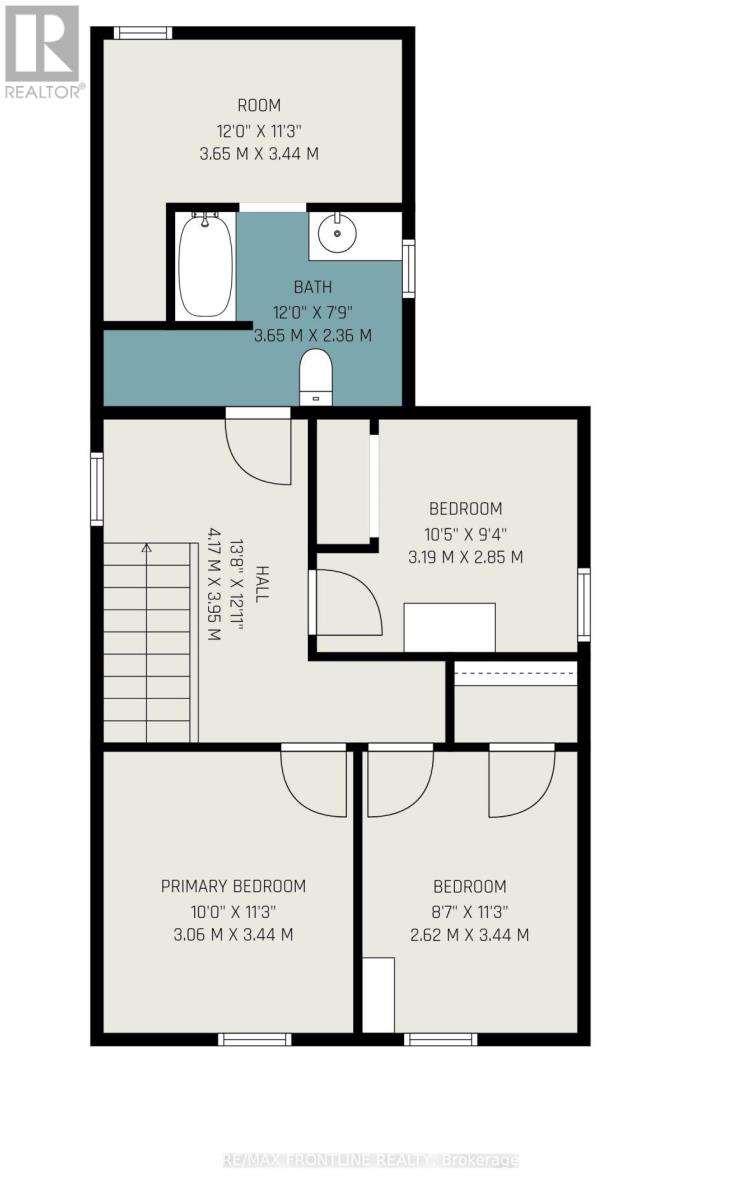
Room Details (10 rooms)
Listing Information
Listing History
MLS listing activity for 39 CRAIG STREET, Perth, Ontario, K7H1Y1 — dates reflect when changes were recorded in the DDF
Location & Neighborhood
🚗 Travel times
Neighborhood Walkability
Mortgage & Cost Calculators
Similar Homes ?Similar Homes — Search CriteriaSearch Radius5 kmPrice Range±5%Match Home TypeYesMatch BedroomsYes

906 - 3050 ELLESMERE ROAD, Toronto (Morningside)
Condo - Apartment$449,900
$1,682/yr taxListing Courtesy of HOMEWISE REAL ESTATE

97 DONALD STREET S, Belleville (Belleville Ward)
House$449,900
$2,666/yr taxListing Courtesy of ROYAL LEPAGE PROALLIANCE REALTY

2 SILKE DRIVE, Petawawa
House$449,900
$3,354/yr taxListing Courtesy of RE/MAX PEMBROKE REALTY LTD.

20 - 1579 ANSTRUTHER LAKE ROAD, North Kawartha
Condo - Row / Townhouse$449,900
$3,092/yr taxListing Courtesy of Engel & Volkers Toronto Central

293 DRUMMOND STREET, North Huron (Blyth)
House$449,900
$3,546/yr taxListing Courtesy of RE/MAX Reliable Realty Inc

146 CRESWELL DRIVE, Quinte West (Trenton Ward)
House$449,900
$2,604/yr taxListing Courtesy of ROYAL LEPAGE PROALLIANCE REALTY

53 LONG ISLAND, Otonabee-South Monaghan
House$449,900
$2,400/yr taxListing Courtesy of RE/MAX Professionals North

1610 - 5 PARKWAY FOREST DRIVE N, Toronto (Henry Farm)
Condo - Apartment$449,900
$1,674/yr taxListing Courtesy of BALL REAL ESTATE INC.

121 HINKS STREET, Brockton
House$449,900
$2,347/yr taxListing Courtesy of Coldwell Banker Peter Benninger Realty

630 GIBSON STREET, Brockton
House$449,900
$2,451/yr taxListing Courtesy of eXp Realty

3542 BECKSTEAD ROAD, South Dundas
House$449,900
$2,136/yr taxListing Courtesy of ROYAL LEPAGE TEAM REALTY

454 Trerice STREET, Dresden
House$449,900
$1,169/yr taxListing Courtesy of REALTY HOUSE INC. Brokerage

74 WILSON Avenue Unit# 6, Delhi
Condo - Row / Townhouse$449,900
$3,698/yr taxListing Courtesy of RE/MAX Erie Shores Realty Inc. Brokerage

36 JOHN STREET, Cambridge
House$449,900
$3,855/yr taxListing Courtesy of RE/MAX ROUGE RIVER REALTY LTD.

539 CHAMBORD STREET, Alfred and Plantagenet
Row / Townhouse$449,900
Listing Courtesy of EXP REALTY
Similar Properties ?Active Comparables — Search CriteriaSearch Radius2 kmPrice Range±5%Match Home TypeYesMatch BedroomsYes

906 - 3050 ELLESMERE ROAD, Toronto (Morningside)
Condo - Apartment$449,900
$1,682/yr taxListing Courtesy of HOMEWISE REAL ESTATE

97 DONALD STREET S, Belleville (Belleville Ward)
House$449,900
$2,666/yr taxListing Courtesy of ROYAL LEPAGE PROALLIANCE REALTY

2 SILKE DRIVE, Petawawa
House$449,900
$3,354/yr taxListing Courtesy of RE/MAX PEMBROKE REALTY LTD.

20 - 1579 ANSTRUTHER LAKE ROAD, North Kawartha
Condo - Row / Townhouse$449,900
$3,092/yr taxListing Courtesy of Engel & Volkers Toronto Central

293 DRUMMOND STREET, North Huron (Blyth)
House$449,900
$3,546/yr taxListing Courtesy of RE/MAX Reliable Realty Inc

146 CRESWELL DRIVE, Quinte West (Trenton Ward)
House$449,900
$2,604/yr taxListing Courtesy of ROYAL LEPAGE PROALLIANCE REALTY

53 LONG ISLAND, Otonabee-South Monaghan
House$449,900
$2,400/yr taxListing Courtesy of RE/MAX Professionals North

1610 - 5 PARKWAY FOREST DRIVE N, Toronto (Henry Farm)
Condo - Apartment$449,900
$1,674/yr taxListing Courtesy of BALL REAL ESTATE INC.

121 HINKS STREET, Brockton
House$449,900
$2,347/yr taxListing Courtesy of Coldwell Banker Peter Benninger Realty

630 GIBSON STREET, Brockton
House$449,900
$2,451/yr taxListing Courtesy of eXp Realty

3542 BECKSTEAD ROAD, South Dundas
House$449,900
$2,136/yr taxListing Courtesy of ROYAL LEPAGE TEAM REALTY

454 Trerice STREET, Dresden
House$449,900
$1,169/yr taxListing Courtesy of REALTY HOUSE INC. Brokerage

74 WILSON Avenue Unit# 6, Delhi
Condo - Row / Townhouse$449,900
$3,698/yr taxListing Courtesy of RE/MAX Erie Shores Realty Inc. Brokerage

36 JOHN STREET, Cambridge
House$449,900
$3,855/yr taxListing Courtesy of RE/MAX ROUGE RIVER REALTY LTD.

539 CHAMBORD STREET, Alfred and Plantagenet
Row / Townhouse$449,900
Listing Courtesy of EXP REALTY

PCL 7577 SEC NS; SUMMER RESORT LOCATION AE907, Killarney
Other$15,000/mo
Listing Courtesy of KELLER WILLIAMS ADVANTAGE REALTY

129 COLIN AVENUE, Toronto (Yonge-Eglinton)
House$4,900/mo
Listing Courtesy of RIGHT AT HOME REALTY

2178 HIGHWAY 6, Hamilton
House$4,500/mo
Listing Courtesy of RE/MAX REALTY SERVICES INC.

18 1/2 LAKESHORE DRIVE, Hamilton (Stoney Creek)
House$4,250/mo
Listing Courtesy of RIGHT AT HOME REALTY

MAIN FLOOR - 1785 VICTORIA PK AVENUE, Toronto (Wexford-Maryvale)
House$4,250/mo
Listing Courtesy of RIGHT AT HOME REALTY

UPPER - 743 GERRARD STREET E, Toronto (South Riverdale)
Row / Townhouse$4,200/mo
Listing Courtesy of ROYAL LEPAGE TERREQUITY REALTY

UPPER - 15 INDIAN RD CRESCENT, Toronto (High Park North)
Other$4,150/mo
Listing Courtesy of SOTHEBY'S INTERNATIONAL REALTY CANADA

2ND FLOOR - 263 GRACE STREET, Toronto (Palmerston-Little Italy)
House$4,100/mo
Listing Courtesy of ROYAL LEPAGE REAL ESTATE SERVICES LTD.

108 LLOYMINN AVENUE, Hamilton (Ancaster)
House$3,995/mo
Listing Courtesy of ROYAL LEPAGE REAL ESTATE SERVICES LTD.

MAIN FL - 125 WALMER ROAD, Toronto (Annex)
House$3,990/mo
Listing Courtesy of SUTTON GROUP-ASSOCIATES REALTY INC.

49 ALGOMA STREET, Toronto (Mimico)
House$3,800/mo
Listing Courtesy of CITYSCAPE REAL ESTATE LTD.

UPPER - 48 LAWRENCE AVENUE W, Toronto (Lawrence Park North)
House$3,750/mo
Listing Courtesy of SOTHEBY'S INTERNATIONAL REALTY CANADA

1104 - 320 TWEEDSMUIR AVENUE, Toronto (Forest Hill South)
Condo - Other$3,729/mo
Listing Courtesy of FOREST HILL REAL ESTATE INC.

15 CROSSBURN DRIVE, Toronto (Banbury-Don Mills)
House$3,700/mo
Listing Courtesy of JDL REALTY INC.

UPPER - 1149 DUFFERIN STREET, Toronto (Dovercourt-Wallace Emerson-Junction)
House$3,695/mo
Listing Courtesy of ROYAL LEPAGE SIGNATURE REALTY
Sold Comparables
Access to sold property data requires a registered and verified account with TRREB DDF integration.
Coming SoonRented Comparables
Access to rented property data requires a registered and verified account with TRREB DDF integration.
Coming SoonBook a Viewing
39 CRAIG STREET, Perth, Ontario, K7H1Y1

