36 EASTON Road, Brantford, Ontario, N3P1J5
MLS: 40790773 | Industrial
$6,500,000


































Property Description
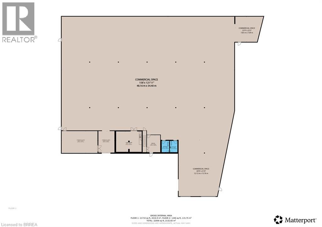
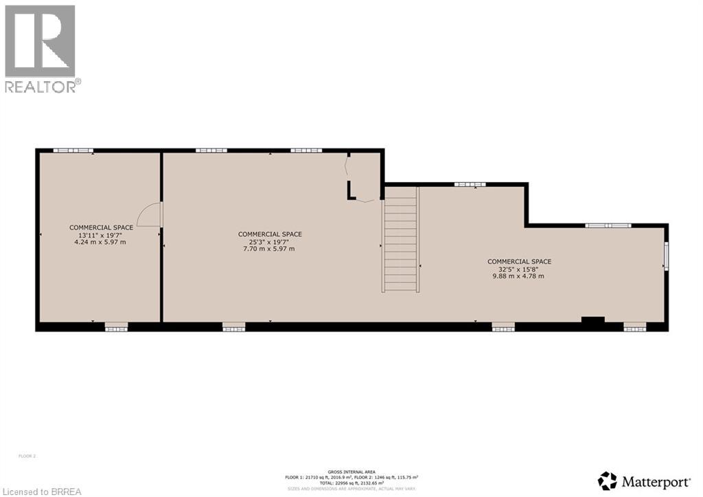
Freestanding 35,313 sq. ft. industrial building. This updated facility features a perfect balance of high-quality office space and functional shop area. Beautifully finished offices offering a professional environment, designed with attention to detail, are built for your team's comfort and productivity, as well as the well-appointed lunchroom within the warehouse. A separate entrance to the staff locker room, leads into the fully air-conditioned warehouse with epoxy floors and advanced sensor lighting for energy efficiency. Enjoy quick access to bus routes or HWY 403 and easy access to the food court for employees. Available immediately. (id:64974)
Quick Facts
- Property Type: Industrial
- Bedrooms: None
- Bathrooms: None
- Living Area: 35,313 sq ft (3,280.7 m²)
- Ownership: Freehold
- Parking: 25 spaces
- Frontage: 144 ft (43.9 m)
Costs
- Annual Taxes: $44,111.90
Listing Provided by: Re/Max Twin City Realty Inc
Board: Brantford Regional Real Estate Assn Inc
Data provided via CREA DDF®.
Detailed Features
Interior & Systems
- Basement: None
Exterior & Construction
- Sewer: Municipal sewage system
- Water: Municipal water
Lot & Land
- Frontage: 144 ft (43.9 m)
- Features: Visual exposure, Paved driveway
- Zoning: GE
Community & Neighbourhood
- Community: High Traffic Area, Industrial Park
- Subdivision: 2021 - Lynden Park Mall
Listing Information
Listing History
Buy/Sell/Terminated/Expired listing history for 36 EASTON Road, Brantford, Ontario, N3P1J5
Location & Neighborhood
🚗 Travel times
Neighborhood Walkability
Mortgage & Cost Calculators
Nearby Homes (Within 2km)
Similar Homes
Similar Properties
No rental comparables found in this area.
Sold Comparables
Access to sold property data requires a registered and verified account with TRREB DDF integration.
Coming SoonRented Comparables
Access to rented property data requires a registered and verified account with TRREB DDF integration.
Coming Soon






















