41 MORTON AVENUE E, Brantford, Ontario, N3R7J5
MLS: X12747986 | Warehouse
$15.00 / square feet






Property Description
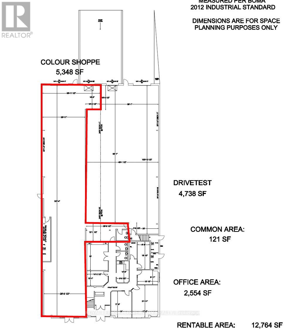
Professionally managed industrial unit available for lease, suitable for retail, service industrial, manufacturing, warehousing, or recreational uses. Strategically located in Brantford, offering excellent exposure, a strong labour pool, and rapid access to Highway 403. High traffic location enhanced by neighbouring DriveTest tenancy. (id:64974)
Quick Facts
- Property Type: Warehouse
- Bedrooms: None
- Bathrooms: None
- Living Area: 5,348 sq ft (496.8 m²)
- Lot Size: 5348.0000 acres (2164.26 ha)
Costs
- Annual Taxes: $5.75 (2025)
Listing Provided by: ROYAL LEPAGE FLOWER CITY REALTY
Board: Toronto Regional Real Estate Board
Data provided via CREA DDF®.
Detailed Features
Interior & Systems
- Heating: Forced air, Natural gas
- Cooling: Partially air conditioned, Fully air conditioned
Exterior & Construction
- Water: Municipal water
Lot & Land
- Lot Size: 5348.0000 acres (2164.26 ha)
- Zoning: M2
Listing Information
Listing History
Buy/Sell/Terminated/Expired listing history for 41 MORTON AVENUE E, Brantford, Ontario, N3R7J5
Location & Neighborhood
🚗 Travel times
Neighborhood Walkability
Mortgage & Cost Calculators
Similar Properties
No active comparables found in this area.
Sold Comparables
Access to sold property data requires a registered and verified account with TRREB DDF integration.
Coming SoonRented Comparables
Access to rented property data requires a registered and verified account with TRREB DDF integration.
Coming Soon














