302 - 490 QUEEN STREET W, Toronto (Kensington-Chinatown), Ontario, M5V2B3
MLS: C12837098 | Apartment (Condo)
$1,650 / monthly





Property Description
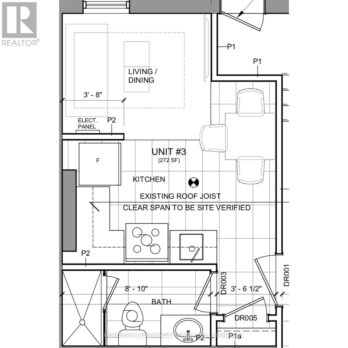
You Own Studio Located In Heart Of The City With Queen West. Common Area Laundry Use, Water is included. Steps To Subway And Street Cars. Laminate Flooring Throughout. Close To Ocad, Hospitals, U Of T And Financial District. Steps Away-Toronto's Finest Dining, Shopping & Enter (id:64974)
Quick Facts
- Property Type: Apartment (Condo)
- Bedrooms: 0
- Bathrooms: 1
- Ownership: Condo/Strata
- Attached: Yes
Listing Provided by: HOMELIFE GOLCONDA REALTY INC.
Board: Toronto Regional Real Estate Board
Data provided via CREA DDF®.
Detailed Features
Interior & Systems
- Heating: Baseboard heaters, Electric
- Cooling: Window air conditioner
- Basement: Apartment in basement, N/A
- Appliances: Refrigerator, Stove, Oven
Exterior & Construction
- Exterior: Brick
Community & Neighbourhood
- Community: Pets not Allowed
- Neighbourhood: Kensington-Chinatown
Room Details (3 rooms)
Listing Information
Listing History
MLS listing activity for 302 - 490 QUEEN STREET W, Toronto (Kensington-Chinatown), Ontario, M5V2B3 — dates reflect when changes were recorded in the DDF
Location & Neighborhood
🚗 Travel times
Neighborhood Walkability
Mortgage & Cost Calculators
Nearby Homes ?Nearby Homes — Search CriteriaSearch Radius1 kmPrice Range±30%Match BedroomsNoMatch BathroomsNo

1220 - 629 KING STREET W, Toronto (Waterfront Communities)
Condo - Apartment$2,100/mo
Listing Courtesy of SAGE REAL ESTATE LIMITED

REAR YARD - 56 STEWART STREET, Toronto (Waterfront Communities)
Retail$1,400/mo
Listing Courtesy of Royal Lepage Real Estate Associates

409 - 508 WELLINGTON STREET W, Toronto (Waterfront Communities)
Condo - Apartment$2,000/mo
Listing Courtesy of CONDOWONG REAL ESTATE INC.

38 - 11 NIAGARA STREET W, Toronto (Waterfront Communities)
Condo - Row / Townhouse$2,100/mo
Listing Courtesy of RE/MAX METROPOLIS REALTY

610 - 560 FRONT STREET W, Toronto (Waterfront Communities)
Condo - Apartment$1,890/mo
Listing Courtesy of SAGE REAL ESTATE LIMITED

1210W - 27 BATHURST STREET, Toronto (Waterfront Communities)
Condo - Apartment$2,000/mo
Listing Courtesy of RE/MAX COMMUNITY REALTY INC.

701 - 576 FRONT STREET W, Toronto (Waterfront Communities)
Condo - Apartment$1,999/mo
Listing Courtesy of REAL ESTATE HOMEWARD

1609 - 576 FRONT STREET W, Toronto (Waterfront Communities)
Condo - Apartment$2,000/mo
Listing Courtesy of RE/MAX REAL ESTATE CENTRE INC.

1412E - 576 FRONT STREET W, Toronto (Waterfront Communities)
Condo - Apartment$1,850/mo
Listing Courtesy of KELLER WILLIAMS REFERRED URBAN REALTY

2512 - 115 BLUE JAYS WAY, Toronto (Waterfront Communities)
Condo - Apartment$1,875/mo
Listing Courtesy of WORLD CLASS REALTY POINT
Similar Homes ?Similar Homes — Search CriteriaSearch Radius5 kmPrice Range±5%Match Home TypeYesMatch BedroomsYes

231 ALBANY AVENUE, Toronto (Annex)
House$1,600/mo
Listing Courtesy of RIGHT AT HOME REALTY

LOWER - 334 RIVERDALE AVENUE, Toronto (Blake-Jones)
House$1,600/mo
Listing Courtesy of HOUSESIGMA INC.

BSMT - 64 HARVIE AVENUE, Toronto (Corso Italia-Davenport)
House$1,600/mo
Listing Courtesy of ROYAL LEPAGE SIGNATURE REALTY

23 BURNFIELD (LOWER) AVENUE, Toronto (Dovercourt-Wallace Emerson-Junction)
House$1,600/mo
Listing Courtesy of STRIVE REALTY LTD.

LOWER - 417 CRAWFORD STREET, Toronto (Palmerston-Little Italy)
House$1,600/mo
Listing Courtesy of SAGE REAL ESTATE LIMITED

LOWER - 150 WILTSHIRE AVENUE, Toronto (Weston-Pellam Park)
House$1,600/mo
Listing Courtesy of RE/MAX WEST REALTY INC.

201 - 126 DUNDAS STREET E, Toronto (Church-Yonge Corridor)
Other$1,600/mo
Listing Courtesy of FOREST HILL REAL ESTATE INC.

BASEMENT - 433 SYMINGTON AVENUE, Toronto (Weston-Pellam Park)
Other$1,600/mo
Listing Courtesy of ROYAL LEPAGE TERREQUITY REALTY

3305 2ND BDRM - 7 GRENVILLE STREET, Toronto (Bay Street Corridor)
Condo - Apartment$1,600/mo
Listing Courtesy of RIFE REALTY

BSMT - 129 WOLSELEY STREET, Toronto (Trinity-Bellwoods)
Row / Townhouse$1,600/mo
Listing Courtesy of REAL BROKER ONTARIO LTD.
Property Comparables ?Active Comparables — Search CriteriaSearch Radius2 kmPrice Range±15%Match Home TypeYesMatch BedroomsYes

231 ALBANY AVENUE, Toronto (Annex)
House$1,600/mo
Listing Courtesy of RIGHT AT HOME REALTY

LOWER - 334 RIVERDALE AVENUE, Toronto (Blake-Jones)
House$1,600/mo
Listing Courtesy of HOUSESIGMA INC.

BSMT - 64 HARVIE AVENUE, Toronto (Corso Italia-Davenport)
House$1,600/mo
Listing Courtesy of ROYAL LEPAGE SIGNATURE REALTY

23 BURNFIELD (LOWER) AVENUE, Toronto (Dovercourt-Wallace Emerson-Junction)
House$1,600/mo
Listing Courtesy of STRIVE REALTY LTD.

LOWER - 417 CRAWFORD STREET, Toronto (Palmerston-Little Italy)
House$1,600/mo
Listing Courtesy of SAGE REAL ESTATE LIMITED

LOWER - 150 WILTSHIRE AVENUE, Toronto (Weston-Pellam Park)
House$1,600/mo
Listing Courtesy of RE/MAX WEST REALTY INC.

201 - 126 DUNDAS STREET E, Toronto (Church-Yonge Corridor)
Other$1,600/mo
Listing Courtesy of FOREST HILL REAL ESTATE INC.

BASEMENT - 433 SYMINGTON AVENUE, Toronto (Weston-Pellam Park)
Other$1,600/mo
Listing Courtesy of ROYAL LEPAGE TERREQUITY REALTY

3305 2ND BDRM - 7 GRENVILLE STREET, Toronto (Bay Street Corridor)
Condo - Apartment$1,600/mo
Listing Courtesy of RIFE REALTY

BSMT - 129 WOLSELEY STREET, Toronto (Trinity-Bellwoods)
Row / Townhouse$1,600/mo
Listing Courtesy of REAL BROKER ONTARIO LTD.

281 SYMINGTON AVENUE, Toronto (Dovercourt-Wallace Emerson-Junction)
House$1,600/mo
Listing Courtesy of RE/MAX HALLMARK REALTY LTD.

3 - 678 BATHURST STREET, Toronto (Palmerston-Little Italy)
House$1,600/mo
Listing Courtesy of FENGHILL REALTY INC.

626 - 30 DREAMERS WAY, Toronto (Regent Park)
Condo - Apartment$1,600/mo
Listing Courtesy of ROYAL LEPAGE SIGNATURE REALTY

1 - 984 DUNDAS STREET W, Toronto (Trinity-Bellwoods)
Residential Commercial Mix$1,595/mo
Listing Courtesy of BRAD J. LAMB REALTY 2016 INC.

1808 - 251 JARVIS STREET, Toronto (Church-Yonge Corridor)
Condo - Apartment$1,575/mo
Listing Courtesy of REMAX YOUR COMMUNITY REALTY

1 - 984 DUNDAS STREET W, Toronto (Trinity-Bellwoods)
Residential Commercial Mix$1,595/mo
Listing Courtesy of BRAD J. LAMB REALTY 2016 INC.

LOWER - 417 CRAWFORD STREET, Toronto (Palmerston-Little Italy)
House$1,600/mo
Listing Courtesy of SAGE REAL ESTATE LIMITED

201 - 126 DUNDAS STREET E, Toronto (Church-Yonge Corridor)
Other$1,600/mo
Listing Courtesy of FOREST HILL REAL ESTATE INC.

BSMT - 129 WOLSELEY STREET, Toronto (Trinity-Bellwoods)
Row / Townhouse$1,600/mo
Listing Courtesy of REAL BROKER ONTARIO LTD.

3 - 678 BATHURST STREET, Toronto (Palmerston-Little Italy)
House$1,600/mo
Listing Courtesy of FENGHILL REALTY INC.

3807 - 386 YONGE STREET, Toronto (Bay Street Corridor)
Condo - Apartment$1,650/mo
Listing Courtesy of RE/MAX PRIME PROPERTIES - UNIQUE GROUP

106 - 33 MAITLAND STREET, Toronto (Church-Yonge Corridor)
Condo - Apartment$1,695/mo
Listing Courtesy of HOMEWISE REAL ESTATE

610 - 38 WESTERN BATTERY ROAD, Toronto (Niagara)
Condo - Row / Townhouse$1,700/mo
Listing Courtesy of EXP REALTY

202 - 335 COLLEGE STREET, Toronto (Kensington-Chinatown)
Condo - Apartment$1,700/mo
Listing Courtesy of ROYAL LEPAGE SIGNATURE REALTY
Sold comparables require subject coordinates and a sale-context listing.
No leased comparables found. Rented data requires TRREB DDF integration; the map and search will populate automatically once enabled.
Book a Viewing
302 - 490 QUEEN STREET W, Toronto (Kensington-Chinatown), Ontario, M5V2B3










