3 BRAYSHAW DRIVE, Cambridge, Ontario, N1T2G3
MLS: X12837230 | House (Freehold)
$989,900



















































Property Description
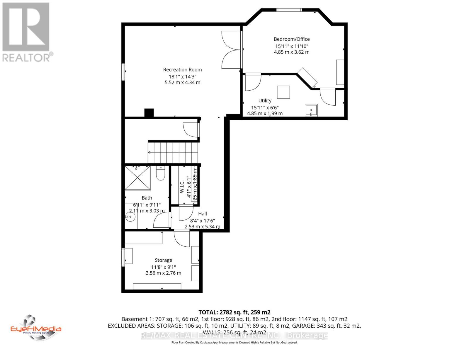
Prime Commuter location, this beautifully updated 5-bedroom, 4-bathroom two-storey home has been meticulously maintained, updated and upgraded. Completely move-in ready. Features include real hardwood flooring, not laminate and a bright, open-concept layout designed for both everyday living and effortless entertaining. The kitchen is the heart of the home, featuring granite counters & updated appliances (2024), with a view to the family room with an updated gas fireplace (new fan, sensors, and line), creating a cozy gathering space The main floor updates include a redesigned powder room, new tile, shiplap accents, updated casing and baseboards, and professionally painted - delivering a clean, contemporary aesthetic while maintaining warmth and character. Upstairs, the spacious primary retreat offers a charming bay window, glass shower ensuite, and granite countertops - a true private escape. In addition to 4 bedrooms, the upstairs has a versatile office space at the top of the stairs (complete with closet) provides flexibility for work-from-home, reading nook or craft area. Convenient second-floor laundry includes updated washer and dryer (2024). And there's a double linen closet. In addition to a 5th bedroom, the finished basement continues the home's quality finishes with real hardwood flooring, pot lights, heated bathroom floor, hobby/storage space, two oversized storage closets, and large windows that invite natural light. Out back, enjoy a private backyard with easy to maintain landscaping and large concrete patio which has been meticulously maintained - stained and resealed annually - Top to bottom there is pride of ownership you can see. Additional features include: New carpet runner (2024) New glass inserts in rear sliding door Tankless water heater Owned water softener CAT5 wiring throughout Every detail reflects care, maintenance, and thoughtful upgrading. This is more than a house - it's a home designed to grow with you. (id:64974)
Quick Facts
- Property Type: House (Freehold)
- Bedrooms: 5 (5 above)
- Bathrooms: 4 (1 half)
- Ownership: Freehold
- Attached: No
- Fireplaces: 1
- Parking: 4 spaces (Attached Garage, Garage)
- Frontage: 38 ft (11.6 m)
Costs
- Annual Taxes: $6,576.00
Listing Provided by: RE/MAX REAL ESTATE CENTRE INC.
Board: Toronto Regional Real Estate Board
Data provided via CREA DDF®.
Detailed Features
Interior & Systems
- Heating: Forced air, Natural gas
- Cooling: Central air conditioning
- Basement: Finished, N/A
- Appliances: Washer, Refrigerator, Water softener, Dishwasher, Stove, Dryer, Microwave, Garage door opener remote(s), Water Heater
Exterior & Construction
- Exterior: Brick
- Foundation: Concrete
- Sewer: Sanitary sewer
- Water: Municipal water
Lot & Land
- Frontage: 38 ft (11.6 m)
Room Details (1 rooms)
Listing Information
Listing History
Buy/Sell/Terminated/Expired listing history for 3 BRAYSHAW DRIVE, Cambridge, Ontario, N1T2G3
Location & Neighborhood
🚗 Travel times
Neighborhood Walkability
Mortgage & Cost Calculators
Nearby Homes (Within 2km)
Similar Homes
Similar Properties
No rental comparables found in this area.
Sold Comparables
Access to sold property data requires a registered and verified account with TRREB DDF integration.
Coming SoonRented Comparables
Access to rented property data requires a registered and verified account with TRREB DDF integration.
Coming Soon























