2847 MAPLE AVENUE, Fort Erie (Ridgeway), Ontario, L0S1N0
MLS: X12757870 | Vacant Land
$306,000











Property Description
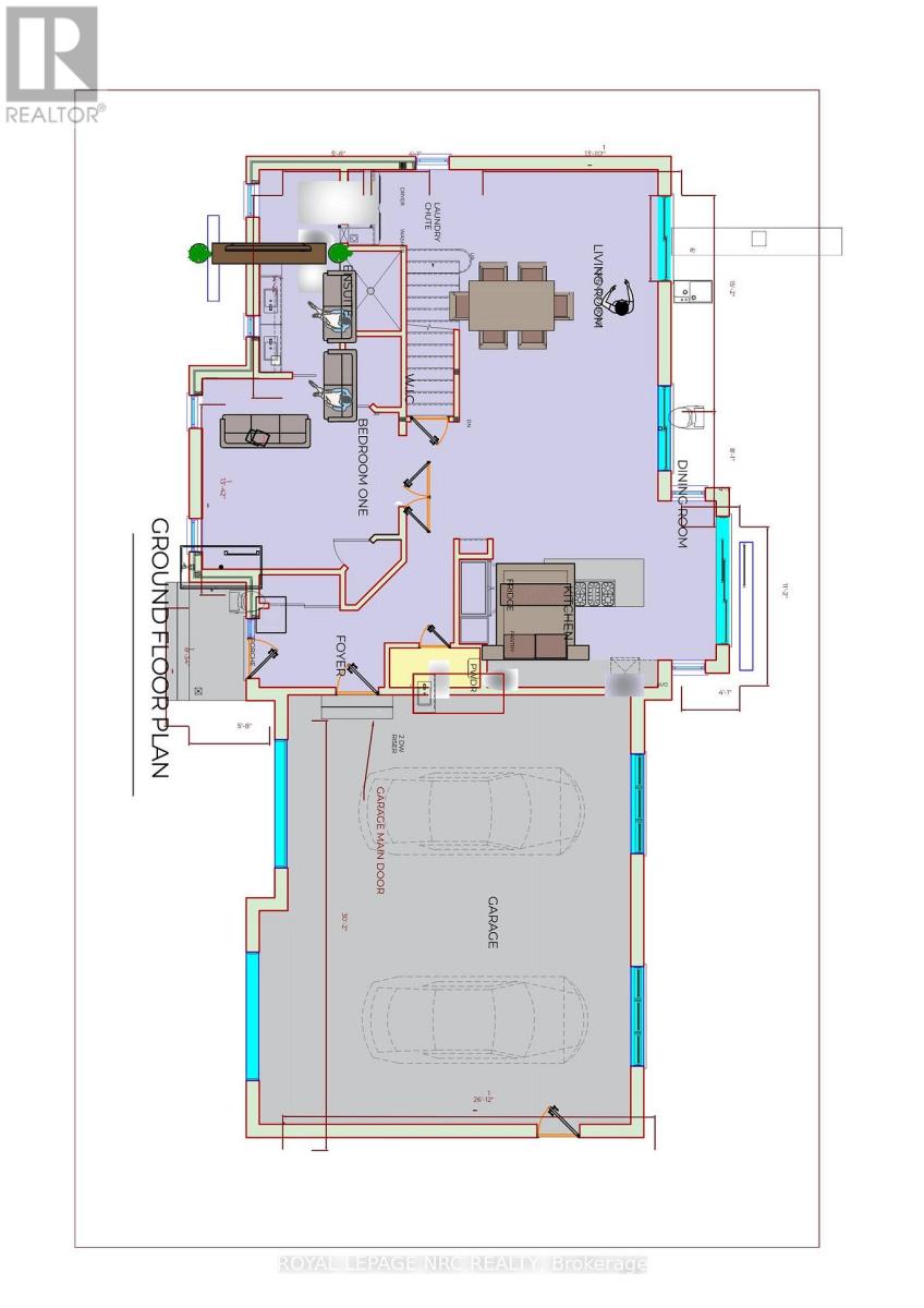
Welcome to 2847 Maple Avenue with a fantastic opportunity to build your forever dream home in a well desired, quiet location of Oakhill Forest area of Ridgeway. This vacant lot features plenty of mature trees on a double sized lot of 135 Ft. x 120 Ft. with a partially fenced yard. Close to all amenities, schools, downtown Ridgeway with plenty of boutiques and restaurants and close to several different Lake Erie sandy beaches. Start planning your luxurious new home! Call today this area is a very rare opportunity to make it your own. The Seller has existing 2 Storey building design (pictures provided) and if interested inquire for further information. (id:64974)
Quick Facts
- Property Type: Vacant Land
- Bedrooms: None
- Bathrooms: 0
- Frontage: 135 ft (41.1 m)
Costs
- Annual Taxes: $445.54 (2025)
Listing Provided by: ROYAL LEPAGE NRC REALTY
Board: Niagara Association of REALTORS®
Data provided via CREA DDF®.
Detailed Features
Interior & Systems
- Utilities: Electricity, Cable
Lot & Land
- Frontage: 135 ft (41.1 m)
- Zoning: RR
Community & Neighbourhood
- Neighbourhood: 335 - Ridgeway
Listing Information
Listing History
Buy/Sell/Terminated/Expired listing history for 2847 MAPLE AVENUE, Fort Erie (Ridgeway), Ontario, L0S1N0
Location & Neighborhood
🚗 Travel times
Neighborhood Walkability
Mortgage & Cost Calculators
Nearby Homes (Within 2km)
Similar Homes
Similar Properties
No rental comparables found in this area.
Sold Comparables
Access to sold property data requires a registered and verified account with TRREB DDF integration.
Coming SoonRented Comparables
Access to rented property data requires a registered and verified account with TRREB DDF integration.
Coming Soon

























