270 GLEBEMOUNT AVENUE, Toronto (Danforth Village-East York), Ontario, M4C3T8
MLS: E12977512 | Multi-Family
$1,279,000

















































Property Description
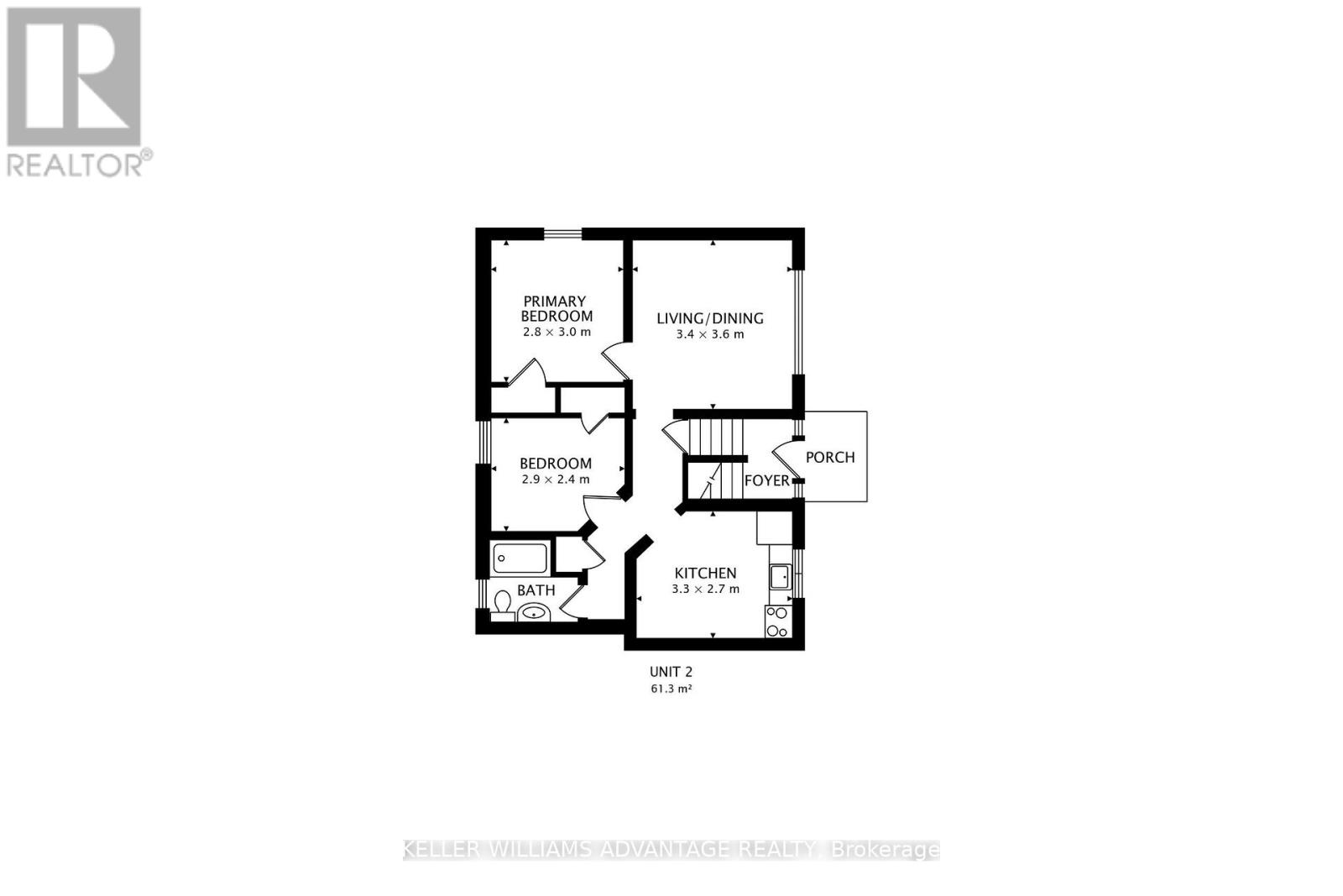
This is a fantastic investment opportunity to own an MPAC-registered fourplex that combines immediate income potential with future upside. This solid brick property, complete with a double car garage, has been well cared for over the years by dedicated owners and is now ready for its next chapter. Each unit is thoughtfully designed with its own kitchen, bathroom, and bedroom, while the spacious primary suite offers two bedrooms for added flexibility. The largest unit is currently vacant, presenting a rare chance for an owner-occupier to live comfortably while generating rental income from the remaining units. In addition to its strong existing cash flow, the property offers exciting potential for further expansion with the possibility of adding a garden suite, making it an even more attractive long-term investment. (id:64974)
Quick Facts
- Property Type: Multi-Family
- Bedrooms: None
- Bathrooms: None
- Living Area: 1,500 sq ft (139.4 m²)
- Attached: Yes
- Frontage: 30 ft (9.1 m)
Costs
- Annual Taxes: $5,731.00 (2025)
Listing Provided by: KELLER WILLIAMS ADVANTAGE REALTY
Board: Toronto Regional Real Estate Board
Data provided via CREA DDF®.
Detailed Features
Interior & Systems
- Heating: Forced air, Natural gas
- Cooling: Fully air conditioned
- Appliances: Washer, Dryer
Exterior & Construction
- Water: Municipal water
Lot & Land
- Frontage: 30 ft (9.1 m)
- Zoning: Multi Plex Residential
Community & Neighbourhood
- Neighbourhood: Danforth Village-East York
Listing Information
Listing History
MLS listing activity for 270 GLEBEMOUNT AVENUE, Toronto (Danforth Village-East York), Ontario, M4C3T8 — dates reflect when changes were recorded in the DDF
🚗 Travel times
Neighborhood Walkability
Mortgage & Cost Calculators
Nearby Homes ?Nearby Homes — Search CriteriaSearch Radius1 kmPrice Range±5%Match BedroomsYesMatch BathroomsYes

270 GLEBEMOUNT AVENUE, Toronto (Danforth Village-East York)
Other$1,279,000
$5,731/yr taxListing Courtesy of KELLER WILLIAMS ADVANTAGE REALTY

202 - 839 COSBURN AVENUE, Toronto (Danforth Village-East York)
Other$2,100/mo
Listing Courtesy of RE/MAX EXPERTS

4 - 284 GLEDHILL AVENUE, Toronto (Woodbine-Lumsden)
Fourplex$2,200/mo
Listing Courtesy of RE/MAX PROFESSIONALS INC.

6 - 485 MORTIMER AVENUE, Toronto (Danforth Village-East York)
Other$2,300/mo
Listing Courtesy of Royal Lepage Real Estate Associates

6 - 79 CEDARVALE AVENUE, Toronto (East End-Danforth)
Other$1,800/mo
Listing Courtesy of AFARIN & CO. REALTY INC.
Similar Homes ?Similar Homes — Search CriteriaSearch Radius5 kmPrice Range±5%Match Home TypeYesMatch BedroomsYes

270 GLEBEMOUNT AVENUE, Toronto (Danforth Village-East York)
Other$1,279,000
$5,731/yr taxListing Courtesy of KELLER WILLIAMS ADVANTAGE REALTY

223 PARK STREET N, Hamilton (Central)
Triplex$1,278,000
$4,331/yr taxListing Courtesy of RIGHT AT HOME REALTY

251 KING Street E, Stoney Creek
Triplex$1,275,000
$8,320/yr taxListing Courtesy of Royal LePage State Realty Inc.

120 PARKDALE Avenue N, Hamilton
Fourplex$1,285,000
$14,560/yr taxListing Courtesy of RE/MAX Escarpment Realty Inc.

148 MARTIN GROVE ROAD, Toronto (Islington-City Centre West)
Duplex$1,288,000
$5,565/yr taxListing Courtesy of RE/MAX PREMIER THE OP TEAM

84 CHALMERS Street N, Cambridge
Duplex$1,288,000
Listing Courtesy of GRAND WEST REALTY INC., BROKERAGE

82 CHALMERS Street N, Cambridge
Duplex$1,288,000
Listing Courtesy of GRAND WEST REALTY INC., BROKERAGE

277 GIBSON CIRCLE, Bradford West Gwillimbury (Bradford)
Duplex$1,269,000
$8,120/yr taxListing Courtesy of HOMELIFE/MIRACLE REALTY LTD

203 NIAGARA BOULEVARD, Fort Erie (Central)
Multi-Family$1,290,000
$4,239/yr taxListing Courtesy of CENTURY 21 HERITAGE GROUP LTD.

53-55 WELLINGTON STREET, Halton Hills (AC Acton)
Triplex$1,297,000
$4,978/yr taxListing Courtesy of REAL BROKER ONTARIO LTD.

4648/4658 PORTAGE ROAD W, Niagara Falls (Cherrywood)
Multi-Family$1,260,000
$7,808/yr taxListing Courtesy of RE/MAX NIAGARA REALTY LTD, BROKERAGE

66 BARBARA Crescent, Kitchener
Fourplex$1,299,000
$7,353/yr taxListing Courtesy of RE/MAX TWIN CITY REALTY INC.

1642 DUFFERIN STREET, Toronto (Corso Italia-Davenport)
Duplex$1,299,000
$4,615/yr taxListing Courtesy of RIGHT AT HOME REALTY

188-190 CAROLINE Street S, Hamilton
Fourplex$1,299,000
$7,785/yr taxListing Courtesy of Real Broker Ontario Ltd.

188-190 CAROLINE STREET S, Hamilton (Durand)
Fourplex$1,299,000
$7,785/yr taxListing Courtesy of REAL BROKER ONTARIO LTD.
Similar Properties ?Active Comparables — Search CriteriaSearch Radius2 kmPrice Range±5%Match Home TypeYesMatch BedroomsYes
No active comparables found in this area.
No rental comparables found in this area.
Sold Comparables
Access to sold property data requires a registered and verified account with TRREB DDF integration.
Coming SoonRented Comparables
Access to rented property data requires a registered and verified account with TRREB DDF integration.
Coming SoonBook a Viewing
270 GLEBEMOUNT AVENUE, Toronto (Danforth Village-East York), Ontario, M4C3T8
