197 AUTUMN HILL CRESCENT, Kitchener, Ontario, N2N1K9
MLS: X12819838 | House (Freehold)
$990,000











































Property Description
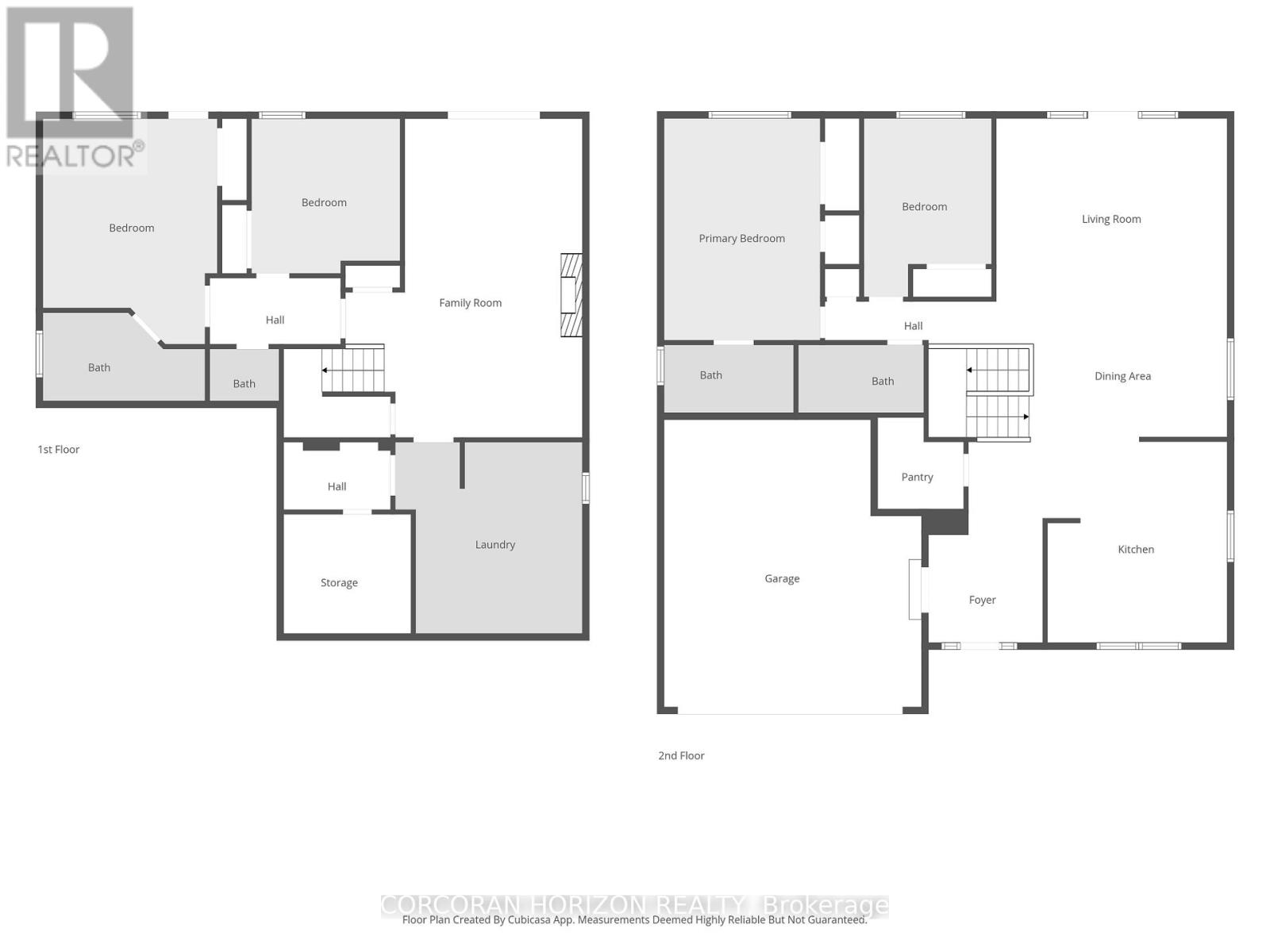
Welcome to 197 Autumn Hill Crescent in Kitchener, a spacious bungalow with walk-out basement offering excellent in-law capability and a functional layout across two well-designed levels. With 4 bedrooms and 3.5 bathrooms, including 2 bedrooms and 2 bathrooms on the main floor and 2 bedrooms with an additional 1.5 bathrooms downstairs this home provides flexibility for multi-generational living or growing families. The main level features a large kitchen equipped with stainless steel appliances, abundant cabinetry, and generous counter space, ideal for everyday living and entertaining. The dining and living areas flow seamlessly together, highlighted by large windows that bring in natural light and a walk-out to the back deck, creating an easy transition to outdoor living. The fully finished walk-out basement is expansive and offers impressive additional living space. Complete with a fireplace and a large laundry room, this level also includes two bedrooms and 2 bathrooms, making it well suited for extended family or guests while maintaining privacy and comfort. Outside, the backyard offers plenty of green space to enjoy, along with a hot tub for relaxing at the end of the day. Located in a desirable Kitchener neighbourhood close to parks, schools, and amenities, this home combines space, versatility, and a setting ideal for both everyday living and entertaining. (id:64974)
Quick Facts
- Property Type: House (Freehold)
- Style: Bungalow
- Bedrooms: 4 (2 above, 2 below)
- Bathrooms: 4 (1 half)
- Ownership: Freehold
- Attached: No
- Fireplaces: 1
- Parking: 4 spaces (Attached Garage, Garage)
- Frontage: 60 ft (18.3 m)
Costs
- Annual Taxes: $5,020.00 (2025)
Listing Provided by: CORCORAN HORIZON REALTY
Board: Toronto Regional Real Estate Board
Data provided via CREA DDF®.
Detailed Features
Interior & Systems
- Heating: Forced air, Natural gas
- Cooling: Central air conditioning
- Basement: Finished, Full, Walk out
Exterior & Construction
- Style: Bungalow
- Exterior: Stucco
- Foundation: Poured Concrete
- Sewer: Sanitary sewer
- Water: Municipal water
Lot & Land
- Frontage: 60 ft (18.3 m)
- Zoning: R2A
Community & Neighbourhood
- Community: School Bus
- Building: Fireplace(s)
Room Details (12 rooms)
Listing Information
Listing History
Buy/Sell/Terminated/Expired listing history for 197 AUTUMN HILL CRESCENT, Kitchener, Ontario, N2N1K9
Location & Neighborhood
🚗 Travel times
Neighborhood Walkability
Mortgage & Cost Calculators
Nearby Homes (Within 2km)
Similar Homes
Similar Properties
No rental comparables found in this area.
Sold Comparables
Access to sold property data requires a registered and verified account with TRREB DDF integration.
Coming SoonRented Comparables
Access to rented property data requires a registered and verified account with TRREB DDF integration.
Coming Soon


















