56 REDBUD Road, Elmira, Ontario, N3B0G2
MLS: 40796412 | House (Freehold)
$989,900






Property Description
Design your own perfect downsize! Verdone Homes is proud to present this single detached bungalow, west facing backyard backing on farmers field. Welcome to 56 Redbud Rd. in Elmira's Southwood Park Subdivision. This stunning home highlights main floor living at its best with many different layout options to choose from. Enjoy the flexibility of a main floor with 1 or 2 bedrooms and a basement with 1 or 2 bedrooms. All models include a luxurious primary suite with walk in shower, main floor laundry, an eat-in kitchen with custom cabinetry, quartz countertops and a large island. Elmira provides the serenity of small town living with the convenience of a 5 minute drive to Waterloo, close to walking trails, farmland and pickle ball courts. Verdone Homes is a local builder with a reputation of integrity and quality craftmanship and they have pulled out all the stops with this one; partial stone on the exterior, LVP flooring, stone countertops, finished basement, electric fireplace with mantel and built in's, an owned water heater & all Tarion registration fee's included. Act now to make this YOUR dream home. Discounted lots available as well. (id:64974)
Quick Facts
- Property Type: House (Freehold)
- Style: Bungalow
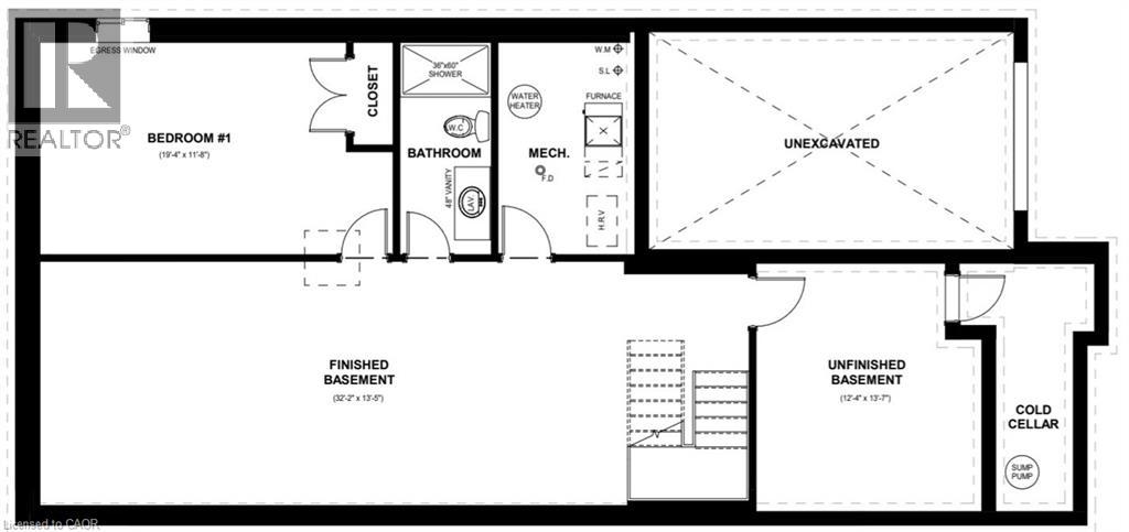
- Bedrooms: 4 (2 above, 2 below)
- Bathrooms: 3
- Living Area: 2,130 sq ft (197.9 m²)
- Above Grade: 1,230 sq ft (114.3 m²)
- Below Grade: 900 sq ft (83.6 m²)
- Ownership: Freehold
- Attached: No
- Parking: 3 spaces (Attached Garage)
- Frontage: 36 ft (11 m)
Listing Provided by: Royal LePage Wolle Realty
Board: Cornerstone Association of REALTORS®
Data provided via CREA DDF®.
Detailed Features
Interior & Systems
- Heating: Hot water radiator heat, Forced air, Natural gas
- Cooling: Central air conditioning
- Basement: Finished, Full
- Appliances: Hood Fan
Exterior & Construction
- Style: Bungalow
- Exterior: Brick, Stone
- Sewer: Municipal sewage system
- Water: Municipal water
Lot & Land
- Frontage: 36 ft (11 m)
- Features: Country residential
- Zoning: R5A
Community & Neighbourhood
- Community: School Bus, Community Centre
- Subdivision: 550 - Elmira
Room Details (12 rooms)
Listing Information
Listing History
Buy/Sell/Terminated/Expired listing history for 56 REDBUD Road, Elmira, Ontario, N3B0G2
Location & Neighborhood
🚗 Travel times
Neighborhood Walkability
Mortgage & Cost Calculators
Nearby Homes (Within 2km)
Similar Homes
Similar Properties
No rental comparables found in this area.
Sold Comparables
Access to sold property data requires a registered and verified account with TRREB DDF integration.
Coming SoonRented Comparables
Access to rented property data requires a registered and verified account with TRREB DDF integration.
Coming Soon





















