1916 DUNKIRK Avenue, Woodstock, Ontario, N4T0L7
MLS: 40817173 | Townhouse (Freehold)
$624,900







Property Description
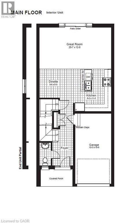
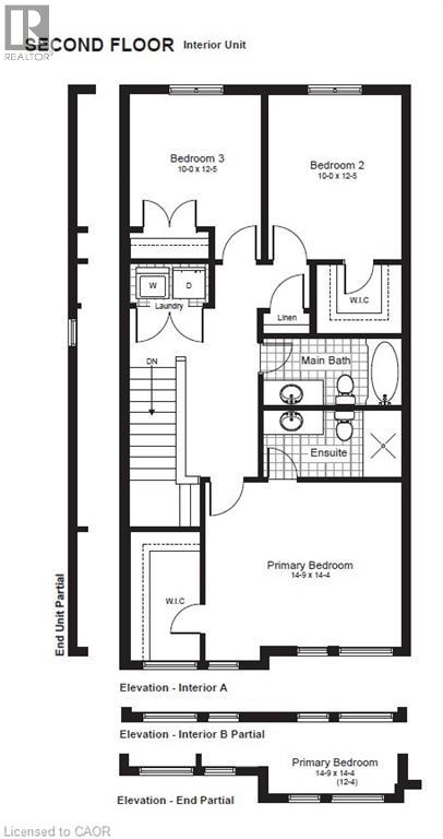
UNDER CONSTRUCTION - Move in Summer 2026. HST REBATE of over $50,000! This stunning 3-bedroom modern end unit townhouse built by Claysam Homes in the heart of Woodstock, Ontario, where contemporary design meets everyday comfort. From the moment you walk in, you'll be greeted by an inviting open-concept floor plan that is perfect for entertaining, relaxing, and enjoying life’s everyday moments. Flooded with natural light, the main level features a spacious living area that seamlessly flows into the dining space and a large kitchen complete with high-quality finishes, sleek cabinetry, and premium plumbing fixtures. Whether you're hosting family gatherings or enjoying a quiet night in, this layout delivers style and functionality. Upstairs, you’ll find three generous bedrooms, including a bright and airy primary retreat with ample closet space. The additional bedrooms are perfect for family, guests, or a home office—offering flexibility to suit your lifestyle. With modern exterior styling, a private outdoor space, and a location close to parks, schools, shopping, and major commuter routes, this home checks all the boxes for today’s buyer. Don’t miss your chance to own a beautifully crafted townhouse in one of Woodstock’s most desirable and growing communities! (id:64974)
Quick Facts
- Property Type: Townhouse (Freehold)
- Style: 2 Level
- Bedrooms: 3 (3 above)
- Bathrooms: 3 (1 half)
- Living Area: 1,606 sq ft (149.2 m²)
- Above Grade: 1,606 sq ft (149.2 m²)
- Ownership: Freehold
- Attached: Yes
- Parking: 3.0 spaces (Attached Garage)
- Frontage: 25 ft (7.6 m)
Listing Provided by: eXp Realty, Brokerage
Board: Cornerstone Association of REALTORS®
Data provided via CREA DDF®.
Detailed Features
Interior & Systems
- Heating: Forced air, Natural gas
- Cooling: None
- Basement: Unfinished, Full
- Appliances: Washer, Refrigerator, Dishwasher, Stove, Dryer, Hood Fan
Exterior & Construction
- Style: 2 Level
- Exterior: Concrete
- Sewer: Municipal sewage system
- Water: Municipal water
Lot & Land
- Frontage: 25 ft (7.6 m)
- Features: Sump Pump
- Zoning: R3-14
Community & Neighbourhood
- Community: Quiet Area, School Bus, Community Centre
- Subdivision: Woodstock - North
Room Details (10 rooms)
Listing Information
Listing History
MLS listing activity for 1916 DUNKIRK Avenue, Woodstock, Ontario, N4T0L7 — dates reflect when changes were recorded in the DDF
🚗 Travel times
Neighborhood Walkability
Mortgage & Cost Calculators
Nearby Homes ?Nearby Homes — Search CriteriaSearch Radius1 kmPrice Range±5%Match BedroomsYesMatch BathroomsYes

1920 DUNKIRK Avenue, Woodstock
Row / Townhouse$604,900
Listing Courtesy of eXp Realty, Brokerage

1916 DUNKIRK AVENUE, Woodstock (Woodstock - North)
Row / Townhouse$624,900
Listing Courtesy of EXP REALTY

1920 DUNKIRK AVENUE, Woodstock (Woodstock - North)
Row / Townhouse$604,900
Listing Courtesy of EXP REALTY

1697 DUNKIRK AVENUE, Woodstock (Woodstock - North)
House$594,990
Listing Courtesy of Gale Group Realty Brokerage Ltd

1584 DUNKIRK AVENUE, Woodstock (Woodstock - North)
House$599,900
$3,988/yr taxListing Courtesy of CENTURY 21 ROYALTORS REALTY INC.

1030 PEARSON Drive, Woodstock
House$614,900
$3,854/yr taxListing Courtesy of Gale Group Realty Brokerage

1030 PEARSON DRIVE, Woodstock (Woodstock - North)
House$614,900
$3,854/yr taxListing Courtesy of Gale Group Realty Brokerage Ltd
Similar Homes ?Similar Homes — Search CriteriaSearch Radius5 kmPrice Range±5%Match Home TypeYesMatch BedroomsYes

1916 DUNKIRK AVENUE, Woodstock (Woodstock - North)
Row / Townhouse$624,900
Listing Courtesy of EXP REALTY

120 LINKS Crescent, Woodstock
Row / Townhouse$625,000
$4,443/yr taxListing Courtesy of RE/MAX Real Estate Centre Inc.

11 - 273 RIDDELL STREET, Woodstock (Woodstock - North)
Condo - House$629,900
$6,300/yr taxListing Courtesy of BLUE FOREST REALTY INC.

1030 PEARSON DRIVE, Woodstock (Woodstock - North)
House$614,900
$3,854/yr taxListing Courtesy of Gale Group Realty Brokerage Ltd

1030 PEARSON Drive, Woodstock
House$614,900
$3,854/yr taxListing Courtesy of Gale Group Realty Brokerage

134 CLARKE STREET N, Woodstock (Woodstock - North)
House$639,000
$4,935/yr taxListing Courtesy of MODERN SOLUTION REALTY INC.

472 JACK WILFRED WAY, Woodstock (Woodstock - South)
Row / Townhouse$639,990
Listing Courtesy of MAVERICK REAL ESTATE INC.

1920 DUNKIRK AVENUE, Woodstock (Woodstock - North)
Row / Townhouse$604,900
Listing Courtesy of EXP REALTY

1920 DUNKIRK Avenue, Woodstock
Row / Townhouse$604,900
Listing Courtesy of eXp Realty, Brokerage

735 GARDEN COURT CRESCENT, Woodstock (Woodstock - North)
Condo - Row / Townhouse$649,000
$4,589/yr taxListing Courtesy of Century 21 Heritage House Ltd Brokerage

441 OJIBWAY Street, Woodstock
House$600,000
$4,243/yr taxListing Courtesy of CENTURY 21 HERITAGE HOUSE LTD.

441 OJIBWAY STREET, Woodstock (Woodstock - North)
House$600,000
$4,243/yr taxListing Courtesy of Century 21 Heritage House Ltd Brokerage

107 ELMWOOD CRESCENT, Woodstock (Woodstock - South)
House$599,900
$3,860/yr taxListing Courtesy of Royal Lepage Triland Realty Brokerage

513 KING STREET, Woodstock (Woodstock - South)
House$599,900
$2,841/yr taxListing Courtesy of Gale Group Realty Brokerage Ltd

828 WARWICK STREET, Woodstock (Woodstock - North)
House$599,900
$4,079/yr taxListing Courtesy of Revel Realty Inc Brokerage
Similar Properties ?Active Comparables — Search CriteriaSearch Radius2 kmPrice Range±5%Match Home TypeYesMatch BedroomsYes

1916 DUNKIRK AVENUE, Woodstock (Woodstock - North)
Row / Townhouse$624,900
Listing Courtesy of EXP REALTY

1030 PEARSON DRIVE, Woodstock (Woodstock - North)
House$614,900
$3,854/yr taxListing Courtesy of Gale Group Realty Brokerage Ltd

1030 PEARSON Drive, Woodstock
House$614,900
$3,854/yr taxListing Courtesy of Gale Group Realty Brokerage

134 CLARKE STREET N, Woodstock (Woodstock - North)
House$639,000
$4,935/yr taxListing Courtesy of MODERN SOLUTION REALTY INC.

1920 DUNKIRK AVENUE, Woodstock (Woodstock - North)
Row / Townhouse$604,900
Listing Courtesy of EXP REALTY

1920 DUNKIRK Avenue, Woodstock
Row / Townhouse$604,900
Listing Courtesy of eXp Realty, Brokerage

441 OJIBWAY STREET, Woodstock (Woodstock - North)
House$600,000
$4,243/yr taxListing Courtesy of Century 21 Heritage House Ltd Brokerage

441 OJIBWAY Street, Woodstock
House$600,000
$4,243/yr taxListing Courtesy of CENTURY 21 HERITAGE HOUSE LTD.

1584 DUNKIRK AVENUE, Woodstock (Woodstock - North)
House$599,900
$3,988/yr taxListing Courtesy of CENTURY 21 ROYALTORS REALTY INC.

22 - 540 SPITFIRE STREET, Woodstock (Woodstock - North)
Condo - Row / Townhouse$596,000
$4,425/yr taxListing Courtesy of Sutton Group Select Realty Inc Brokerage

1697 DUNKIRK AVENUE, Woodstock (Woodstock - North)
House$594,990
Listing Courtesy of Gale Group Realty Brokerage Ltd
Sold Comparables
Access to sold property data requires a registered and verified account with TRREB DDF integration.
Coming SoonRented Comparables
Access to rented property data requires a registered and verified account with TRREB DDF integration.
Coming SoonBook a Viewing
1916 DUNKIRK Avenue, Woodstock, Ontario, N4T0L7

