107 ELMWOOD CRESCENT, Woodstock (Woodstock - South), Ontario, N4S2K4
MLS: X12969026 | House (Freehold)
$599,900



































Property Description
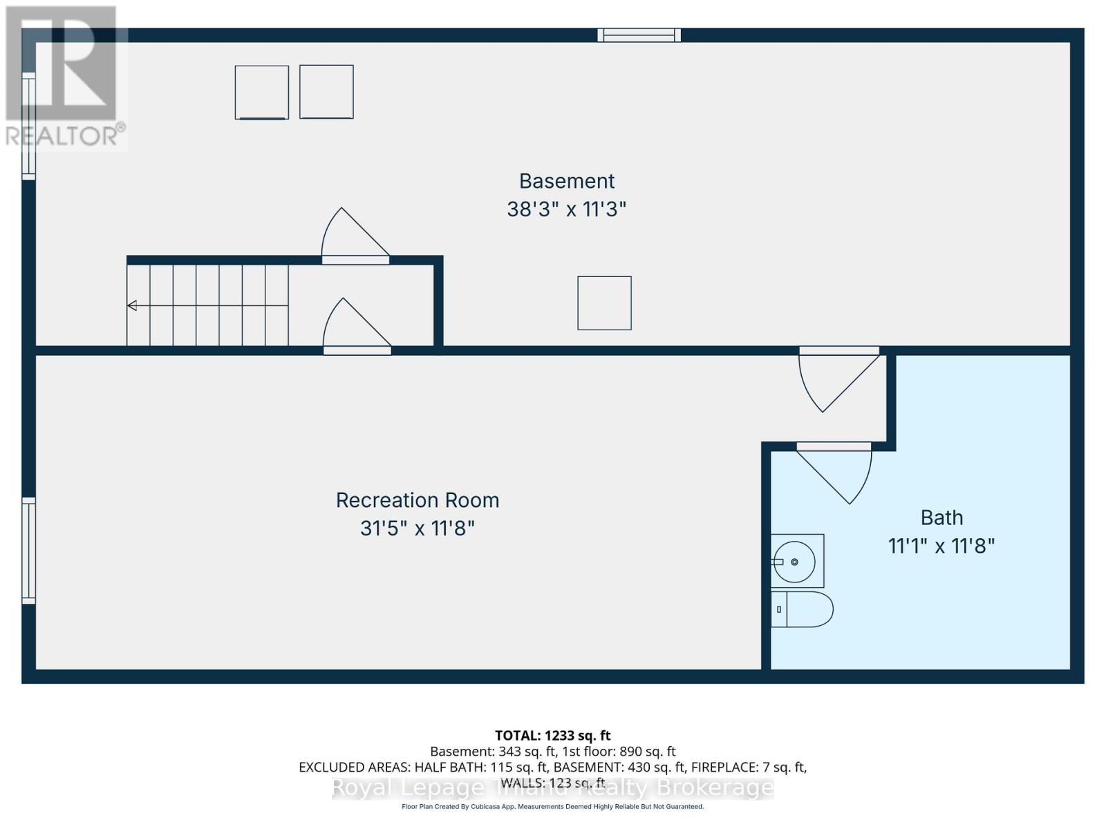
Welcome to 107 Elmwood Crescent! This charming 3-bedroom bungalow is nestled on a corner lot in a quiet neighbourhood, offering the function and flexibility that first-time buyers, growing families, and empty nesters are looking for. From the moment of arrival, the attached double-car garage, private double driveway, and additional laneway offer ample parking and storage. Step inside to an inviting living room, featuring a fireplace and an abundance of natural light, perfect for quiet family nights or hosting on weekends. The kitchen has been thoughtfully updated with quartz countertops, tiled backsplash, travertine tiles, and access to the backyard. Completing the main floor are three freshly painted bedrooms featuring hardwood floors throughout and a full bathroom. Downstairs, a large family room gives you room to spread out, with a partially finished bathroom, and a private side entrance from the garage offers second unit or in-law suite potential. Step outside to a fully fenced backyard, offering exceptional privacy, a covered deck, and plenty of open space to make your own. Located just minutes from schools, bus routes, local amenities, and with quick access to the 401/403 corridor, this lovingly maintained home is ready for its next chapter. (id:64974)
Quick Facts
- Property Type: House (Freehold)
- Style: Bungalow
- Bedrooms: 3 (3 above)
- Bathrooms: 2 (1 half)
- Ownership: Freehold
- Attached: No
- Fireplaces: 1
- Parking: 8.0 spaces (Attached Garage, Garage)
- Frontage: 110 ft (33.6 m)
Costs
- Annual Taxes: $3,860.00 (2026)
Listing Provided by: Royal Lepage Triland Realty Brokerage
Board: Woodstock Ingersoll Tillsonburg and Area Association of REALTORS® (WITAAR)
Data provided via CREA DDF®.
Detailed Features
Interior & Systems
- Heating: Forced air, Natural gas
- Cooling: Central air conditioning
- Basement: Partially finished, N/A
- Appliances: Refrigerator, Water meter, Water softener, Central Vacuum, Dishwasher, Stove, Garage door opener remote(s), Water Heater
- Utilities: Sewer, Electricity, Cable
- Security: Smoke Detectors
Exterior & Construction
- Style: Bungalow
- Exterior: Brick, Concrete Block
- Foundation: Block
- Fencing: Fenced yard, Fully Fenced
- Sewer: Sanitary sewer
- Water: Municipal water
Lot & Land
- Frontage: 110 ft (33.6 m)
- Features: Irregular lot size, Lighting
- Zoning: R1
Community & Neighbourhood
- Community: Community Centre
- Building: Canopy, Fireplace(s)
- Neighbourhood: Woodstock - South
Room Details (11 rooms)
Listing Information
Listing History
MLS listing activity for 107 ELMWOOD CRESCENT, Woodstock (Woodstock - South), Ontario, N4S2K4 — dates reflect when changes were recorded in the DDF
🚗 Travel times
Neighborhood Walkability
Mortgage & Cost Calculators
Nearby Homes ?Nearby Homes — Search CriteriaSearch Radius1 kmPrice Range±5%Match BedroomsYesMatch BathroomsYes

8 ELMWOOD PLACE, Woodstock (Woodstock - South)
House$549,900
$3,642/yr taxListing Courtesy of Revel Realty Inc Brokerage

100 KEATS DRIVE S, Woodstock (Woodstock - South)
House$669,900
$4,024/yr taxListing Courtesy of Royal LePage Our Neighbourhood Realty

912 ALICE STREET, Woodstock (Woodstock - South)
House$575,000
$3,970/yr taxListing Courtesy of The Realty Firm Inc.

61 TENNYSON STREET, Woodstock (Woodstock - South)
House$462,500
$2,950/yr taxListing Courtesy of Gale Group Realty Brokerage Ltd

22 - 875 PARKINSON ROAD, Woodstock (Woodstock - South)
Condo - Row / Townhouse$374,900
$2,149/yr taxListing Courtesy of HOMELIFE/MIRACLE REALTY LTD

900 JAMES Street Unit# 5, Woodstock
Condo - Row / Townhouse$359,900
$1,984/yr taxListing Courtesy of RE/MAX Escarpment Realty Inc.

839 DUFFERIN STREET, Woodstock (Woodstock - South)
House$539,900
$4,534/yr taxListing Courtesy of Gale Group Realty Brokerage Ltd

686078 OXFORD RD 2 ROAD, Norwich
House$674,000
$4,034/yr taxListing Courtesy of COLDWELL BANKER SUN REALTY

846 WATER STREET, Woodstock (Woodstock - South)
House$699,900
Listing Courtesy of Century 21 Heritage House Ltd Brokerage

186 NORWICH Avenue, Woodstock
House$477,500
$2,895/yr taxListing Courtesy of Peak Realty Ltd.

186 NORWICH AVENUE, Woodstock (Woodstock - South)
House$477,500
$2,895/yr taxListing Courtesy of PEAK REALTY LTD.

26 STAFFORD Street, Woodstock
House$499,000
$2,695/yr taxListing Courtesy of Gale Group Realty Brokerage

28 TEEPLE STREET, Woodstock (Woodstock - South)
House$524,900
$3,459/yr taxListing Courtesy of Century 21 Heritage House Ltd Brokerage
Similar Homes ?Similar Homes — Search CriteriaSearch Radius5 kmPrice Range±5%Match Home TypeYesMatch BedroomsYes

513 KING Street, Woodstock
House$599,900
$2,841/yr taxListing Courtesy of Gale Group Realty Brokerage

513 KING STREET, Woodstock (Woodstock - South)
House$599,900
$2,841/yr taxListing Courtesy of Gale Group Realty Brokerage Ltd

828 WARWICK STREET, Woodstock (Woodstock - North)
House$599,900
$4,079/yr taxListing Courtesy of Revel Realty Inc Brokerage

1584 DUNKIRK AVENUE, Woodstock (Woodstock - North)
House$599,900
$3,988/yr taxListing Courtesy of CENTURY 21 ROYALTORS REALTY INC.

441 OJIBWAY Street, Woodstock
House$600,000
$4,243/yr taxListing Courtesy of CENTURY 21 HERITAGE HOUSE LTD.

441 OJIBWAY STREET, Woodstock (Woodstock - North)
House$600,000
$4,243/yr taxListing Courtesy of Century 21 Heritage House Ltd Brokerage

22 - 540 SPITFIRE STREET, Woodstock (Woodstock - North)
Condo - Row / Townhouse$596,000
$4,425/yr taxListing Courtesy of Sutton Group Select Realty Inc Brokerage

1697 DUNKIRK AVENUE, Woodstock (Woodstock - North)
House$594,990
Listing Courtesy of Gale Group Realty Brokerage Ltd

1920 DUNKIRK AVENUE, Woodstock (Woodstock - North)
Row / Townhouse$604,900
Listing Courtesy of EXP REALTY

1920 DUNKIRK Avenue, Woodstock
Row / Townhouse$604,900
Listing Courtesy of eXp Realty, Brokerage

535 GILLESPIE STREET, Woodstock (Woodstock - South)
Row / Townhouse$589,990
Listing Courtesy of MAVERICK REAL ESTATE INC.

733 SOUTHWOOD WAY, Woodstock (Woodstock - South)
House$589,900
$4,407/yr taxListing Courtesy of Revel Realty Inc Brokerage

8 MOHICAN DRIVE, Woodstock (Woodstock - North)
House$589,900
$4,188/yr taxListing Courtesy of Century 21 Heritage House Ltd Brokerage

81 NORTH PARK Crescent, Woodstock
House$589,900
$3,696/yr taxListing Courtesy of RE/MAX SOLID GOLD REALTY (II) LTD.

15 MOHICAN DRIVE, Woodstock (Woodstock - North)
House$585,000
$3,642/yr taxListing Courtesy of CENTURY 21 FIRST CANADIAN CORP
Similar Properties ?Active Comparables — Search CriteriaSearch Radius2 kmPrice Range±5%Match Home TypeYesMatch BedroomsYes

513 KING STREET, Woodstock (Woodstock - South)
House$599,900
$2,841/yr taxListing Courtesy of Gale Group Realty Brokerage Ltd

828 WARWICK STREET, Woodstock (Woodstock - North)
House$599,900
$4,079/yr taxListing Courtesy of Revel Realty Inc Brokerage

81 NORTH PARK Crescent, Woodstock
House$589,900
$3,696/yr taxListing Courtesy of RE/MAX SOLID GOLD REALTY (II) LTD.

1030 PEARSON DRIVE, Woodstock (Woodstock - North)
House$614,900
$3,854/yr taxListing Courtesy of Gale Group Realty Brokerage Ltd

1030 PEARSON Drive, Woodstock
House$614,900
$3,854/yr taxListing Courtesy of Gale Group Realty Brokerage

513 KING STREET, Woodstock (Woodstock - South)
House$579,900
$2,841/yr taxListing Courtesy of Gale Group Realty Brokerage Ltd
No rental comparables found in this area.
Sold Comparables
Access to sold property data requires a registered and verified account with TRREB DDF integration.
Coming SoonRented Comparables
Access to rented property data requires a registered and verified account with TRREB DDF integration.
Coming SoonBook a Viewing
107 ELMWOOD CRESCENT, Woodstock (Woodstock - South), Ontario, N4S2K4
